Extensive plot with redevelopment potential near station and amenities.
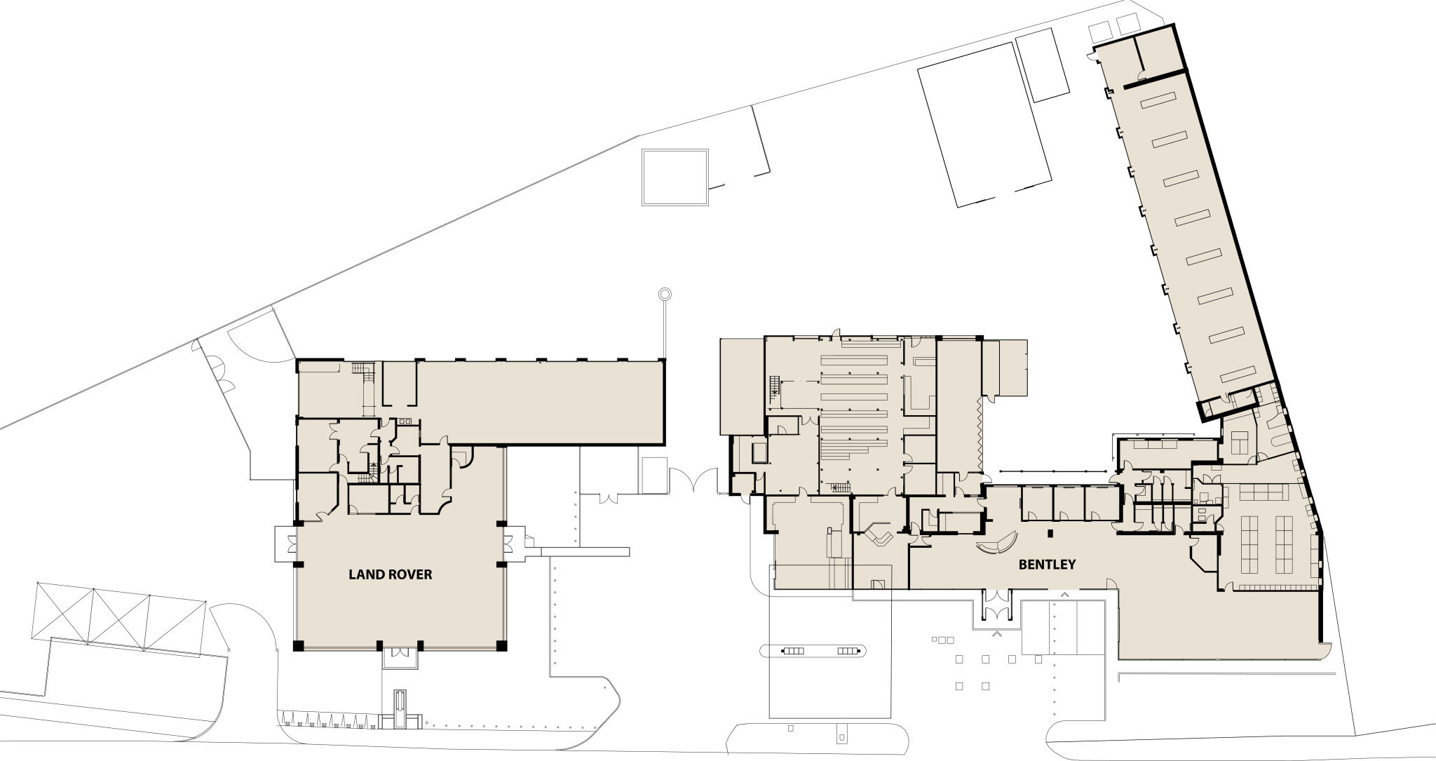
- Freehold car dealership site on 2.8 acres with vacant possession
- 145m (476ft) London Road frontage; very high passing visibility
- On‑site capacity for 100+ cars: display, storage and customer parking
- Two detached buildings: showrooms, offices and workshops
- Approximately 0.5 mile to Pulborough station and local amenities
- Potential for redevelopment (residential, care or mixed uses) subject to planning
- Current Rateable Value £342,500; price available on application
- Notable concerns: high local crime levels and planning consents required
A rare freehold car dealership site occupying a substantial 2.8‑acre plot on London Road (A29) with an impressive 145m frontage and space to display and store in excess of 100 cars. The site comprises two detached buildings housing showrooms, offices and workshops together with extensive customer and staff parking. Vacant possession is offered on completion.
This highly visible site sits on the northern edge of Pulborough village, approximately 0.5 miles from the railway station and close to national and local amenities, including Tesco and Sainsbury’s. Its size, frontage and unrestricted vehicular access make it attractive for continued motor trade use or for redevelopment into commercial, residential, care/retirement or mixed uses, subject to obtaining the appropriate planning consents.
Key commercial information is clear: freehold sale, rateable value currently listed at £342,500, EPCs and a data room available on request, and price is by application. The owner also holds a separately titled opposite car park which could be available by separate negotiation if required.
Important considerations: the site is in an area reported with higher crime levels, redevelopment options will require planning approval, and purchase will follow standard legal and anti‑money‑laundering checks. Prospective purchasers should note VAT, legal costs and evidencing of funds will apply. This is a headline opportunity for buyers able to manage consent processes or continue an established car trade operation.
Showroom for sale in 1 Redkiln Way, Horsham, West Sussex, RH13 — POA • 1 bed • 1 bath • 11417 ft²
Office for sale in Station Road, Horley, Surrey, RH6 — £1,850,000 • 1 bed • 1 bath • 21183 ft²
Plot for sale in Station Road, Horley, Surrey, RH6 — £1,850,000 • 1 bed • 1 bath • 21183 ft²
Distribution warehouse for sale in Unit 2, Audio Park, Southwater, Horsham, RH13 9YT, RH13 — £250 • 1 bed • 1 bath • 12890 ft²
Land for sale in Metcalf Way, Crawley, West Sussex, RH11 — £2,000,000 • 1 bed • 1 bath
Out-of-town retail property for sale in High Street, RH1 — £1,400,000 • 1 bed • 1 bath • 4337 ft²


























