Architect-designed barn conversion plot with 1.3 acres and full planning permission..
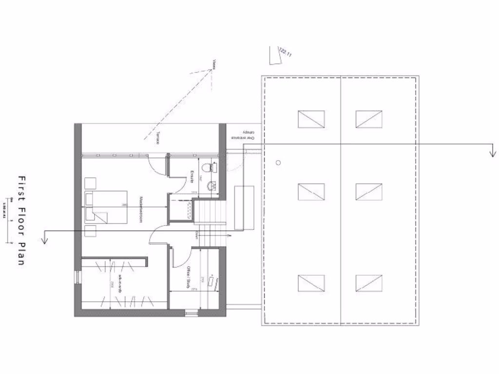
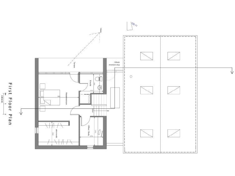
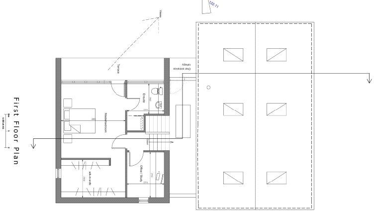
Full planning permission granted (PA22/08966) for a 3/4 bedroom architect-designed home
Approximately 1.3 acres of land, mostly mature hedging and trees
Gated gravel parking area already installed; space for carport and workshop
Mains electricity and fast fibre broadband present on site
Private water supply and drainage to be installed by buyer
Remote hamlet location — average mobile signal, low local amenities immediate
Mixed local school Ofsted results; nearest primary schools have improvement needs
Buyers must confirm any charges, boundaries and service connections prior to purchase
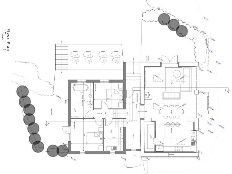
Set within approximately 1.3 acres of rolling Cornish countryside, this plot benefits from full planning permission for a striking architect-designed 3/4 bedroom family home (PA22/08966). The approved scheme blends a restored traditional stone barn with a contemporary two-storey elevation, large glazing and vaulted living spaces to maximise the rural views. A gated gravel parking area and plans for carport and workshop are already included.
Practical advantages include mains electricity and fast fibre broadband in situ, building-control work completed to prevent the permission lapsing, and off-street parking already formed. The land is mostly bordered by mature hedges and offers scope for a generous garden, smallholding or outdoor family space. The site sits under a 15-minute drive from Bude and a few miles from popular coastal spots such as Crackington Haven and Widemouth Bay.
Buyers should note material requirements: private water supply and drainage must be installed by the purchaser, and boundaries are not defined within the sale particulars. The hamlet location is remote — mobile signal is average and local primary schools have mixed Ofsted outcomes. Prospective buyers must verify any planning obligations, charges or contributions themselves prior to purchase.
This plot suits a family or buyer seeking a bespoke countryside home with immediate planning certainty and substantial outdoor space. Expect a project-stage purchase that yields a high-spec finished home once services and fit-out are completed.
Detached house for sale in Cann Orchard, Stratton, Bude, Cornwall, EX23 — £350,000 • 1 bed • 1 bath
Plot for sale in Marhamchurch, Bude, Cornwall, EX23 — £250,000 • 1 bed • 1 bath • 1179 ft²
Plot for sale in Boyton, Launceston, Cornwall, PL15 — £325,000 • 1 bed • 1 bath • 1252 ft²
Barn for sale in Marhamchurch, Bude, EX23 — £395,000 • 1 bed • 1 bath • 1895 ft²
Plot for sale in Pancrasweek, Holsworthy, Devon, EX22 — £250,000 • 8 bed • 1 bath
Plot for sale in Old Drovers Way, Stratton, Bude, Cornwall, EX23 — £165,000 • 1 bed • 1 bath • 917 ft²






















































