EX23 0HF - Plot for sale in Marhamchurch, Bude, Cornwall, EX23

View on Property Piper

Plot for sale in Marhamchurch, Bude, Cornwall, EX23

Summary - BARN CONVERSION AT WATERSTONE, ACCESS TO STEART FARM EX23 0HF

1 bed 1 bath Plot

**Standout Features:**
- Class Q development opportunity for a spacious single-story home.
- Set on approximately 2 acres of land with a tranquil stream.
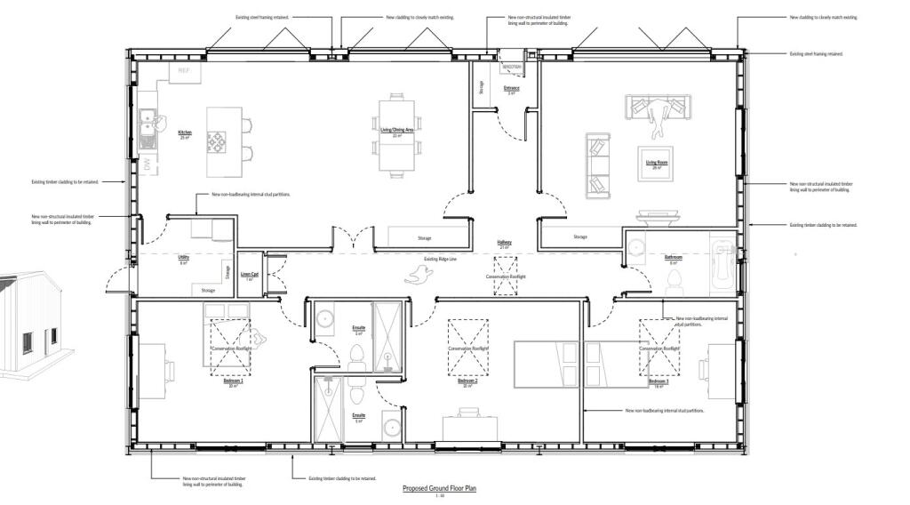
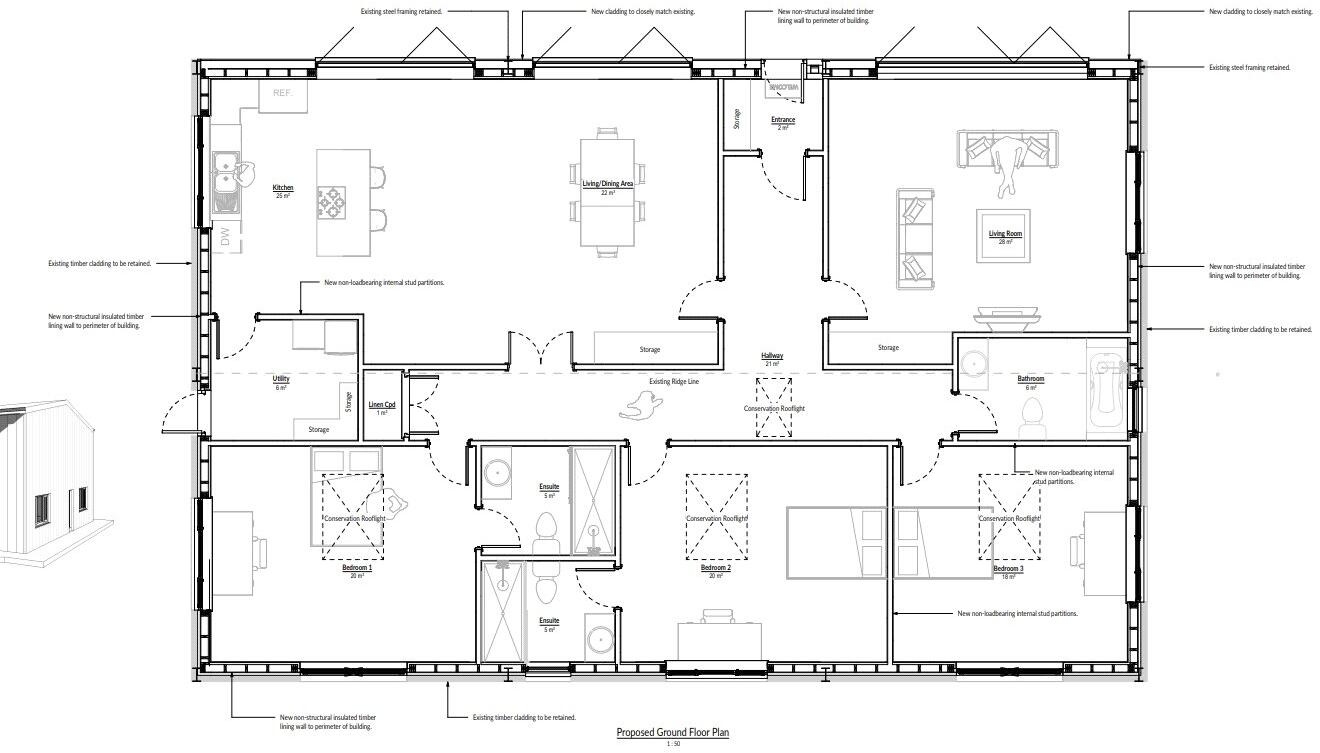
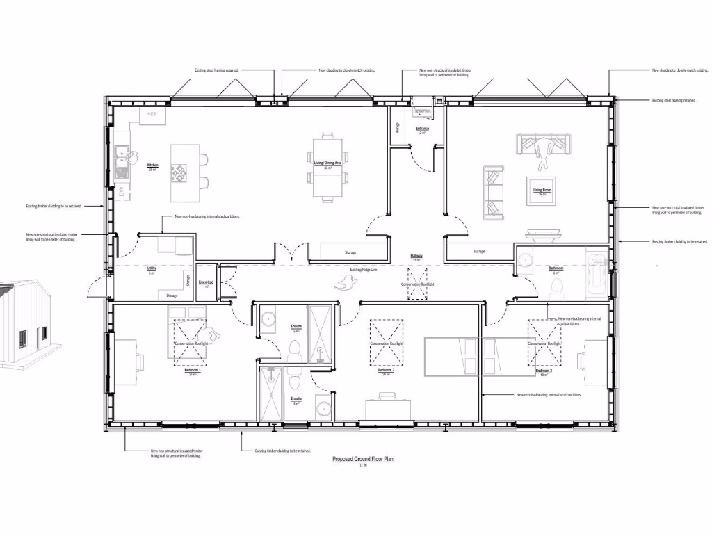
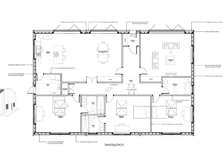
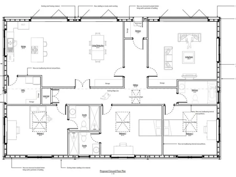
- Planning permission granted for a 3-bedroom, 2-ensuite home.
- Rural location with no immediate neighbors, ideal for privacy.
- Ample parking and garden space for outdoor activities.
- Chain-free sale.

**Concerns:**
- The barn requires renovation.
- Broadband speeds are currently very slow.
- The local area has low amenities and broadband service.

**Summary:**
Explore the potential of this Class Q development barn on the outskirts of Marhamchurch, where serenity meets opportunity. Nestled within 2 acres of sloping pastureland, this property promises unmatched privacy with picturesque views of the countryside and a stream running along the boundary. Planning permission is already secured to transform this agricultural building into an inviting single-story home featuring three spacious bedrooms—two with ensuite bathrooms, an expansive kitchen and dining area, and a cozy living room with bi-fold doors that open to stunning landscapes.

This is a unique chance for buyers looking for a peaceful retreat with plenty of room for landscaping or livestock. While the barn requires renovation and is set in an area with limited services, its immense potential and the allure of rural living present an enticing opportunity for families or investors with a vision. Don't miss this exceptional chance to create a dream home in a hidden gem of North Cornwall. Act now to seize this singular development opportunity!

Property Details

Brochure Descriptions

Image Descriptions

Floorplan Description

Rooms

Textual Property Features

Detected Visual Features

Nearby Schools

Nearest Bars And Restaurants

,,,,}

Nearest General Shops

,,}

Nearest Grocery shops

,,}

Nearest Supermarkets

,,}

Nearest Religious buildings

,,}

Nearest Medical buildings

,,,}

Nearest Leisure Facilities

,,,,}

Nearest Tourist attractions

,,}

Nearest Train stations

,,,,}

Nearest Bus stations and stops

,,,,}

Nearest Hotels

,,}

Tags

Local Market Stats

AirBnB Data

Similar Properties

Meta

High Res Images

Compatible Images

Low res Images

Thumbnails

Raw Images

High Res Floorplan Images

Compatible Floorplan Images

Low res Floorplan Images

FloorplanImages Thumbnail

Raw Floorplan Images