Single-level living with a sunny conservatory and easy transport links.
No onward chain — immediate completion possible
South-facing rear garden with sun lounge and underfloor heating
Off-street parking for two cars; decent-sized plot
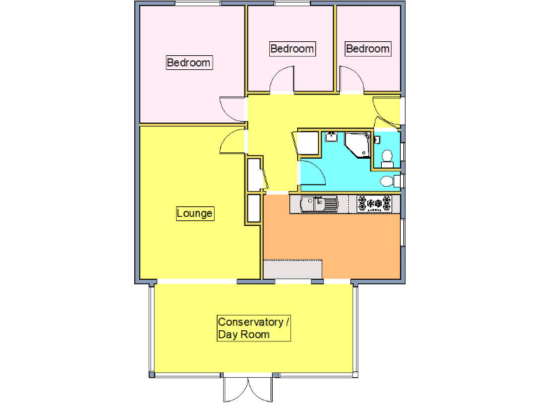
Single-storey layout suits downsizers; modest internal footprint (829 sq ft)
Single shower room only; may limit larger-family use
Double glazing fitted before 2002; some thermal upgrades advisable
Cavity walls assumed without added insulation; EPC Band D (67) with improvement potential
Freehold, council tax Band C, very low local crime
This extended three-bedroom detached bungalow on New Road is a single-level, low-maintenance home suited to downsizers or buyers seeking easy access to Felixstowe and Trimley station. The property benefits from a long sun lounge/conservatory with underfloor heating and a south-facing rear garden that maximises daylight. Off-street parking for two cars and a covered seating area increase practicality for everyday living.
The interior offers a well-proportioned lounge, a fitted kitchen with underfloor heating, three bedrooms and a modern shower room. Construction and finishes are generally tidy; heating is gas-fired to radiators and some double glazing is already fitted. The home is offered with no onward chain, on freehold tenure and sits in a low-crime, affluent area with fast broadband and excellent mobile signal.
Notable constraints are the bungalow’s modest internal footprint (approx. 829 sq ft) and a single shower room which may limit appeal for larger households. Some thermal improvements remain possible: glazing was installed before 2002, walls are cavity-built with assumed no added insulation, and the current EPC is mid-range (Band D, score 67) with scope to improve. The property dates from the late 1960s–1970s, so buyers should allow for typical ageing items and consider upgrades if targeting higher energy efficiency.
Overall this is a tidy, practical bungalow offering immediate occupation and low-maintenance outdoor space. It will particularly appeal to purchasers wanting single-level living near transport links and local amenities, and to buyers prepared to make targeted energy or cosmetic improvements to add value.
2 bedroom detached bungalow for sale in Chatsworth Crescent, Felixstowe, IP11 — £299,950 • 2 bed • 1 bath • 646 ft²
2 bedroom detached bungalow for sale in Colneis Road, Felixstowe, IP11 — £425,000 • 2 bed • 1 bath • 1034 ft²
2 bedroom detached bungalow for sale in New Road, Trimley St. Mary, Felixstowe, IP11 — £310,000 • 2 bed • 1 bath • 860 ft²
3 bedroom detached bungalow for sale in Springfield Avenue, Felixstowe, IP11 — £415,000 • 3 bed • 1 bath • 1016 ft²
3 bedroom detached bungalow for sale in Manor Road, Trimley St. Mary, Felixstowe, IP11 — £400,000 • 3 bed • 2 bath • 1180 ft²
2 bedroom detached bungalow for sale in White Horse Close, Felixstowe, IP11 — £275,000 • 2 bed • 1 bath • 705 ft²


























































