Single-level living with large conservatory and south-facing garden, probate sale.
Detached single‑storey bungalow with private south-facing garden
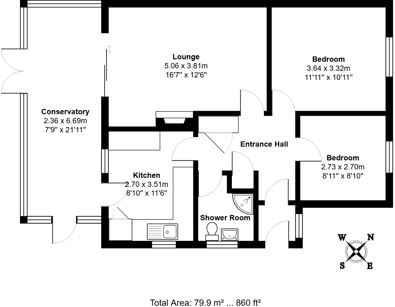
A straightforward detached two-bedroom bungalow on New Road, offering single-level living and a private south-facing garden. The long conservatory adds significant day‑light and flexible space for dining, home office or casual living. Off-street parking and a low-maintenance front forecourt make arrival and parking easy.
The interior is useable now but visibly dated in places: a gas fire with back boiler in the living room, textured ceilings and laminate floors, and an older kitchen and bathroom. The property would benefit from modernization to maximise comfort and value — cosmetic updating, new kitchen appliances and redecoration are the main needs.
Practical positives include freehold tenure, an EPC D(56) with potential to C(78), fast broadband and excellent mobile signal, and a very low local crime rate. The sale is subject to probate being granted; purchasers should allow standard probate timescales in their plans. Overall this bungalow suits downsizers seeking single-storey convenience or investors seeking a straightforward refurbishment in a quiet, affluent suburb.
2 bedroom detached bungalow for sale in Chatsworth Crescent, Felixstowe, IP11 — £299,950 • 2 bed • 1 bath • 646 ft²
3 bedroom detached bungalow for sale in New Road, Trimley St. Mary, IP11 — £375,000 • 3 bed • 1 bath • 829 ft²
3 bedroom bungalow for sale in Dawson Drive, Felixstowe, IP11 — £325,000 • 3 bed • 1 bath • 1289 ft²
2 bedroom semi-detached bungalow for sale in Chatsworth Crescent, Trimley St. Mary, IP11 — £240,000 • 2 bed • 1 bath • 608 ft²
3 bedroom detached bungalow for sale in Manor Road, Trimley St. Mary, IP11 — £450,000 • 3 bed • 1 bath • 1180 ft²
3 bedroom detached bungalow for sale in Meadowlands, Kirton, IP10 — £350,000 • 3 bed • 1 bath • 957 ft²










































































