Single-level home on a large private plot near schools and town amenities.
End-of-road position with no passing traffic
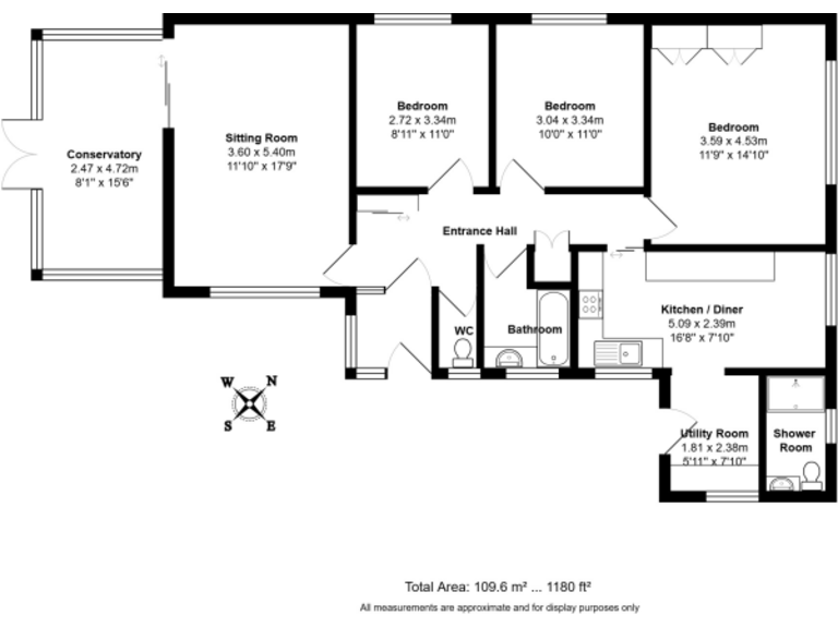
A roomy, single-storey home set at the end of a private no-through road, this extended detached bungalow sits on a substantial plot of about 0.22 acres. The layout includes a large lounge, conservatory, kitchen/breakfast room, utility, three double bedrooms, plus a bathroom and separate shower room — practical living for families or downsizers seeking single-level accommodation.
Outside there’s generous off-street parking, an integral garage and a large timber workshop/store with power and light — ideal for hobbies, storage or a potential home business. Mature lawns, planted borders and paved seating areas provide privacy and established outdoor space for children and pets.
The house benefits from gas central heating and double glazing and is offered chain free, close to local schools, public transport and under a mile and a half from Felixstowe town centre. The solid-brick construction and sizeable plot present scope for extension or reconfiguration, subject to planning, for buyers seeking to add value.
Buyers should note the property’s age and construction: solid brick walls likely lack modern cavity insulation and some updating may be required internally. The conservatory and fittings are functional but not new, so prospective purchasers should plan for routine modernisation to suit contemporary taste and efficiency standards.
3 bedroom detached bungalow for sale in New Road, Trimley St. Mary, IP11 — £350,000 • 3 bed • 1 bath • 829 ft²
4 bedroom bungalow for sale in Cordys Lane, Trimley St. Mary, Felixstowe, Suffolk, IP11 — £580,000 • 4 bed • 2 bath • 1271 ft²
3 bedroom detached bungalow for sale in St. Georges Road, Felixstowe, IP11 — £475,000 • 3 bed • 1 bath • 1518 ft²
3 bedroom detached bungalow for sale in Rosemary Avenue, Felixstowe, IP11 — £450,000 • 3 bed • 1 bath • 2695 ft²
2 bedroom detached bungalow for sale in Chatsworth Crescent, Felixstowe, IP11 — £299,950 • 2 bed • 1 bath • 646 ft²
3 bedroom detached bungalow for sale in Upperfield Drive, Felixstowe, IP11 — £397,500 • 3 bed • 1 bath • 948 ft²


















































































