**Standout Features:**
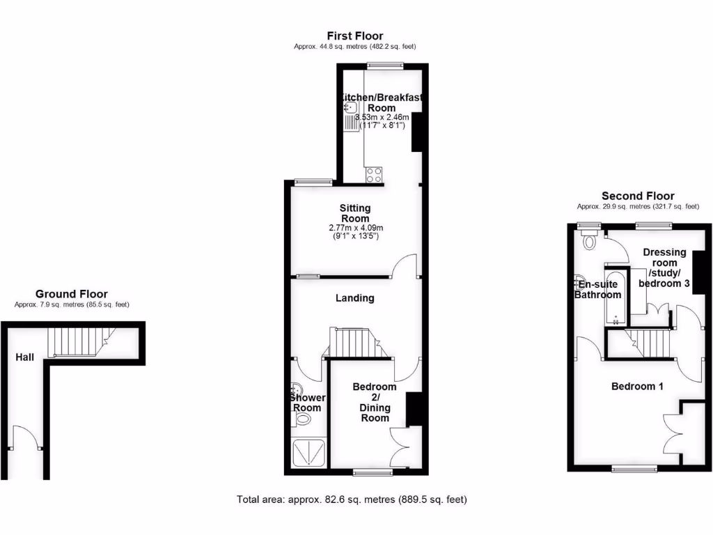
- Charming two-bedroom maisonette arranged over three floors.
- Versatile layout with private entrance, sitting room, and well-fitted kitchen/breakfast room.
- Jack and Jill en-suite connecting the main bedroom to a dressing room/study.
- South-facing garden featuring a patio and timber summerhouse, ideal for relaxation.
- Located close to city amenities, including schools and transport links.
- Chain-free sale, with a long 999-year leasehold remaining.
**Summary Description:**
Step into this delightful two-bedroom maisonette, beautifully arranged over three floors and exuding charm from the character of a former Victorian house. The ground floor features a light-filled sitting room that flows into a modern kitchen/breakfast room, complete with integrated appliances—a perfect setup for entertaining. The upper levels offer a generously sized main bedroom with fitted wardrobes and a versatile dressing room, which could easily function as a study or nursery, complemented by a stylish Jack and Jill en-suite.
Enjoy the tranquility of your own secluded south-facing garden, ideal for outdoor activities or simply unwinding in the sunshine. Positioned conveniently within walking distance of Salisbury’s city center, schools, and amenities, this property combines comfort with city living. With the added advantage of being chain-free and a 999-year lease, this home represents an excellent investment for families, first-time buyers, or professionals looking for a mid-sized living space with potential for personalization and future growth. Don't miss the opportunity to make this idyllic maisonette your own!
2 bedroom semi-detached house for sale in Park Lane, Salisbury, SP1 — £450,000 • 2 bed • 2 bath • 1527 ft²
3 bedroom maisonette for sale in Centurion Close, Salisbury, SP2 — £225,000 • 3 bed • 1 bath • 905 ft²
2 bedroom maisonette for sale in St. Nicholas Road, Salisbury, SP1 — £385,000 • 2 bed • 2 bath • 752 ft²
2 bedroom maisonette for sale in Ramleaze Drive, Salisbury ***VIDEO TOUR***, SP2 — £167,500 • 2 bed • 1 bath • 538 ft²
2 bedroom maisonette for sale in Braemar Rise, Salisbury, SP1 — £250,000 • 2 bed • 1 bath • 930 ft²
2 bedroom flat for sale in Windsor Street, Salisbury, SP2 — £150,000 • 2 bed • 1 bath • 567 ft²


































































