Well-sized home near Salisbury centre with garage and large plot.
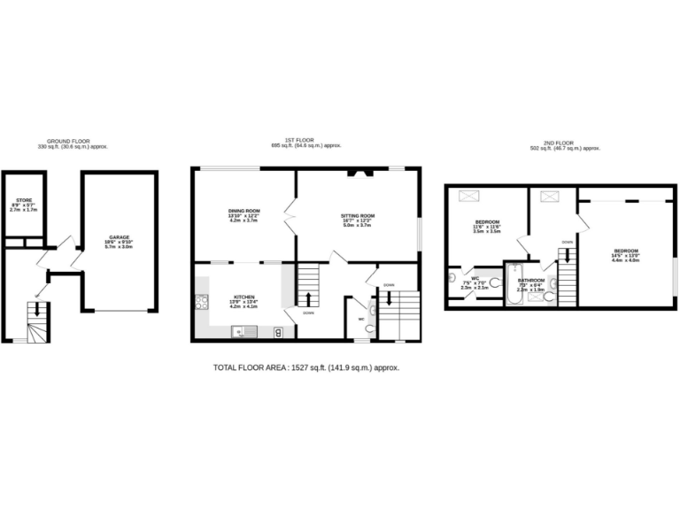
- Spacious two-bedroom maisonette with large overall floor area
- Separate reception and dining rooms; central feature fireplace
- Two bathrooms including an ensuite on upper floor
- Private driveway, single garage and enclosed rear courtyard
- Very large plot for outdoor use and storage potential
- EPC rating D; no flood risk reported
- Share of freehold tenure; council tax above average
- Built 1983–1990 with double glazing and mains gas heating
Set back in a secluded pocket of Park Lane, this generously proportioned two-bedroom maisonette offers unusually large accommodation for its type. The layout spans multiple levels with a spacious sitting room featuring a central fireplace, a separate dining/reception area, and a well-equipped kitchen with good storage. Upstairs there are two well-proportioned bedrooms, one with an ensuite, plus a family bathroom—practical for couples or sharers.
Externally the property benefits from a private driveway, single garage and an enclosed rear courtyard suitable for al fresco seating and container gardening. The plot is described as very large for the immediate area, giving scope for exterior use and storage. Built in the 1980s with double glazing and mains gas central heating, the home is sound and efficient in typical modern suburban terms. EPC: D.
Practical considerations include a share of freehold tenure and above-average council tax banding. The property sits within walking distance of Salisbury city centre and has strong public transport links, nearby parks and a good selection of primary and secondary schools, making it suitable for first-time buyers or small families seeking room and convenience. The flexible interior also presents modest potential for reconfiguration or cosmetic updating to personalise the space.
2 bedroom maisonette for sale in Wyndham Road, Salisbury, SP1 — £250,000 • 2 bed • 2 bath • 890 ft²
2 bedroom end of terrace house for sale in Christopher Close, Salisbury, SP2 — £265,000 • 2 bed • 1 bath • 700 ft²
4 bedroom detached house for sale in Downton Road, Harnham ***VIDEO TOUR***, SP2 — £415,000 • 4 bed • 2 bath • 1533 ft²
2 bedroom flat for sale in Manor Road, Salisbury, SP1 — £210,000 • 2 bed • 1 bath • 539 ft²
2 bedroom apartment for sale in Marlborough Road, Salisbury, SP1 — £210,000 • 2 bed • 1 bath • 646 ft²
4 bedroom detached house for sale in Balmoral Road, Salisbury, SP1 — £499,999 • 4 bed • 1 bath • 1706 ft²


















































