Two-bedroom, chain-free home minutes from shops and transport.
Refurbished throughout; ready to move into
Set within Canterbury’s city walls, this freshly refurbished two-bedroom mid-terrace offers turnkey living in a prime central location. The property retains Victorian character in the bay-fronted façade while delivering a modern interior, useful for first-time buyers wanting a ready home or investors seeking a centrally located rental.
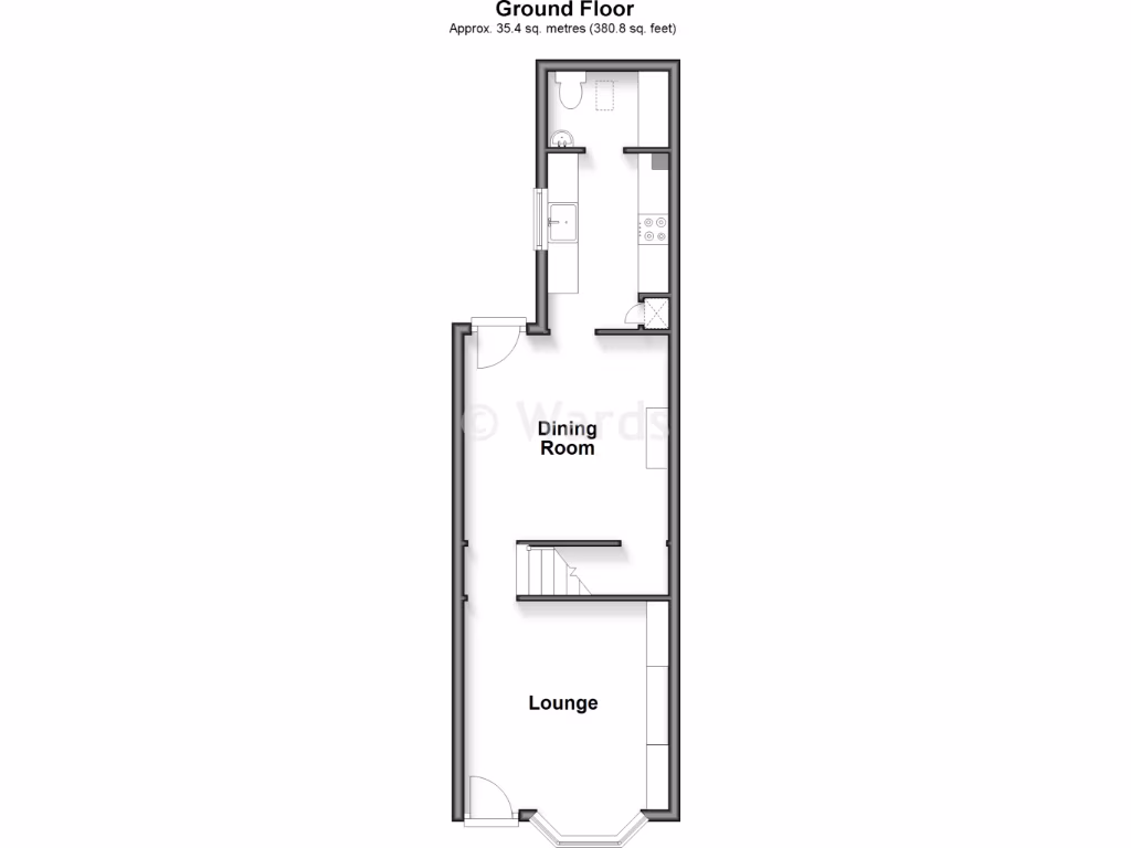
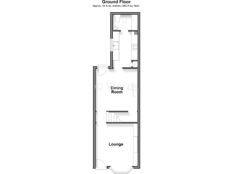
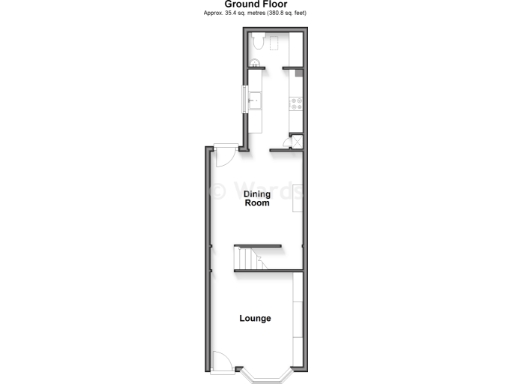
Accommodation is compact but well arranged across approximately 743 sq ft: a lounge and separate dining room, two double bedrooms and a recently updated bathroom and kitchen. There is a small rear garden and practical utility space, and the property is offered chain free on freehold tenure.
Buyers should note material negatives factually: the home sits in a high flood-risk zone and local crime levels are reported as very high. The original solid brick walls appear uninsulated, so additional insulation work could be needed to improve energy efficiency. Despite these issues, the location’s strong rental and amenity provision and excellent mobile signal support both owner-occupiers and lettings demand.
This is a sensible buy for someone seeking immediate, central accommodation or a lettable asset with scope for targeted improvements (thermal insulation, ongoing security measures) to increase comfort and long-term value.
2 bedroom terraced house for sale in St. Peter's Grove, Canterbury, Kent, CT1 — £215,000 • 2 bed • 1 bath • 743 ft²
3 bedroom end of terrace house for sale in St. Peter's Grove, Canterbury, Kent, CT1 — £350,000 • 3 bed • 2 bath • 897 ft²
2 bedroom end of terrace house for sale in Canterbury, Kent, CT1 — £280,000 • 2 bed • 1 bath • 591 ft²
2 bedroom terraced house for sale in St. Peters Grove, Canterbury, Kent, CT1 — £325,000 • 2 bed • 2 bath • 650 ft²
2 bedroom terraced house for sale in Military Road, Canterbury, Kent, CT1 — £175,000 • 2 bed • 1 bath • 840 ft²
2 bedroom semi-detached house for sale in Beer Cart Lane, Canterbury, Kent, CT1 — £400,000 • 2 bed • 1 bath • 786 ft²






































