Renovated three-bedroom near universities and transport links.
Chain free sale for quick completion
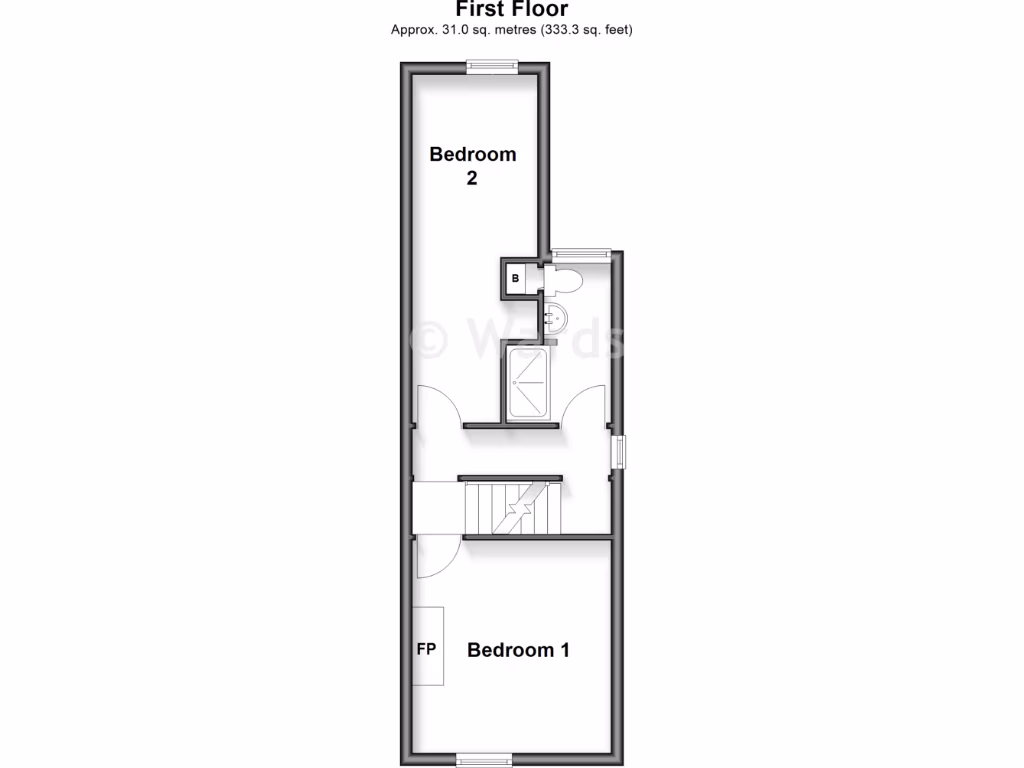
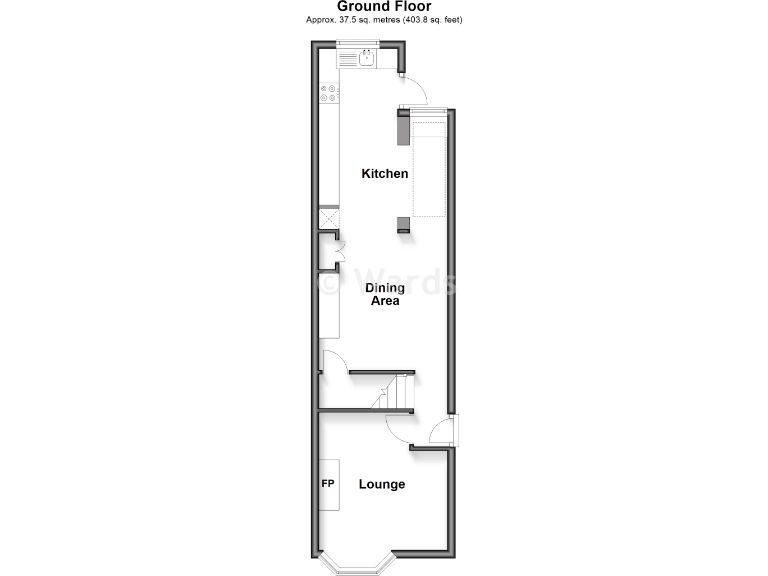
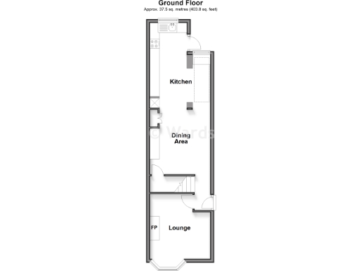
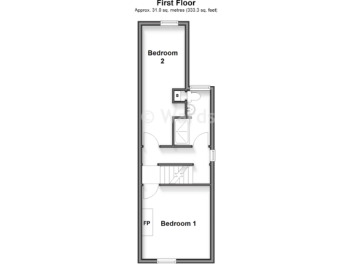
This newly renovated three-bedroom end-of-terrace combines Victorian character with contemporary finishes, offered chain free for a swift move. The living rooms and kitchen benefit from thoughtful updates and natural light, while a versatile loft room provides extra bedroom or home-office space.
Set within easy walking distance of Canterbury city centre, universities and the train station, the location is ideal for first-time buyers seeking city convenience and strong rental demand. A private, low-maintenance rear garden provides outdoor space without heavy upkeep.
Buyers should note material negatives: the property sits in a high flood-risk area and the local crime level is very high. The plot is small and glazing is secondary rather than full double glazing. These factors affect insurance, ongoing risk mitigation and future running costs.
Overall this offers a practical, characterful home ready to occupy, suitable for buyers prioritising location, low-maintenance outdoor space and a move-in-ready interior — provided they accept the flood and security considerations.
2 bedroom terraced house for sale in St. Peter's Grove, Canterbury, Kent, CT1 — £325,000 • 2 bed • 1 bath • 743 ft²
3 bedroom terraced house for sale in Hospital Lane, Canterbury, CT1 — £389,500 • 3 bed • 2 bath • 1121 ft²
2 bedroom terraced house for sale in St. Peters Grove, Canterbury, Kent, CT1 — £325,000 • 2 bed • 2 bath • 650 ft²
3 bedroom terraced house for sale in St. Peters Grove, Canterbury, CT1 — £350,000 • 3 bed • 2 bath • 928 ft²
3 bedroom terraced house for sale in Clyde Street, Canterbury, CT1 — £290,000 • 3 bed • 1 bath • 955 ft²
3 bedroom terraced house for sale in St. Peters Grove, Canterbury, Kent, CT1 — £350,000 • 3 bed • 1 bath • 957 ft²


































































