SE15 3XH - 1 bed kimberley garden flat in Camberwell And Peckham, SE15…

View on Property Piper

1 bedroom flat for sale in Kimberley Avenue, London, SE15

Summary - Kimberley Avenue, SE15 SE15 3XH

1 bed 1 bath Flat

Chain-free ground-floor one-bedroom with scope to add value.
Chain-free ground-floor flat with private garden
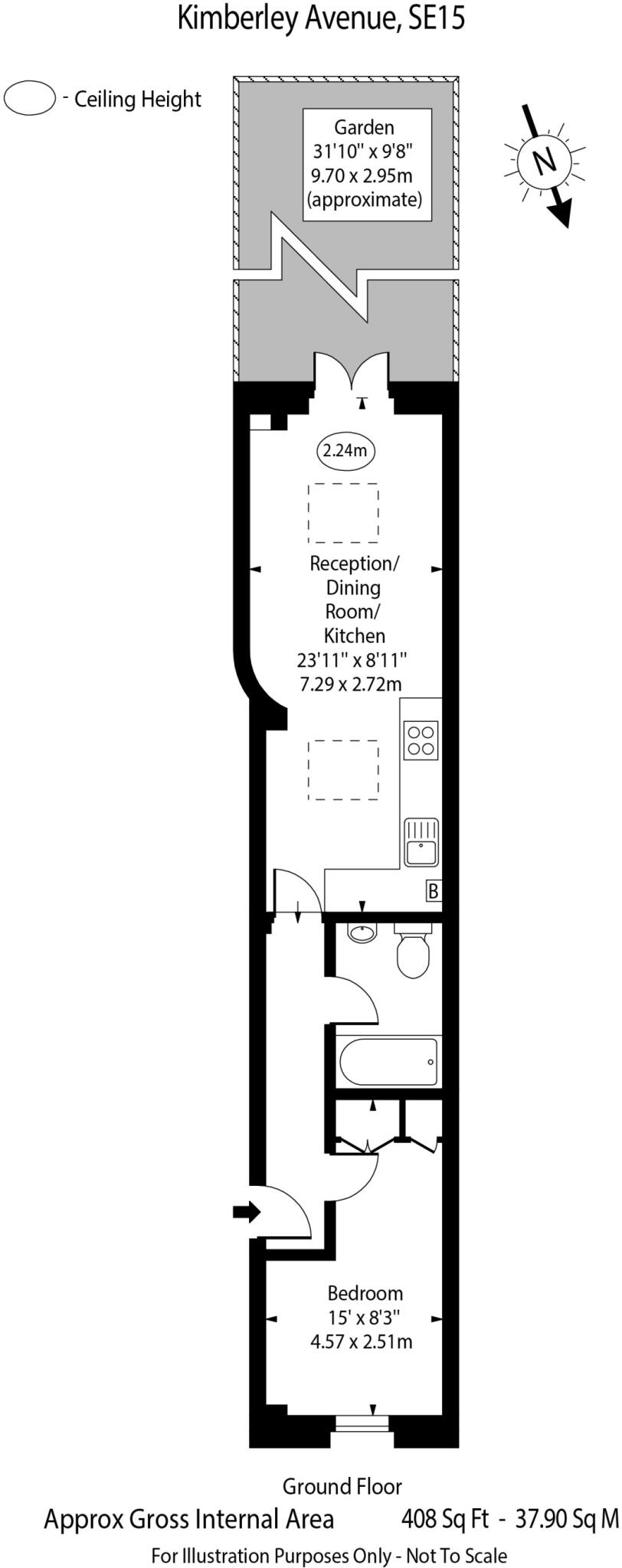
Set on a quiet SE15 street, this chain-free ground-floor flat pairs a private garden with a long 999-year lease — an uncommon combination for a compact city property. The open-plan living and kitchen space benefits from modern fittings, double glazing and natural light, while the bedroom includes built-in storage. Council tax is low and running costs are helped by a below-average service charge.

The building is a Victorian mid-terrace with solid brick walls and original period character. That solidity is attractive, but the walls are assumed uninsulated, so buyers should budget for possible thermal upgrades if improving energy efficiency. The flat’s modest 408 sq ft footprint is best suited to a single occupant or couple, or as a rental investment with simple management needs.

Local amenities, good broadband and excellent mobile signal support urban living; several well-rated primary and secondary schools are nearby. The wider neighbourhood shows signs of deprivation, so buyers seeking long-term value should factor in potential for improvement and resale timing. There is no flood risk recorded.

Overall this is a straightforward purchase for a first-time buyer or investor who wants a ready-to-move-in city flat with a garden and a very long lease, while accepting its small size and likely need for insulation or other targeted upgrades.

Property Details

Image Descriptions

Floorplan Description

Rooms

Textual Property Features

Target Audience

AI Tags

Detected Visual Features

EPC Details

Nearby Schools

Nearest Bars And Restaurants

,,,,}

Nearest General Shops

,,}

Nearest Grocery shops

,,}

Nearest Supermarkets

,,}

Nearest Religious buildings

,,}

Nearest Medical buildings

,,,}

Nearest Airports

,,}

Nearest Leisure Facilities

,,,,}

Nearest Tourist attractions

,,}

Nearest Train stations

,,,,}

Nearest Bus stations and stops

,,,,}

Nearest Hotels

,,}

Tags

Local Market Stats

AirBnB Data

Similar Properties

Meta

High Res Images

Compatible Images

Low res Images

Thumbnails

Raw Images

High Res Floorplan Images

Compatible Floorplan Images

Low res Floorplan Images

FloorplanImages Thumbnail

Raw Floorplan Images