Entry purchase with garden, long lease and easy transport links.
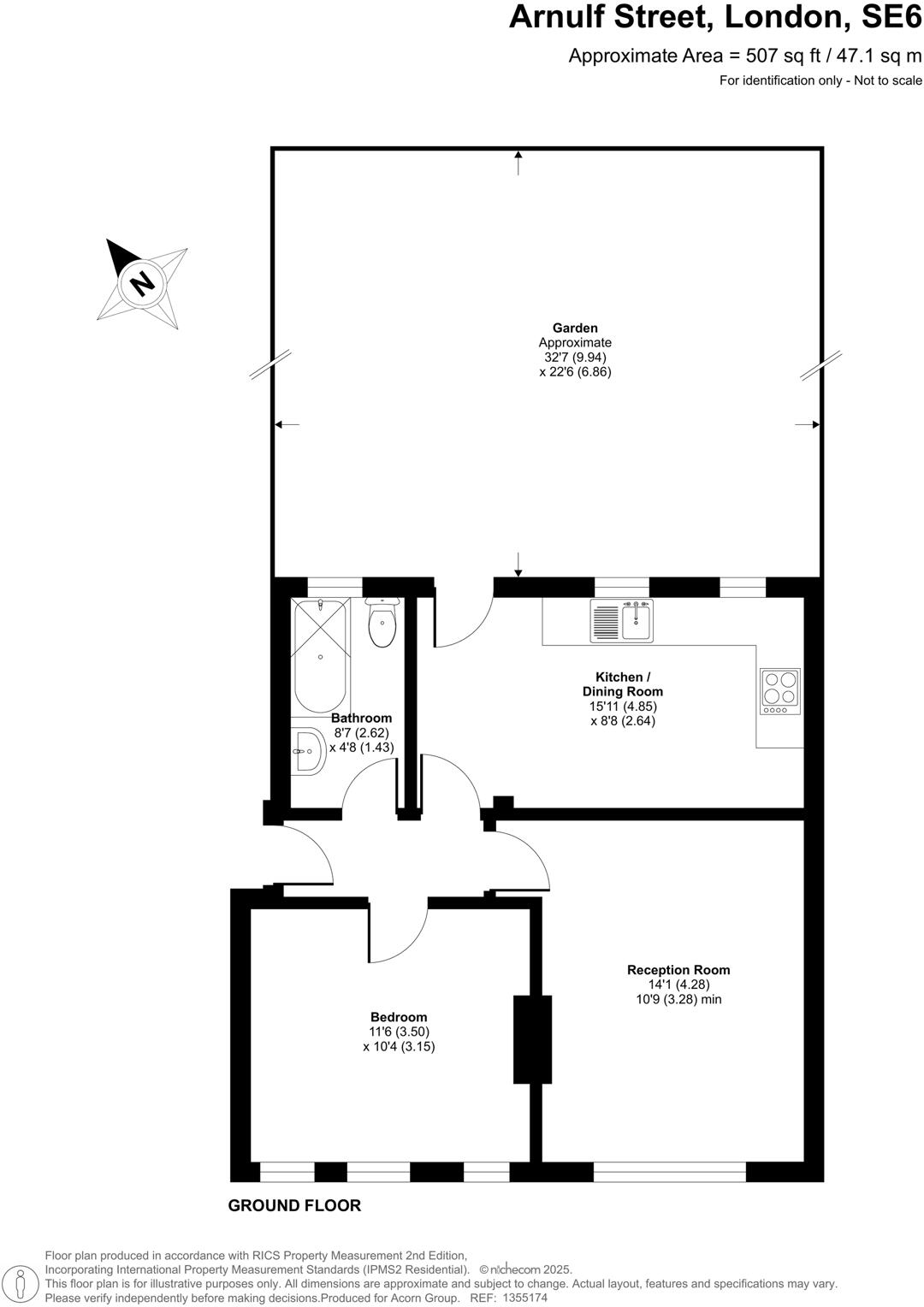
- One double bedroom with large lounge and kitchen-diner
- Private rear garden with patio, requires external maintenance
- 103 years remaining on lease; chain free sale
- Current public notice: offer of £220,000 recorded
- Service charge and ground rent not provided (TBC)
- Built 1950–1966 with period features and high ceilings
- Area classified as very deprived; local crime average
- Good local schools, walking distance to stations and amenities
This ground-floor one-bedroom apartment offers a straightforward entry point to the SE6 market with a long lease and private garden. The property’s Victorian brick exterior and high ceilings give genuine period character, while the internal layout includes a large lounge and a kitchen-diner with direct garden access.
The flat is chain free and has 103 years remaining on the lease, making it attractive to first-time buyers and buy-to-let investors. Local amenities, several good-rated primary and secondary schools, and nearby stations are all within walking distance. Broadband and mobile signal are strong, and council tax is low.
Buyers should note the property sits in a very deprived area and has average local crime levels. The front garden and some external areas need maintenance, and double glazing install dates are unknown. Service charge and ground rent figures are not provided. A public notice records a current offer of £220,000, so interested parties may wish to act quickly.
Overall this is a practical, characterful one-bedroom flat with garden space and long lease length, suitable for first-time buyers prepared to carry out light external maintenance or modest internal updating.
1 bedroom flat for sale in Britton Close, London, SE6 — £225,000 • 1 bed • 1 bath • 473 ft²
1 bedroom flat for sale in Ryecroft Road, London, SE13 — £260,000 • 1 bed • 1 bath • 565 ft²
2 bedroom apartment for sale in Battersby Road, London, SE6 — £250,000 • 2 bed • 1 bath • 559 ft²
2 bedroom ground floor flat for sale in Beckenham Hill Road, Beckenham Hill, SE6 — £300,000 • 2 bed • 2 bath • 754 ft²
1 bedroom apartment for sale in Barmeston Road, London, SE6 — £285,000 • 1 bed • 1 bath • 519 ft²
2 bedroom maisonette for sale in Blythe Hill, Honor Oak, SE6 — £475,000 • 2 bed • 1 bath • 725 ft²


























































