Energy-efficient family home with large garden and parking for two.
Three bedrooms with one ideal as study or nursery
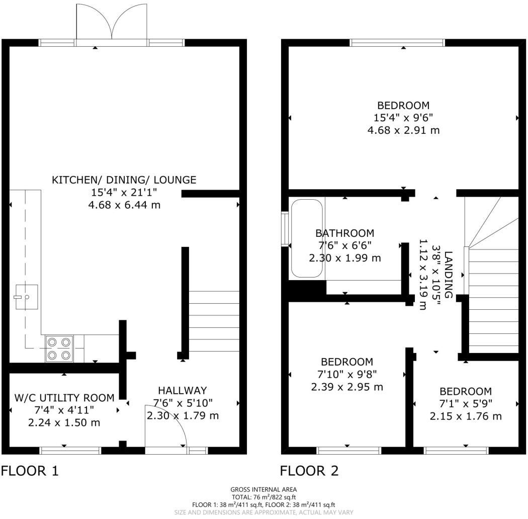
Open-plan kitchen/dining/living with bi-fold doors to garden
Underfloor heating throughout with air-source heat pump
Private parking for two cars with electric charging point
Loft structurally prepared for conversion, requires finishing
Single family bathroom only for three bedrooms
10-year Build Zone new-build warranty included
Expected EPC B but final certificate pending
A light-filled, three-bedroom new-build semi-detached home in Herstmonceux offering modern finishes and energy-efficient systems. The ground floor opens to a spacious open-plan kitchen/dining/living area with bi-fold doors to a south-facing garden, underfloor heating throughout, and an air-source heat pump for lower running costs. Private parking for two cars includes an electric charging point, and the plot is unusually large for the location.
Accommodation is practical for families: two good bedrooms plus a third room ideal as a study or nursery, and a family bathroom serving the whole house. The loft is structurally prepared with a staircase for future conversion, but will require full finishing to become usable living space. The property totals approximately 822 sq ft and is offered freehold.
Built to modern standards and covered by a 10-year Build Zone new-build guarantee, the home is expected to achieve an EPC rating of at least B (awaiting certification). Buyers should note all marketing imagery is CGI-based and there may be minor finishes that differ on completion. Broadband speeds are average for the area.
This house suits families or first-time buyers looking for a low-maintenance, energy-efficient home in a village setting with good local schools and easy road links to nearby towns. The single family bathroom and the unfinished loft conversion represent the main limitations and potential improvement opportunities.
3 bedroom semi-detached house for sale in West End, Herstmonceux, East Sussex, BN27 — £375,000 • 3 bed • 1 bath • 822 ft²
4 bedroom detached house for sale in Honeysuckle Cottage, Off West End, Herstmonceux, East Sussex, BN27 — £575,000 • 4 bed • 2 bath • 1802 ft²
3 bedroom semi-detached house for sale in Plot 13 Farm Field Place, Herstmonceux, BN27 — £425,000 • 3 bed • 2 bath • 1104 ft²
3 bedroom detached house for sale in 7 Farm Field Place, Herstmonceux, BN27 — £425,000 • 3 bed • 1 bath • 1007 ft²
4 bedroom detached house for sale in Oak Way, Herstmonceux, Hailsham, East Sussex, BN27 — £470,000 • 4 bed • 2 bath • 1345 ft²
4 bedroom semi-detached house for sale in Gardner Street, Herstmonceux, Hailsham, BN27 — £475,000 • 4 bed • 3 bath • 1248 ft²


































