Corner investment with extensive accommodation, garage and conversion potential.
Prominent town-centre corner location opposite Mount Pleasant
Grade II listed — restrictions and Listed Building consent required
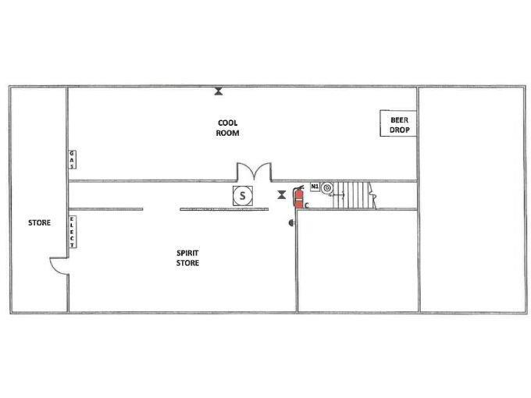
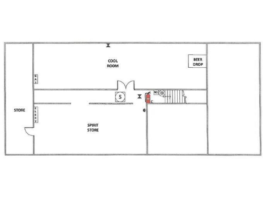
Extremely large footprint — c.3,182 sq ft across three storeys
Five first- and second-floor bedrooms; ground-floor bar and games room
Cellar of two rooms with good head height; direct garage access
Garage and secure rear store provide storage and delivery access
Vacant possession offered; long-term lease exists — review terms
Area: very deprived local indicators and higher recorded crime
A substantial Grade II listed corner public house in a prominent town-centre position, offered with vacant possession. The Britannia provides extensive ground-floor bars, a large cellar, and five-bedroom accommodation above, all within an overall footprint of approximately 3,182 sq ft. An included rear garage and separate store add practical value for trade or conversion.
The property has clear commercial potential for an investor or operator: spacious trading rooms, high ceilings in parts, established layouts and an EPC rating of C. Fast broadband and excellent mobile signal support modern hospitality use or residential reconfiguration. Note there is a long-term lease in place (buyer must review terms) while the tenure is shown as freehold.
Important constraints: the building's Grade II listed status will restrict alterations and could increase consenting costs and timescales. The immediate area scores high on deprivation metrics and recorded crime is high — both factors to consider for continued pub trade and lettings. Buyers should budget for upkeep and listed-building compliance; a pre-purchase survey and review of lease documentation are strongly recommended.
Commercial property for sale in Abbey Road, Barrow-In-Furness, LA14 — £545,000 • 1 bed • 1 bath • 2580 ft²
3 bedroom property for sale in Quarry Brow, Barrow In Furness, LA14 — £380,000 • 3 bed • 1 bath • 1688 ft²
2 bedroom terraced house for sale in Hall Street, Barrow-in-furness, LA14 1DR, LA14 — £59,950 • 2 bed • 1 bath • 737 ft²
3 bedroom end of terrace house for sale in Hartington Street, Barrow-in-Furness, LA14 — £250,000 • 3 bed • 1 bath • 4293 ft²
2 bedroom terraced house for sale in St. Vincent Street, Barrow-In-Furness, LA14 — £120,000 • 2 bed • 2 bath • 743 ft²
High street retail property for sale in Hibbert Road, Barrow-In-Furness, LA14 — £150,000 • 1 bed • 1 bath • 447 ft²






























































































