Versatile central property with roof terrace and commercial space.
Traditional stone townhouse with mixed-use potential
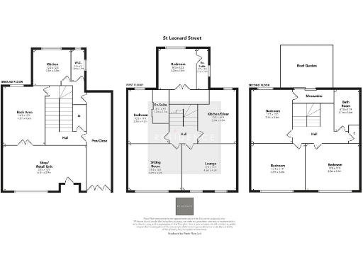
A rare stone-built townhouse offering flexible mixed-use potential in central Lanark. The ground floor retail unit with rear store and W.C. sits beneath a spacious seven-room upper villa, creating options for owner-occupation with income, single-family use, or a standalone business.
The upper villa is arranged over two floors and features a large first-floor bedroom with en-suite, an attractive lounge with large front windows, a fitted dining kitchen, three further double bedrooms and a roof terrace with views towards Tinto Hill. Gas central heating, new double glazing and plentiful storage make the house comfortable with minimal immediate expenditure on basic services.
Practical considerations are straightforward: there is no private garden, parking is off-street but limited to nearby cobbled close and Wellhead Court, and the property sits in a very deprived part of town with mixed local social indicators. The retail unit is vacant and will require decisions on fit-out or continued commercial use; the building’s mixed-use layout may need adaptation and planning checks depending on your intended use.
For buyers seeking a character property with clear income or conversion potential, this townhouse offers scale, location and a roof terrace with views — balanced by the need to manage a town-centre environment and to commit to any chosen refurbishment or change of use.
Commercial property for sale in Bannatyne Street, Lanark, Lanarkshire, ML11 — £65,000 • 2 bed • 1 bath • 693 ft²
3 bedroom character property for sale in Westport, Lanark, ML11 — £190,000 • 3 bed • 1 bath • 1071 ft²
Commercial property for sale in High Street, Lanark, ML11 — £160,000 • 1 bed • 1 bath • 3229 ft²
3 bedroom town house for sale in Bloomgate, Lanark, ML11 — £195,000 • 3 bed • 1 bath • 1004 ft²
2 bedroom terraced house for sale in Kildare Drive, Lanark, South Lanarkshire, ML11 — £105,000 • 2 bed • 1 bath • 605 ft²
2 bedroom ground floor flat for sale in Greenside Lane, Lanark, ML11 — £110,000 • 2 bed • 1 bath • 1032 ft²


























































































































































