Affordable freehold shop/office with flexible upper rooms for investors or small business.
Freehold commercial unit in central Lanark town centre, opposite train station
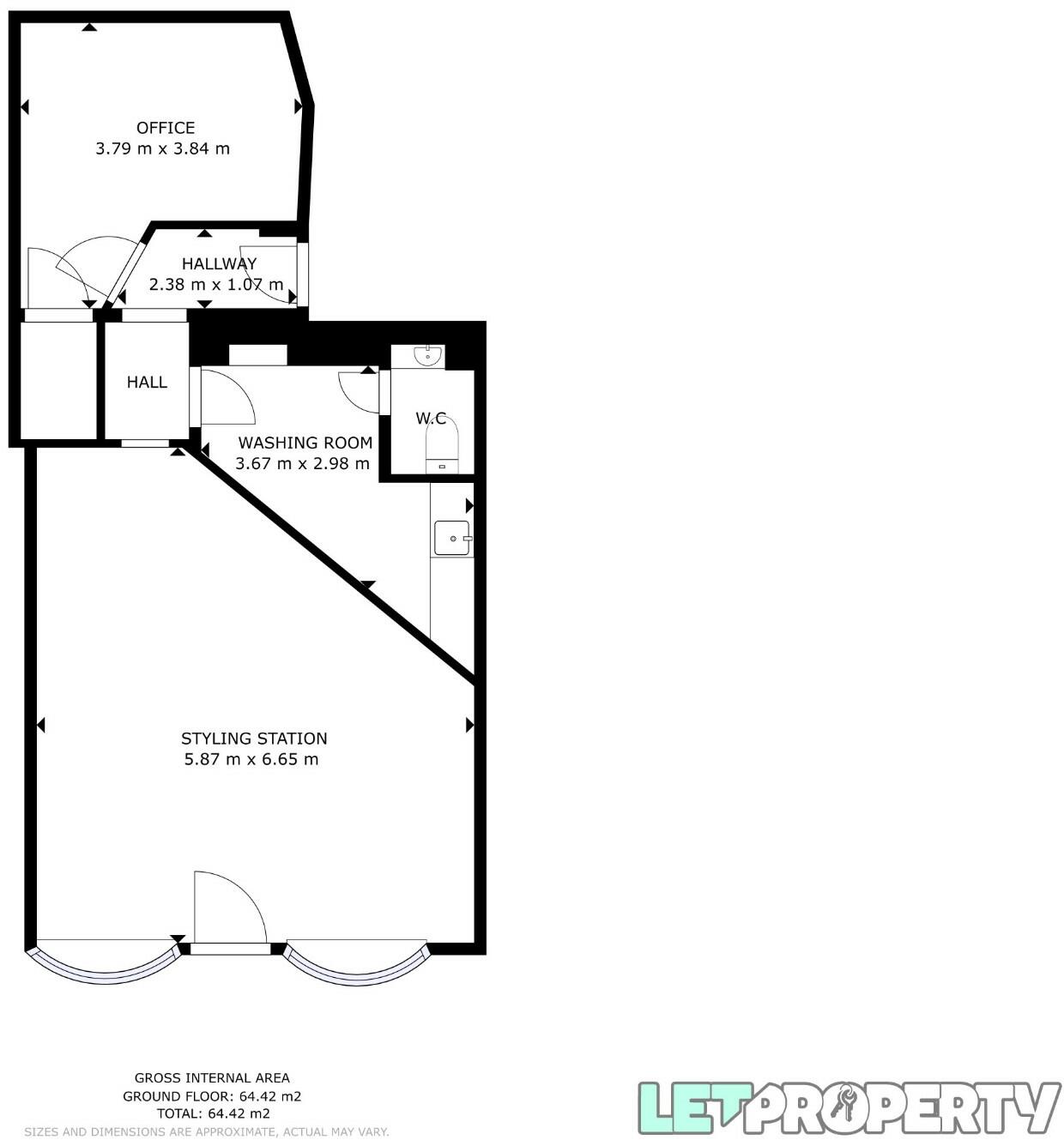
Ground-floor large lobby/retail area with private office to the rear
Includes washing room, WC, and two upper-floor rooms plus one bathroom
Approx. 693 sq ft total — compact, manageable footprint
Excellent mobile signal; broadband speeds average
Located in a very deprived area — trade and footfall may be limited
Sold as a refurbishment/renovation opportunity; likely upgrade works needed
Buyers’ premium payable on completion
Set on Bannatyne Street in the heart of Lanark town centre, this freehold commercial property offers a compact, versatile footprint for a small retail, salon, or office operator. The ground floor features a large front lobby/retail area with a separate private office, washing room and WC. Upper rooms include two bedrooms and one bathroom, providing potential staff accommodation, storage, or flexible workspace.
The property is neutrally presented and described as being in good condition, with standard ceiling heights and traditional mid-terrace frontage that suits high-street retail or service uses. Its location opposite Lanark train station and close to shops, cafes and local amenities ensures steady footfall and convenient staff commuting. Mobile signal is excellent; broadband speeds are average.
Practical considerations are clear and factual: the area is classified as very deprived and the building is promoted as a renovation/refurbishment opportunity — buyers should allow for upgrade works to maximise value. A buyers’ premium will apply on sale, and the property is offered at a low freehold price reflecting its size (approximately 693 sq ft) and scope.
This is a straightforward purchase for an investor or small business seeking an affordable town-centre foothold. It suits a buyer prepared to undertake modest improvements and to capitalise on the central location and mixed-use potential.
Commercial property for sale in High Street, Lanark, ML11 — £160,000 • 1 bed • 1 bath • 3229 ft²
5 bedroom town house for sale in St. Leonard Street, Lanark, ML11 — £265,000 • 5 bed • 3 bath • 1539 ft²
High street retail property for sale in High Street, Lanark, Lanarkshire, ML11 — £175,000 • 1 bed • 1 bath • 1435 ft²
Mixed use property for sale in 10 King Street, Stonehouse, ML9 3EF, ML9 — £55,000 • 1 bed • 1 bath
1 bedroom flat for sale in Castlegate, Lanark, ML11 — £84,000 • 1 bed • 1 bath • 487 ft²
2 bedroom ground floor flat for sale in Greenside Lane, Lanark, ML11 — £110,000 • 2 bed • 1 bath • 1032 ft²


































































