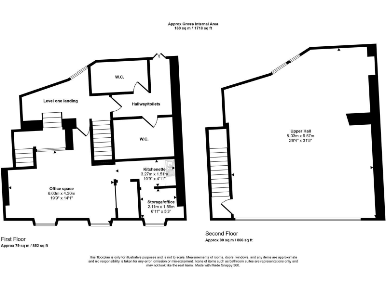
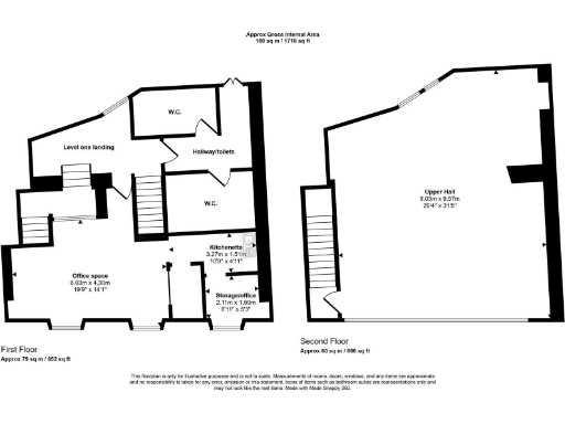
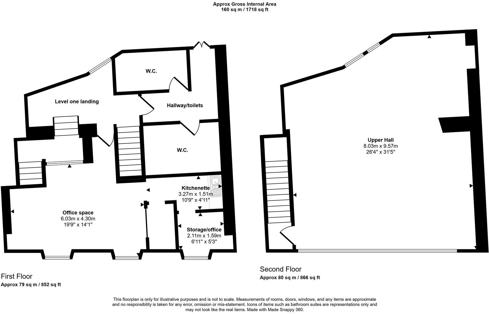
**Property Summary:**
- **Location:** High Street, Lanark
- **Price:** £160,000
- **Size:** Approximately 300 square meters (3,229 sq ft)
- **Type:** Commercial Property, Freehold
- **Configuration:** Ground floor retail, Class 10 premises on first and second floors
- **Potential Uses:** Retail, Office, Residential (subject to planning)
- **Condition:** Fixer-upper, requiring renovation
- **Nearby Amenities:** Excellent accessibility to shops, healthcare, and leisure facilities
Seize the rare opportunity to own a versatile commercial property in the heart of Lanark’s bustling High Street! This expansive mixed-use building offers a self-contained retail unit on the ground floor, previously a bakery, along with Class 10 premises above, providing an ideal canvas for various commercial or residential conversions. With its impressive 3,229 sq ft layout and large windows, natural light floods the space, and the adaptable interior allows for creative customization.
This property benefits from high visibility and foot traffic, making it perfect for an investor or owner-occupier seeking a high-potential location. Although it may require some renovations, the possibilities are vast, ranging from a trendy retail outlet to a vibrant community space. Don't miss out on this unique investment opportunity in a prime location—properties like this don't last long!
Commercial property for sale in Broomgate, Lanark, ML11 — £60,000 • 1 bed • 1 bath • 757 ft²
Commercial property for sale in Wellgate, Lanark, ML11 — £45,000 • 1 bed • 1 bath
Commercial property for sale in Bannatyne Street, Lanark, Lanarkshire, ML11 — £65,000 • 2 bed • 1 bath • 693 ft²
Commercial property for sale in Wide Close, Lanark, Lanarkshire, ML11 — £15,000 • 1 bed • 1 bath
5 bedroom town house for sale in St. Leonard Street, Lanark, ML11 — £265,000 • 5 bed • 3 bath • 1539 ft²
4 bedroom flat for sale in 72 High Street, Carluke, ML8 4AJ, ML8 — £75,000 • 4 bed • 2 bath • 489 ft²










































































