G14 9GE - 4 bed corner four bedroom home in Glasgow North West, G14 9…

View on Property Piper

4 bedroom end of terrace house for sale in 1 Norse Place, Scotstoun, G14 9GE, G14

Summary - 1, NORSE PLACE G14 9GE

4 bed 1 bath End of Terrace

Spacious family layout with garage, garden and fast broadband.
Four bedrooms with built-in storage throughout
Open-plan lounge and dining area, good natural light
Modern fitted kitchen with garden access
Private rear garden, driveway and single garage
Owns front and side land, corner-plot advantage
Single three-piece bathroom only for four bedrooms
Gas central heating, double glazing, EER Band C
Area classified as very deprived; council tax expensive
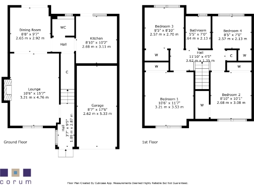
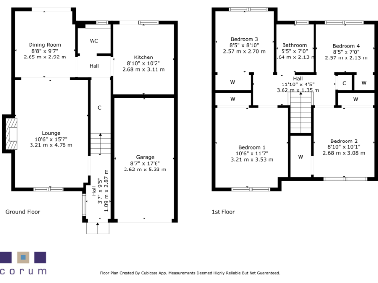
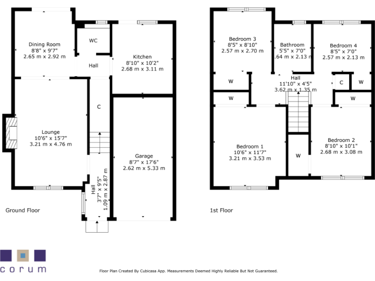
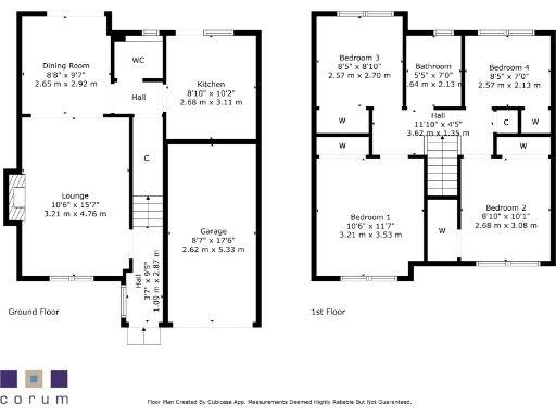
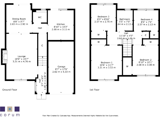
This well-presented four-bedroom end-of-terrace sits on a corner plot and offers practical family living across two storeys. The ground floor has a bright lounge open to a dining area, a modern fitted kitchen with garden access, and a convenient downstairs WC. Upstairs are four bedrooms with built-in storage and a fully tiled three-piece bathroom with shower over bath.

Outdoor space includes a private rear garden, a driveway and an attached single garage, plus ownership of the land to the front and side. The property benefits from gas central heating, double glazing and an Energy Efficiency Rating of C, with excellent mobile signal and fast broadband.

Buyers should note there is only one bathroom for four bedrooms and council tax is described as expensive. The wider neighbourhood is classified as very deprived, which may affect local services and resale dynamics. Overall, the house offers sensible family accommodation with modest renovation or modernisation potential to increase value.

Property Details

Brochure Descriptions

Image Descriptions

Floorplan Description

Rooms

Textual Property Features

Target Audience

AI Tags

Detected Visual Features

Nearest Bars And Restaurants

,,,,}

Nearest General Shops

,,}

Nearest Grocery shops

,,}

Nearest Supermarkets

,,}

Nearest Religious buildings

,,}

Nearest Medical buildings

,,,}

Nearest Airports

,}

Nearest Leisure Facilities

,,,,}

Nearest Tourist attractions

,,}

Nearest Train stations

,,,,}

Nearest Bus stations and stops

,,,,}

Nearest Hotels

,,}

Tags

Local Market Stats

AirBnB Data

Similar Properties

Meta

High Res Images

Compatible Images

Low res Images

Thumbnails

Raw Images

High Res Floorplan Images

Compatible Floorplan Images

Low res Floorplan Images

FloorplanImages Thumbnail

Raw Floorplan Images