Characterful four-bedroom villa with modern kitchen, garage and low-maintenance garden.
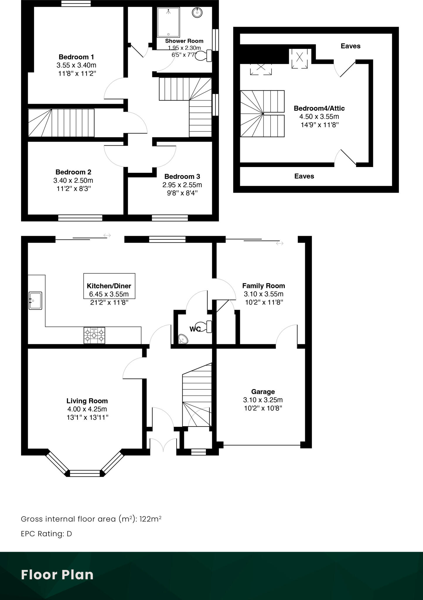
Four bedrooms across three levels with adaptable top-floor snug
Modern kitchen with central island and integrated appliances
Attached single garage plus driveway for off-street parking
Low-maintenance landscaped rear garden with decking and lighting
Double glazing, gas central heating and solar panels reduce running costs
Excellent mobile signal and fast broadband (full 5G reported)
Single shower room for four bedrooms — may cause morning congestion
Located in a very deprived area; investigate local services and schools
This well-presented four-bedroom semi-detached villa is arranged over three levels and suits families seeking a spacious, ready-to-live-in home in an established suburb. The house combines period character — bay windows and interwar proportions — with contemporary upgrades such as a modern kitchen with central island, double glazing, gas central heating and solar panels. A private driveway and attached single garage provide practical off-street parking.
Ground-floor living is arranged for everyday family life: a bright formal lounge, a generous dining kitchen with integrated appliances and a family room that opens onto a low-maintenance rear garden and decking for outdoor entertaining. A useful ground-floor WC adds convenience. The first floor houses three well-proportioned bedrooms and a modern shower room; bedroom four occupies the top floor and is currently used as a snug/occasional room.
Connectivity and running costs are strengths — fast broadband and full 5G mobile coverage are reported, and the property benefits from solar panels and gas central heating. The home is offered freehold and described as in good decorative order, presented for immediate occupation.
A few practical considerations: there is only one shower room for four bedrooms, which may require planning for busy mornings. The house sits in a neighbourhood classified as very deprived, which can affect local services and resale dynamics; buyers should satisfy themselves on local amenities and schooling. Overall, this is a characterful, adaptable family home with contemporary comforts and clear scope for future personalization.
4 bedroom detached house for sale in 4 Leverngrove Court, Glasgow, G53 7TE, G53 — £310,000 • 4 bed • 1 bath • 1022 ft²
4 bedroom semi-detached house for sale in Criffell Road, Glasgow, G32 — £340,000 • 4 bed • 3 bath • 1475 ft²
3 bedroom semi-detached house for sale in Culzean Drive, Mount Vernon, G32 0TD, G32 — £239,995 • 3 bed • 1 bath • 506 ft²
3 bedroom detached villa for sale in Levernbridge Road, Glasgow, G53 — £269,000 • 3 bed • 2 bath • 1284 ft²
3 bedroom semi-detached house for sale in Danby Road, Baillieston, G69 7LH, G69 — £230,000 • 3 bed • 2 bath • 1037 ft²
4 bedroom bungalow for sale in Wester Road, Mount Vernon, G32 9JH, G32 — £350,000 • 4 bed • 2 bath • 1065 ft²






















































































































