AB55 6TY - Land for sale in Plot 3 Hill Street, Newmill, Keith, AB55 6…

View on Property Piper

Land for sale in Plot 3 Hill Street, Newmill, Keith, AB55 6TY, AB55

Summary - Site at Hill St, Newmill AB55 6TY

1 bed 1 bath Land

**Key Features:**
- Large building plot in picturesque Newmill, Keith,
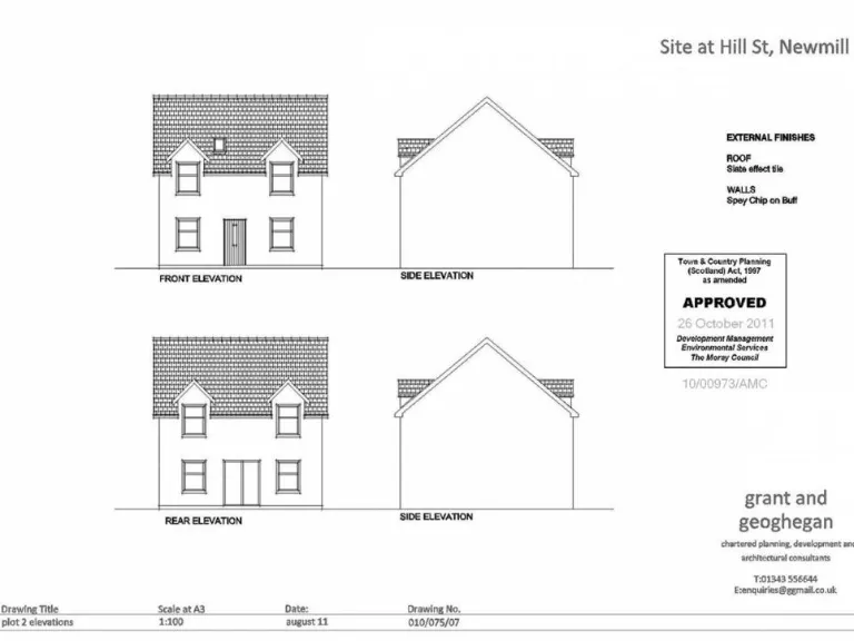
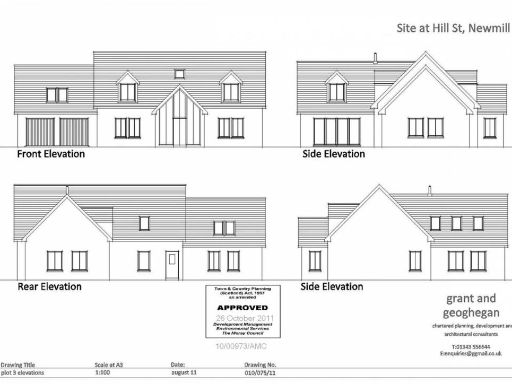
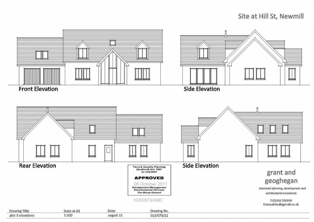
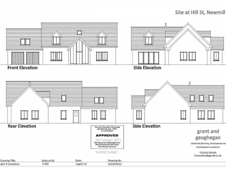
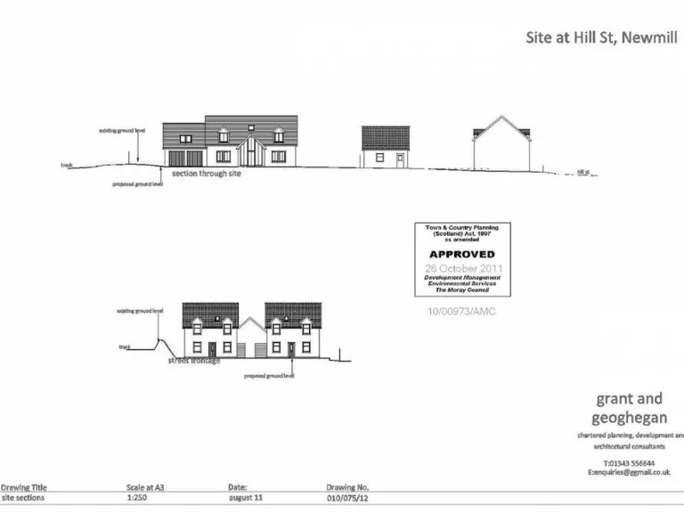
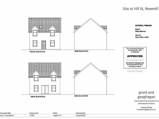
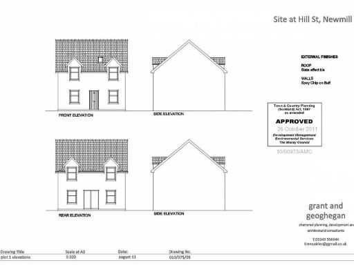
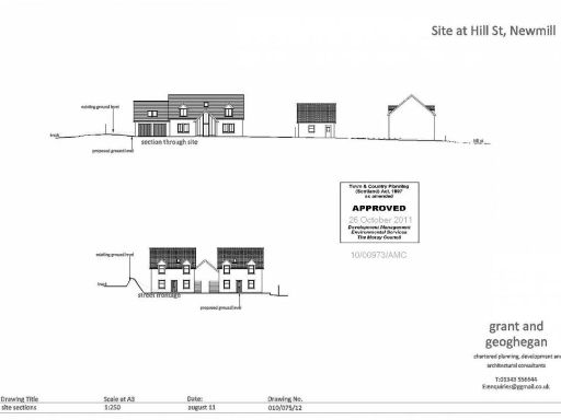
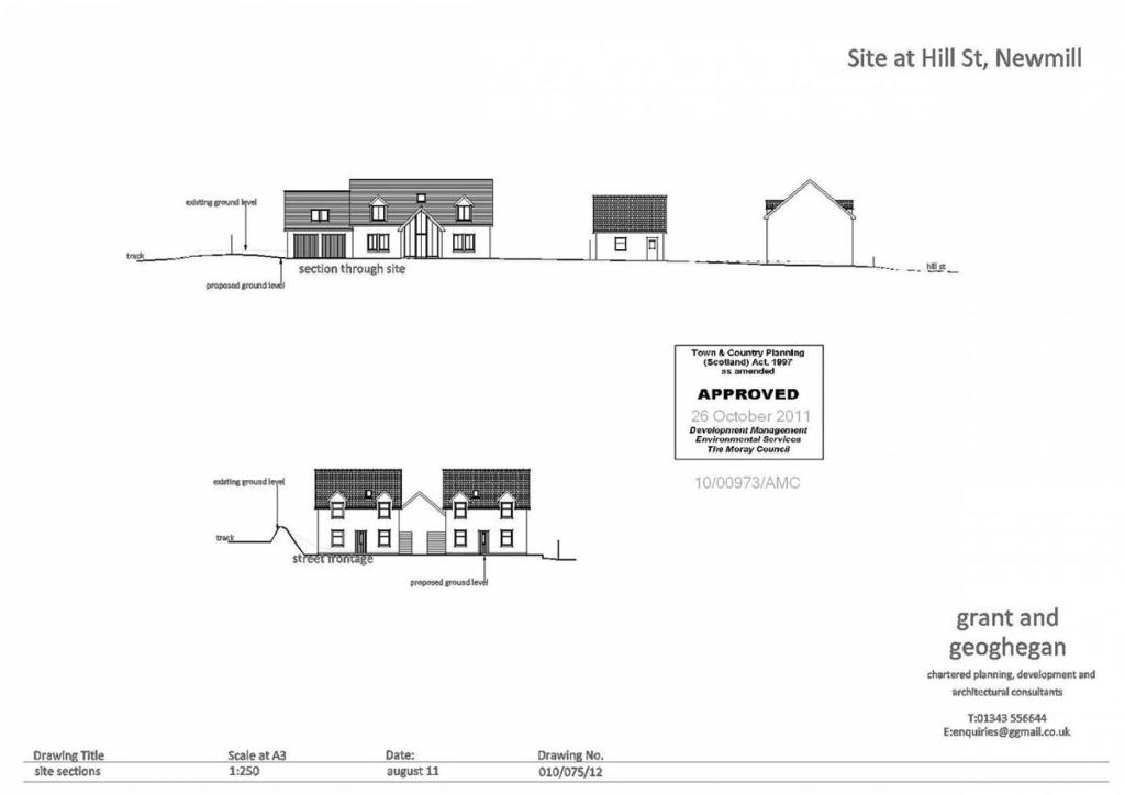
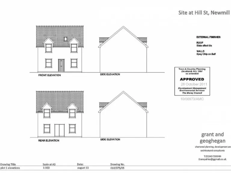
- Full planning permission granted for three detached two-storey homes with garages
- Temporary siting of a residential caravan allowed during construction
- Scenic rural surroundings with open fields and forests
- Close proximity to local amenities, including schools and community spaces
- Opportunity to purchase the three plots individually.

Located in the tranquil village of Newmill, this spacious plot of land offers a brilliant development opportunity with full planning permission for three detached two-storey houses. Just a short drive from Keith and Huntly, this property is perfect for families or investors looking to capitalize on the growing rural market. The gently sloping landscape boasts scenic views, providing an ideal backdrop for your future home or residential builds.

Potential buyers will appreciate the community-oriented location, with local schools and amenities within convenient reach. However, being a marshy site, prospective buyers may need to consider drainage solutions. Whether you're looking to create your dream residence or an attractive rental option, this large plot is a rare find that won't last long—seize this chance to establish yourself in a peaceful village setting today!

Property Details

Brochure Descriptions

Image Descriptions

Floorplan Description

Textual Property Features

Detected Visual Features

Nearest Bars And Restaurants

,,,,}

Nearest General Shops

,,}

Nearest Grocery shops

,,}

Nearest Supermarkets

,,}

Nearest Religious buildings

,,}

Nearest Medical buildings

,,,}

Nearest Leisure Facilities

,,,,}

Nearest Tourist attractions

,,}

Nearest Train stations

,,,,}

Nearest Bus stations and stops

,,,,}

Nearest Hotels

,,}

Tags

Local Market Stats

Similar Properties

Meta

High Res Images

Compatible Images

Low res Images

Thumbnails

Raw Images

High Res Floorplan Images

Compatible Floorplan Images

Low res Floorplan Images

FloorplanImages Thumbnail

Raw Floorplan Images