AB55 6TY - Land for sale in Plot 1, Hill Street, Newmill, Keith, AB55…

View on Property Piper

Land for sale in Plot 1, Hill Street, Newmill, Keith, AB55 6TY, AB55

Summary - Site at Hill St, Newmill AB55 6TY

1 bed 1 bath Land

**Standout Features:**
- **Size:** Large building plot available.
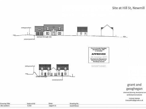
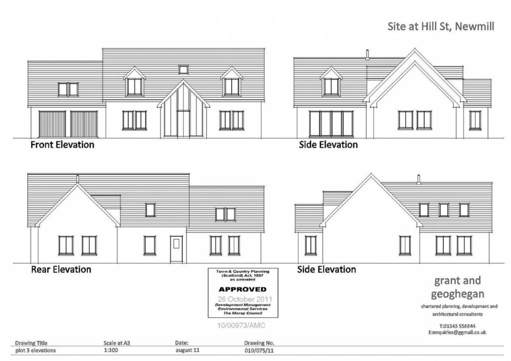
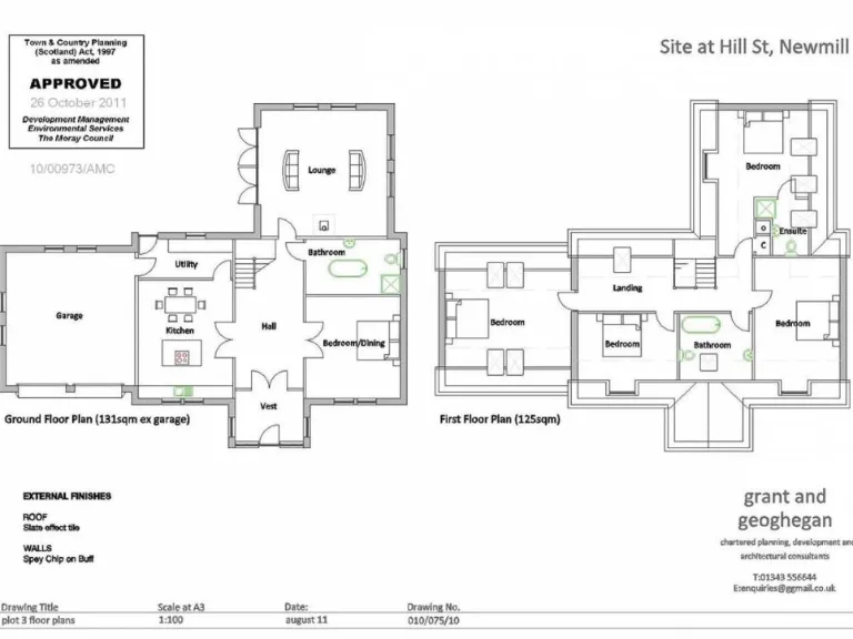
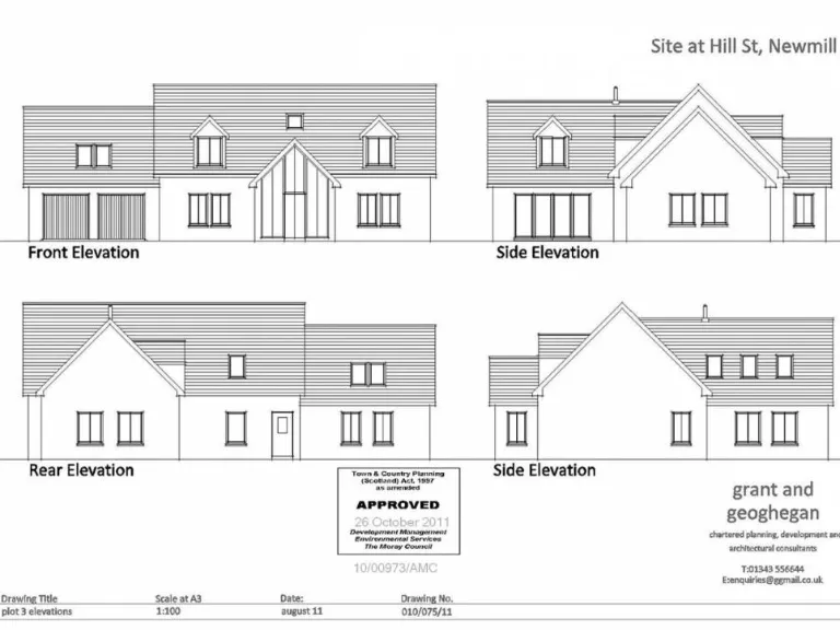
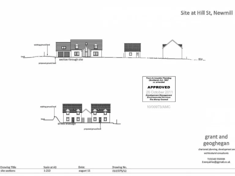
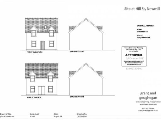
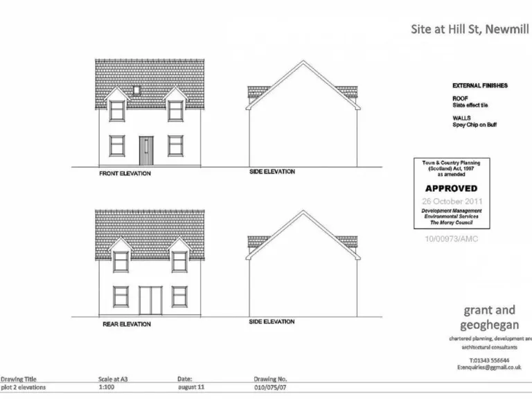
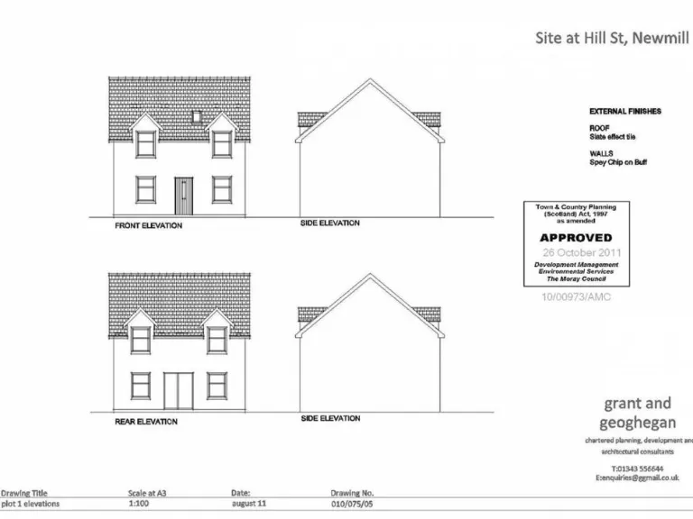
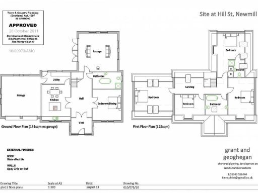
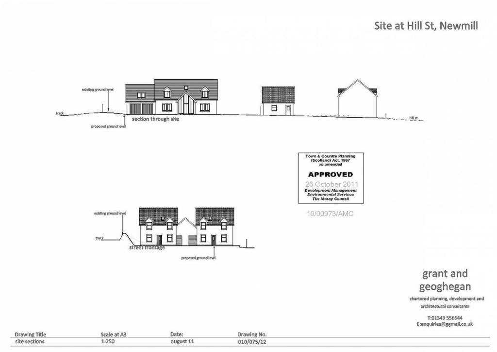
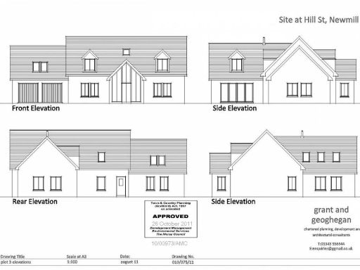
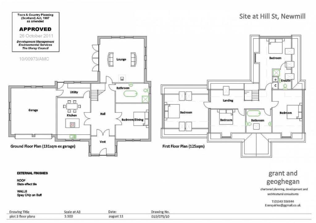
- **Planning Permission:** Full approval granted for three detached two-storey houses and garages.
- **Rural Charm:** Picturesque village location in Newmill, ideal for serene living.
- **Proximity:** Close to amenities in Keith and Huntly; easily accessible public road.
- **Investment Potential:** Options to buy plots individually or collectively.

**Key Details:**
This expansive plot of land on Hill Street in Newmill, Keith, offers an excellent opportunity for prospective developers or investors seeking a tranquil countryside lifestyle. With full planning permission in place for three detached two-storey homes, this property promises significant potential for a bespoke residential project. Nestled within a serene village atmosphere, you will enjoy sweeping views of rolling hills while remaining just a short drive to the conveniences of town life.

The property sits near local amenities including parks and community areas, enhancing its appeal for family living or rental opportunities. However, the area has been categorized as very deprived, which could impact development or investment considerations. Mains electric is available nearby, and average mobile and broadband connectivity covers communication needs. Don’t miss out on this unique opportunity to create something special in a charming rural community—plots can be sold separately for more flexible investment options. Act quickly as such properties can be rare to find!

Property Details

Brochure Descriptions

Image Descriptions

Floorplan Description

Textual Property Features

Detected Visual Features

Nearest Bars And Restaurants

,,,,}

Nearest General Shops

,,}

Nearest Grocery shops

,,}

Nearest Supermarkets

,,}

Nearest Religious buildings

,,}

Nearest Medical buildings

,,,}

Nearest Leisure Facilities

,,,,}

Nearest Tourist attractions

,,}

Nearest Train stations

,,,,}

Nearest Bus stations and stops

,,,,}

Nearest Hotels

,,}

Tags

Local Market Stats

Similar Properties

Meta

High Res Images

Compatible Images

Low res Images

Thumbnails

Raw Images

High Res Floorplan Images

Compatible Floorplan Images

Low res Floorplan Images

FloorplanImages Thumbnail

Raw Floorplan Images