AB55 6QR - Land for sale in Plots at Oakenfield, Newmill, Keith, AB55…

View on Property Piper

Land for sale in Plots at Oakenfield, Newmill, Keith, AB55 6QR, AB55

Summary - OAKENHEAD, KEITH AB55 6QR

1 bed 1 bath Land

**Standout Features:**

- Two generous plots (circa one acre each)
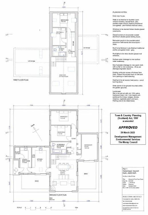
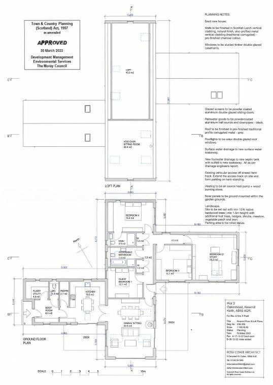
- Full planning permission for detached 4-bedroom homes (ref: 22/01855/APP and 22/01856/APP)
- Sunny, south-facing aspect with breathtaking countryside views
- Peaceful rural location near the amenities of Keith
- Ideal for potential livestock or dedicated garden space
- Chain-free and freehold tenure
- Excellent mobile signal

**Potential Concerns:**

- Broadband speeds in the area are very slow
- The location is classified as “very deprived”

Nestled in a serene rural setting, the Plots at Oakenfield in Newmill, Keith offer a rare opportunity for homebuilders seeking a lifestyle infused with nature and tranquility. Each plot spans approximately one acre and boasts full planning permission for spacious 4-bedroom detached homes. With gentle topography and stunning views across untouched farmland, these plots present the perfect canvas for creating your dream home.

Located just minutes from Keith’s amenities, including supermarkets, schools, and transport links for easy commuting, these plots balance the best of rural living with convenient access to town services. Whether you're envisioning a peaceful family abode or an investment opportunity, the flexibility of purchasing one or both plots opens a world of possibilities, from expansive private gardens to multi-generational living options.

With a competitive price of £75,000 per plot, this is an enticing opportunity that won't last long. Envision the perfect lifestyle amidst Scotland's enchanting landscapes while fostering a sense of community in "the friendly town" of Keith—secure this prime real estate before it’s gone!

Property Details

Image Descriptions

Textual Property Features

Detected Visual Features

Nearest Bars And Restaurants

,,,,}

Nearest General Shops

,,}

Nearest Grocery shops

,,}

Nearest Supermarkets

,,}

Nearest Religious buildings

,,}

Nearest Medical buildings

,,,}

Nearest Leisure Facilities

,,,,}

Nearest Tourist attractions

,,}

Nearest Train stations

,,,,}

Nearest Bus stations and stops

,,,,}

Nearest Hotels

,,}

Tags

Local Market Stats

Similar Properties

Meta

High Res Images

Compatible Images

Low res Images

Thumbnails

Raw Images