Ground-floor two-bed in peaceful Avenues setting with garage and south balcony.
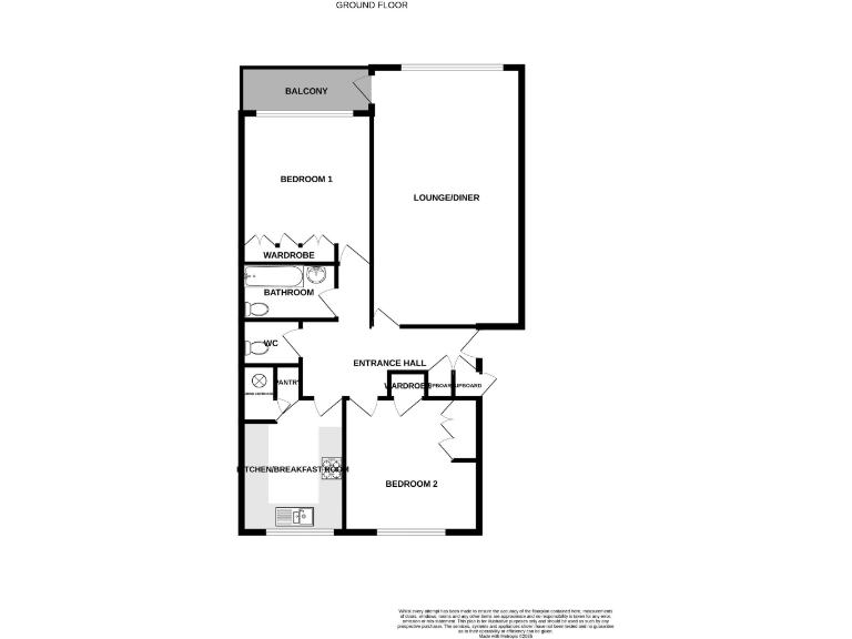
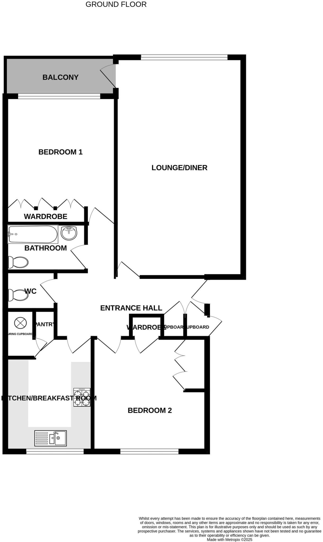
Ground-floor apartment with large lounge/dining room and sun balcony
A well-proportioned ground-floor apartment in the sought-after Avenues area, set within neatly maintained communal gardens. The large lounge/dining room opens onto a covered south-facing sun balcony that enjoys open views across the lawns — ideal for relaxed mornings or afternoon light. Two double bedrooms both feature built-in wardrobes and generous proportions, giving flexible accommodation for residents or visiting family.
The flat benefits from practical features including uPVC double glazing, gas central heating and a garage in a nearby block (recently reroofed). The property is held on a 999-year lease with a share of the freehold, no ground rent and a service charge of approximately £145 per month which covers buildings insurance and communal maintenance.
The interior is well maintained but showing period finishes and would benefit from general refurbishment to modernise kitchen and bathroom fittings and redecoration throughout. That makes this apartment suitable for someone seeking a comfortable, move-inable home with scope to add value through cosmetic updating — particularly attractive to downsizers or older buyers seeking communal living in a quiet, affluent neighbourhood.
Communal facilities include attractive lawns, planted borders, a fish pond, visitors parking and a communal drying/ refuse area. Low local crime, good broadband and nearby amenities (bus links and local schools) further support easy, low-maintenance living.
2 bedroom flat for sale in Douglas Avenue, Exmouth, EX8 2HJ, EX8 — £315,000 • 2 bed • 1 bath • 809 ft²
2 bedroom flat for sale in Cyprus Road, Exmouth, EX8 2DZ, EX8 — £260,000 • 2 bed • 2 bath • 860 ft²
2 bedroom flat for sale in Cranford Avenue, Exmouth, EX8 2HP, EX8 — £249,950 • 2 bed • 1 bath • 735 ft²
2 bedroom flat for sale in Cranford Avenue, Exmouth, EX8 — £259,950 • 2 bed • 2 bath • 2422 ft²
2 bedroom apartment for sale in Cyprus Road, Exmouth, EX8 — £235,000 • 2 bed • 1 bath • 831 ft²
2 bedroom flat for sale in Cranford Avenue, Exmouth, EX8 — £235,000 • 2 bed • 1 bath • 743 ft²










































