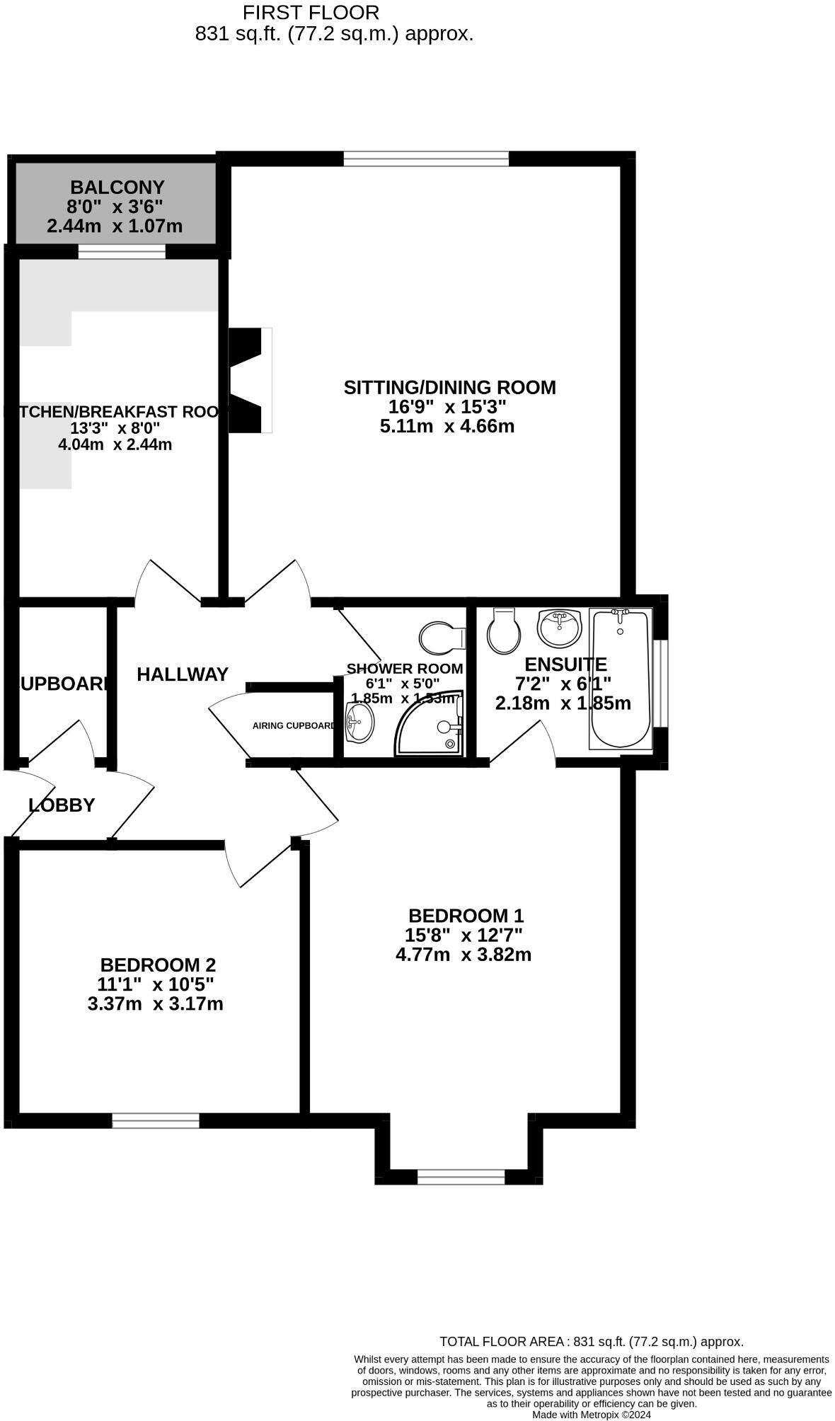
**Standout Features:**
- Spacious first-floor apartment in the desirable “Avenues” area of Exmouth
- 2 Bedrooms, including one with an en-suite bathroom
- Separate shower room and large sitting/dining room
- Access to a balcony with garden views
- Double glazing and gas central heating throughout
- Large communal gardens and a garage for parking
- Chain-free sale for immediate occupancy
- Long lease of 149 years remaining
Nestled in the highly sought-after “Avenues” area of Exmouth, this spacious and well-appointed first-floor apartment offers an excellent opportunity for families, first-time buyers, or investors. Boasting two generously sized bedrooms, including a principal suite with an en-suite bathroom, this home features bright and airy living spaces with a large sitting/dining room that opens to a private balcony overlooking beautifully maintained communal gardens.
With essential amenities just a half-mile away, including shops and the stunning seafront, this property enjoys an enviable location with direct access to coastal paths and outdoor activities along the Exe Estuary. The apartment is equipped with double glazing and gas central heating, providing comfort in all seasons.
While the property is in good condition and ready for immediate move-in, prospective buyers should note the service charge of approximately £1988.88 per annum. With no onward chain, don’t miss this fantastic opportunity to secure a delightful home in an affluent community, with excellent transport links and a serene lifestyle waiting for you. Act fast—properties like this in such a prime location don't come along often!
2 bedroom flat for sale in Cranford Avenue, Exmouth, EX8 — £235,000 • 2 bed • 1 bath • 743 ft²
2 bedroom flat for sale in Aldborough Court, Douglas Avenue, Exmouth, EX8 — £229,950 • 2 bed • 1 bath • 798 ft²
2 bedroom flat for sale in Cranford Avenue, Exmouth, EX8 — £259,950 • 2 bed • 2 bath • 2422 ft²
2 bedroom flat for sale in Cyprus Road, Exmouth, EX8 2DZ, EX8 — £260,000 • 2 bed • 2 bath • 860 ft²
3 bedroom flat for sale in Cranford Avenue, Exmouth, EX8 — £285,000 • 3 bed • 1 bath • 990 ft²
2 bedroom apartment for sale in Douglas Avenue, Exmouth, EX8 — £545,000 • 2 bed • 2 bath • 1073 ft²






































