**Standout Features:**
- Spacious first-floor flat in the desirable "Avenues" area of Exmouth
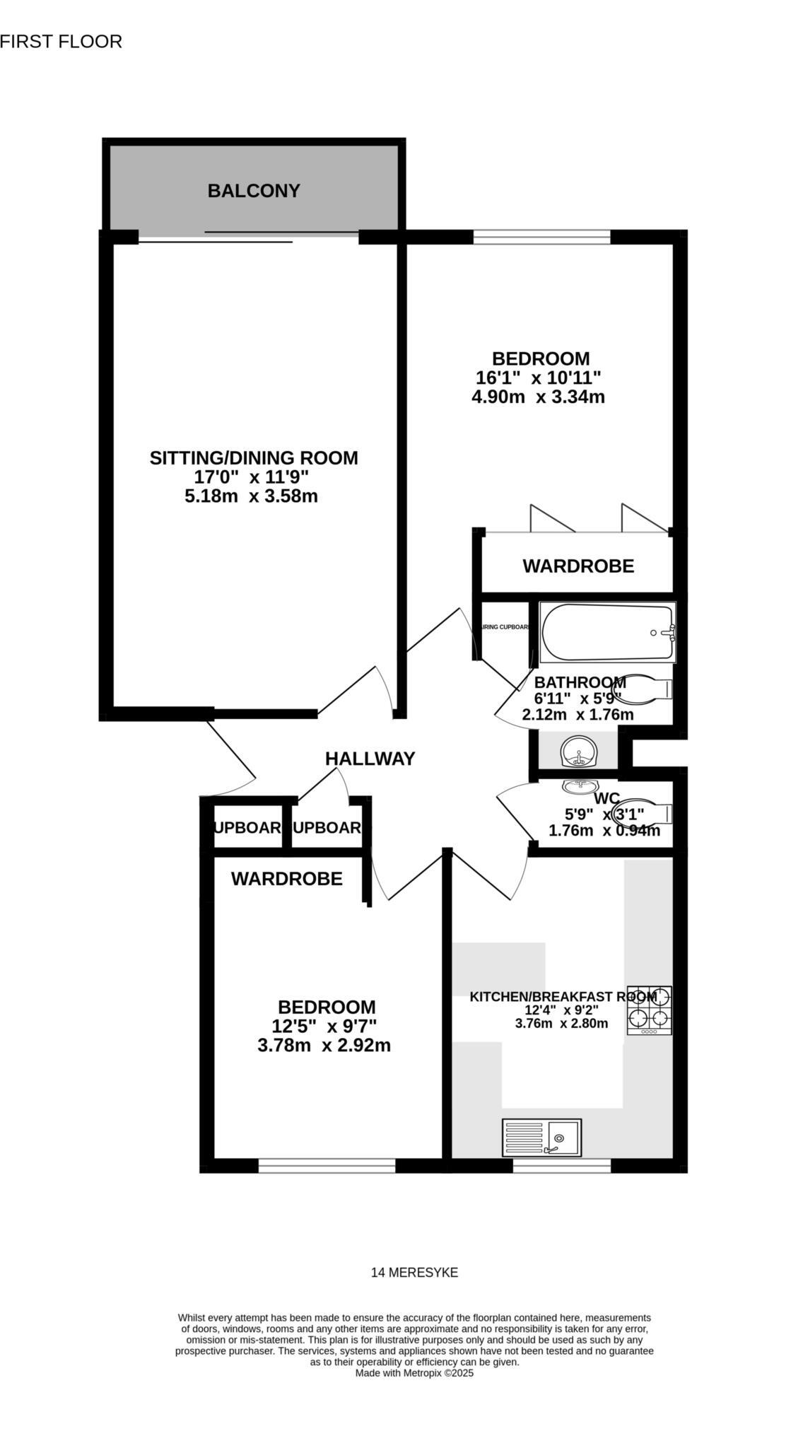
- 2 double bedrooms and 2 bathrooms
- Large sitting/dining room with views over communal gardens and balcony
- Contemporary kitchen with integrated Bosch appliances
- Garage included, as well as additional storage space
- Leasehold with 954 years remaining and low service charges
**Potential Considerations:**
- Moderate council tax
- Average mobile signal
- Cavity walls may require insulation for improved energy efficiency
This beautifully presented first-floor flat offers a fantastic lifestyle opportunity at an attractive price of £259,950. With over 2,400 square feet of living space, it boasts a spacious sitting/dining room that opens onto a private balcony overlooking well-maintained communal gardens, perfect for enjoying your mornings. The modern kitchen is designed for both functionality and style, featuring new Bosch appliances and ample storage.
Located within minutes of Exmouth's three miles of golden sands, you’ll have access to numerous outdoor activities, shopping, dining, and schools, making it ideal for families or first-time buyers. The community is known for its low crime rates and affluent setting, ensuring a secure and inviting atmosphere. Though it offers a great living space, potential buyers should factor in that some updates could enhance energy efficiency.
Don’t miss out on this opportunity to enjoy a lovely home with impressive space and a prime location. This property is a rare find in a desirable part of Exmouth, perfect for those looking to settle down or invest. Schedule a viewing today!
2 bedroom flat for sale in Cranford Avenue, Exmouth, EX8 2HP, EX8 — £249,950 • 2 bed • 1 bath • 735 ft²
2 bedroom flat for sale in Aldborough Court, Douglas Avenue, Exmouth, EX8 — £229,950 • 2 bed • 1 bath • 798 ft²
2 bedroom flat for sale in Douglas Avenue, Exmouth, EX8 2HJ, EX8 — £315,000 • 2 bed • 1 bath • 809 ft²
2 bedroom flat for sale in Cranford Avenue, Exmouth, EX8 — £235,000 • 2 bed • 1 bath • 743 ft²
2 bedroom flat for sale in Cranford Avenue, Exmouth, Devon, EX8 — £250,000 • 2 bed • 2 bath • 744 ft²
2 bedroom apartment for sale in Cyprus Road, Exmouth, EX8 — £235,000 • 2 bed • 1 bath • 831 ft²










































