**Standout Features:**
- Prime Little Venice location
- Charming private garden
- Beautifully presented interiors
- Share of freehold
- Two spacious bedrooms, two modern bathrooms
- Close to boutique amenities and transport links
**Notable Concerns:**
- 81 years remaining on lease (urgent renewal needed)
- High crime rate in the area
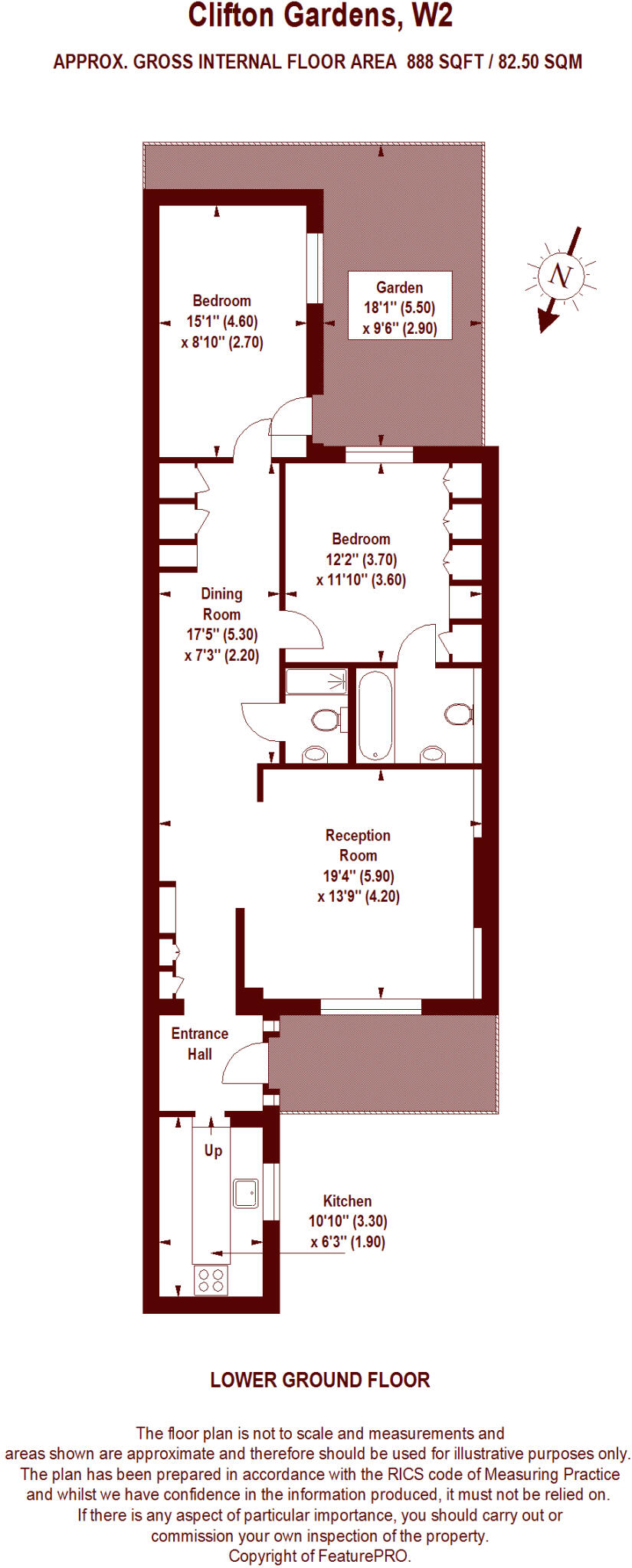
Discover comfort and elegance in this beautifully presented two-bedroom garden maisonette, perfectly situated in the prestigious Little Venice. With an inviting layout, enjoy a bright and spacious reception room featuring a fireplace and built-in bookshelves, alongside a modern separate kitchen. The apartment boasts a generous master bedroom with en suite, a second double bedroom, and a contemporary family bathroom. Step outside to a delightful private garden, ideal for relaxing or entertaining.
Living in Clifton Gardens means having access to eclectic dining, boutique shops, and the picturesque towpaths of the Grand Union Canal, all within a short stroll. While the area’s vibrant lifestyle and excellent mobile connectivity are appealing, the property does come with potential downsides—most notably, the lease offers only 81 years left and must be renewed promptly to secure long-term ownership. Perfect for families and investors alike, this apartment combines luxury with urban convenience—don’t miss the chance to make this Little Venice gem your own!
2 bedroom flat for sale in Clifton Gardens,
Maida Vale, W9 — £900,000 • 2 bed • 1 bath • 736 ft²
3 bedroom flat for sale in Clarendon Gardens,
Little Venice, W9 — £1,300,000 • 3 bed • 2 bath • 1203 ft²
3 bedroom apartment for sale in Clifton Gardens, Little Venice, W9 — £2,600,000 • 3 bed • 3 bath • 1667 ft²
2 bedroom flat for sale in Warrington Crescent, London, W9 — £2,000,000 • 2 bed • 1 bath • 1004 ft²
1 bedroom apartment for sale in Northwick Terrace, Little Venice, NW8 — £575,000 • 1 bed • 1 bath • 583 ft²
2 bedroom apartment for sale in Clifton Gardens, Little Venice W9 — £849,950 • 2 bed • 1 bath • 809 ft²










































