Prime redevelopment site with approved plans for six modern apartments and parking.
Planning permission granted for six apartments (ref 23/02377/FUL)
Freehold plot with permission to demolish existing bungalow
Large plot with parking including garage and potential private outdoor space
EPC rating D — existing building is energy inefficient
Property dated (built 1950–66); assumed solid brick walls without insulation
Area classified as relatively deprived; consider local market effects
Council tax above average; factor into running costs and yields
Good local transport links and several highly rated nearby schools
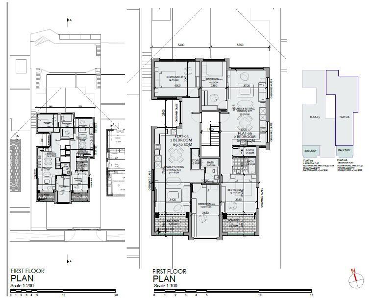
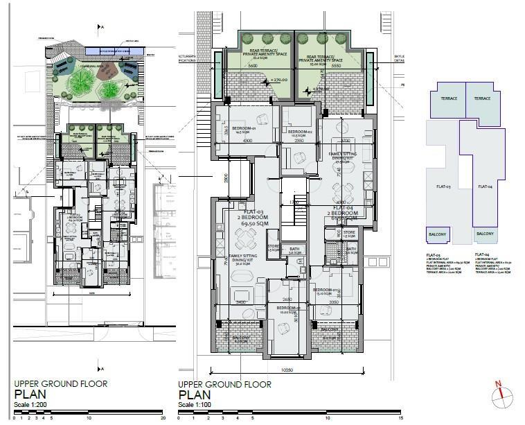
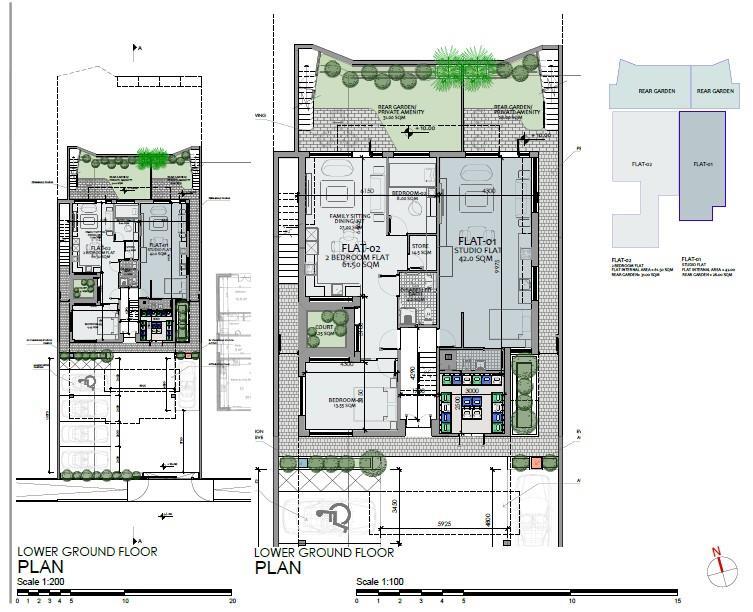
This detached bungalow on Watling Street is being offered as a clear development opportunity with planning permission granted (ref 23/02377/FUL) to demolish the existing house and build six new apartments. The site occupies a large plot in a well-connected part of Bexleyheath, with good transport links, local shops and several highly rated schools nearby — practical advantages for future residents or lettings.
The granted permission and freehold tenure remove a common early-stage hurdle for developers or investors: demolition and redevelopment are already approved. Proposed plans show modern apartment accommodation with balconies and parking provision; the plot size supports circulation and private outdoor space for some units. On completion the scheme would bolster local housing supply in a busy suburban location.
Buyers should note the material negatives plainly: the existing bungalow is dated (circa 1950–66) with assumed solid brick walls and no built-in insulation, and the current building has an EPC rating of D. The local area scores as relatively deprived and council tax levels are above average, which may affect yields and sales values. These factors should be included in feasibility and refurbishment costings.
In short, this property suits a developer or investor prepared to progress the approved scheme or adapt it further. The main attractions are the ready planning permission, freehold plot and convenient location; the main challenges are construction costs to modern standards, energy-efficiency upgrades, and local market conditions.
Land for sale in Bexley Road, Erith, DA8 — £1,200,000 • 7 bed • 3 bath
Land for sale in The Great Harry, Parsonage Manorway, Belvedere, Kent, DA17 6LY, DA17 — £2,250,000 • 1 bed • 1 bath
3 bedroom detached bungalow for sale in Court Road, Orpington, Kent, BR6 9DF, BR6 — £750,000 • 3 bed • 1 bath • 1429 ft²
5 bedroom detached house for sale in Parkhill Road, Bexley, DA5 — £950,000 • 5 bed • 3 bath
4 bedroom detached house for sale in Court Road, Kent, BR6 — £750,000 • 4 bed • 2 bath • 1429 ft²
Plot for sale in Slade Green Road, Erith, DA8 — £2,750,000 • 1 bed • 1 bath






























