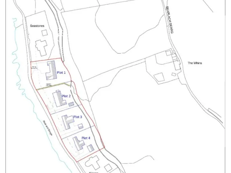
**Standout Features:**
- Three fully serviced building plots for sale.
- Each plot measures approximately 35m wide x 45m deep.
- Breathtaking panoramic views over the Firth of Clyde.
- Approved outline planning permission; zoned in a General Urban Area.
- No conservation designations, allowing flexible design options.
- Access to electricity, water, and BT; private drainage system required.
- Located in the picturesque village of Lochranza, known for its scenic charm.
**Summary:**
Seize a rare opportunity to own one of three expansive building plots in the idyllic village of Lochranza, Isle of Arran. Each plot measures a generous 35m wide by 45m deep, offering ample space to create the coastal home of your dreams, complete with stunning sea views and beautiful surroundings. The sites come with approved outline planning permission, allowing buyers the freedom to design bespoke residences that blend modern styles with the charm of the area, all without the constraints of conservation designations.
Nestled in the breathtaking North Arran National Scenic Area, residents will enjoy direct access to nature, as well as proximity to local amenities, including a community centre and renowned dining options like the ‘Stags’ restaurant. While off-street parking and mains services are included, buyers should note the requirement for a private drainage system—ideal for those looking to embrace a tranquil lifestyle or set up a charming holiday retreat. Act fast—this exceptional location promises future potential and envious coastal living that won't last long in the market!
Plot for sale in South Newton, Lochranza, Isle of Arran, North Ayrshire, KA27 8JF, KA27 — £200,000 • 1 bed • 1 bath • 16953 ft²
Plot for sale in South Newton, Lochranza, Isle of Arran, North Ayrshire, KA27 — £200,000 • 1 bed • 1 bath
Plot for sale in Ballarie Plot, Lochranza, Isle Of Arran, KA27 — £95,000 • 1 bed • 1 bath • 6850 ft²
Plot for sale in Exceptional Sea Front Building Plot, Corrie, Isle of Arran, KA27 — £175,000 • 1 bed • 1 bath
Plot for sale in Plots At Glenreasdale, Tarbert, Argyll and Bute, PA29 — £65,000 • 1 bed • 1 bath
Plot for sale in Plot B, Land At Kilchamaig Gate, Whitehouse, Tarbert, PA29 — £55,000 • 1 bed • 1 bath


























































































































