**Standout Features:**
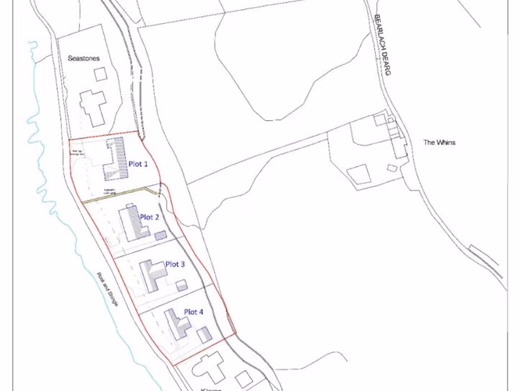
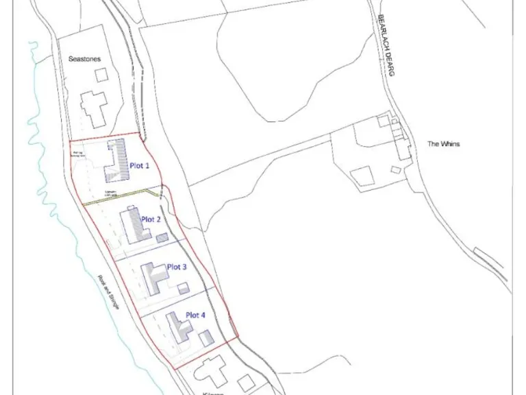
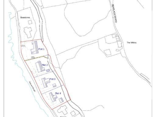
- Three fully serviced building plots for sale
- Each plot measures approximately 35m wide x 45m deep
- Breathtaking panoramic views over the Firth of Clyde
- Approved outline planning permission for residential development
- Flexible design options with no conservation designations
- Mains access to electricity, water, and BT; private drainage required
- Nurturing community with local amenities like a post office and dining options
**Summary:**
Embrace the opportunity to design your dream home in one of Scotland's most scenic locales with these three expansive building plots in picturesque Lochranza, Isle of Arran. Each plot offers ample space, roughly 35m wide x 45m deep, perfect for creating a substantial family residence, complete with gardens and off-street parking. Enjoy spectacular views of the Firth of Clyde and an enviable coastal lifestyle amidst green rolling hills and charming cliffs.
Zoned for flexible design without conservation limitations, you have the freedom to craft your bespoke retreat to match your vision. Approved outline planning permission is already in place, making it a hassle-free venture for builders and investors alike. While mains services are available, a private drainage solution is required, offering a unique opportunity for collaboration among neighbors.
With the local community offering active amenities such as a post office, friendly eateries, and nearby recreational spots, this tranquil setting is ideal for those seeking a family home or a serene second property. Don't miss this rare chance; such prime plots in Lochranza won't be available for long!
Plot for sale in South Newton, Lochranza, Isle of Arran, North Ayrshire, KA27 8JF, KA27 — £200,000 • 1 bed • 1 bath • 16953 ft²
Plot for sale in South Newton, Lochranza, Isle of Arran, North Ayrshire, KA27 — £200,000 • 1 bed • 1 bath
Plot for sale in Ballarie Plot, Lochranza, Isle Of Arran, KA27 — £95,000 • 1 bed • 1 bath • 6850 ft²
Plot for sale in Exceptional Sea Front Building Plot, Corrie, Isle of Arran, KA27 — £175,000 • 1 bed • 1 bath
Plot for sale in Plots At Glenreasdale, Tarbert, Argyll and Bute, PA29 — £65,000 • 1 bed • 1 bath
Plot for sale in Plot B, Land At Kilchamaig Gate, Whitehouse, Tarbert, PA29 — £55,000 • 1 bed • 1 bath


























































































































