**Standout Features:**
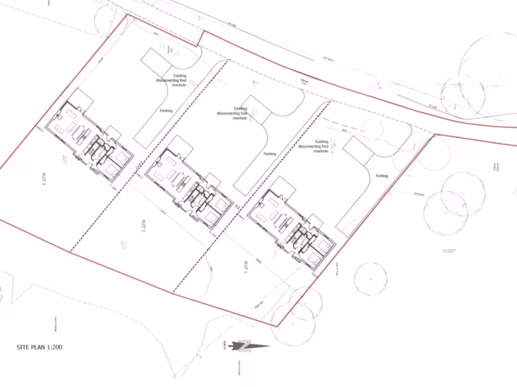
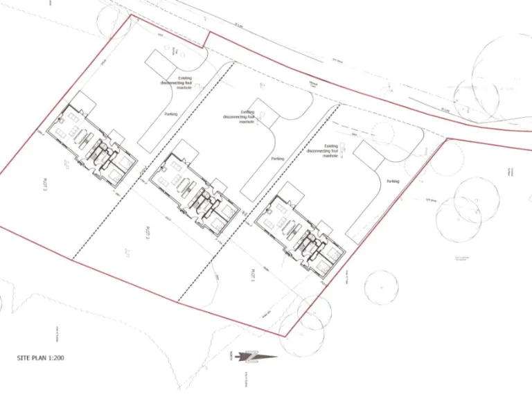
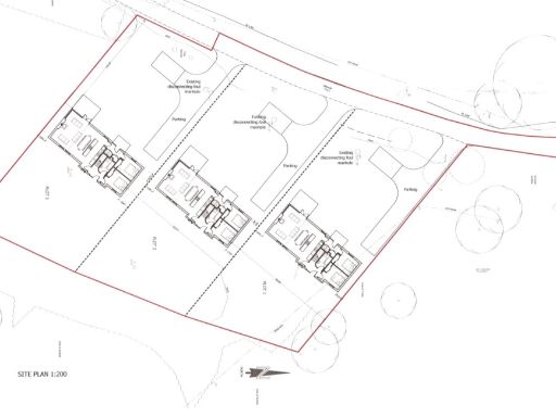
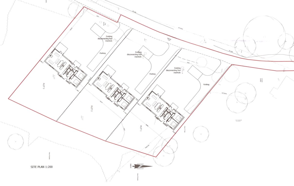
- Full Planning Permission for a single dwelling on each plot (granted May 30, 2014)
- Elevated location with stunning views over West Loch
- Each plot approximately 0.22 Acres (0.08 Hectares)
- Installed Bio-disc septic tank approved for use
- Electricity connection fees paid; water services available at the roadside
- Rural, tranquil setting near the village of Whitehouse
- Potential for additional neighboring plot (by negotiation)
**Summary:**
Discover a unique opportunity at The Plots at Glenreasdale, where two generous building plots await your vision. Nestled on the edge of the serene village of Whitehouse, these plots each boast approximately 0.22 acres and present breathtaking far-reaching views over West Loch, making them ideal for your dream home or investment. Full planning permission has been granted for a single dwelling, backed by all necessary services, including an approved Bio-disc septic tank and paid electricity connections.
Embrace the timeless beauty of the Kintyre peninsula, a region rich with outdoor pursuits such as fishing, walking, and sailing. Experience the tranquility of rural living while being just a short drive from the charming coastal village of Tarbert, known for its shops, restaurants, and a vibrant local community. This exclusive offering combines scenic beauty with practical amenities—don't miss the chance to secure a plot in this peaceful haven. Act now, as opportunities like this are rare in such an idyllic location!
Plot for sale in Land At Kilchamaig Gate, Whitehouse, Tarbert, PA29 — £55,000 • 1 bed • 1 bath
Plot for sale in Plot B, Land At Kilchamaig Gate, Whitehouse, Tarbert, PA29 — £55,000 • 1 bed • 1 bath
Plot for sale in Land At Achnaclaod, Whitehouse, Tarbert, Argyll and Bute, PA29 — £65,000 • 1 bed • 1 bath
Plot for sale in Plot Adjacent to Achnacolain, Rhu, Tarbert, PA29 — £135,000 • 1 bed • 1 bath
Land for sale in Land North East Of Smithy Croft, Tarbert, Argyll and Bute, PA29 — £35,000 • 1 bed • 1 bath • 8712 ft²
Plot for sale in Plot At Barfad Brae, Tarbert, Argyll and Bute, PA29 — £170,000 • 1 bed • 1 bath


























