EH15 1DH - 2 bedroom flat for sale in 16/3 Fishwives Causeway, Portobe…

View on Property Piper

2 bedroom flat for sale in 16/3 Fishwives Causeway, Portobello, Edinburgh, EH15 1DH, EH15

Summary - FLAT 3, 16, FISHWIVES CAUSEWAY, EDINBURGH EH15 1DH

2 bed 2 bath Flat

**Key Features:**
- Modern two-bedroom first-floor apartment
- Located in the highly desirable Portobello district
- Principal bedroom with ensuite and Juliet balcony
- Excellent public transport links and local amenities
- Newly renovated, move-in ready condition
- Communal garden space
- Chain-free and suitable for various buyers (first-timers, families, investors)
- Service charge of £960/year (below average)
- Energy Rating B, Council Tax Band D

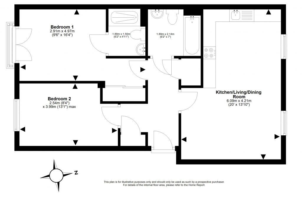
Step into this charming two-bedroom first-floor flat, ideally situated in the vibrant Portobello district of Edinburgh. Newly renovated and tastefully decorated, this apartment is in move-in condition, featuring a spacious open-plan kitchen/living/dining area bathed in natural light and perfect for modern living. The principal bedroom is a delightful retreat, complete with an ensuite shower and a south-facing Juliet balcony for your morning coffee or evening relaxation. The second bedroom offers flexibility, serving as a guest room or home office.

Enjoy the convenience of excellent local amenities, including stylish bars, cafes, and the beautiful Portobello Beach just a short stroll away. With easy public transport access, this property is perfect for commuters or those who enjoy urban living. Ideal for first-time buyers, families, or savvy investors, early viewing is highly recommended—properties like this don't last long! Enjoy communal garden space and guaranteed comfort in a well-maintained setting. Act fast to secure this unique opportunity!

Property Details

Brochure Descriptions

Image Descriptions

Floorplan Description

Rooms

Textual Property Features

Detected Visual Features

Nearest Bars And Restaurants

,,,,}

Nearest General Shops

,,}

Nearest Grocery shops

,,}

Nearest Supermarkets

,,}

Nearest Religious buildings

,,}

Nearest Medical buildings

,,,}

Nearest Airports

}

Nearest Leisure Facilities

,,,,}

Nearest Tourist attractions

,,}

Nearest Train stations

,,,,}

Nearest Bus stations and stops

,,,,}

Nearest Hotels

,,}

Tags

Local Market Stats

AirBnB Data

Similar Properties

Meta

High Res Images

Compatible Images

Low res Images

Thumbnails

Raw Images

High Res Floorplan Images

Compatible Floorplan Images

Low res Floorplan Images

FloorplanImages Thumbnail

Raw Floorplan Images