**Standout Features:**
- Fully serviced freehold parcel of land with planning permission for a public house and convenience store.
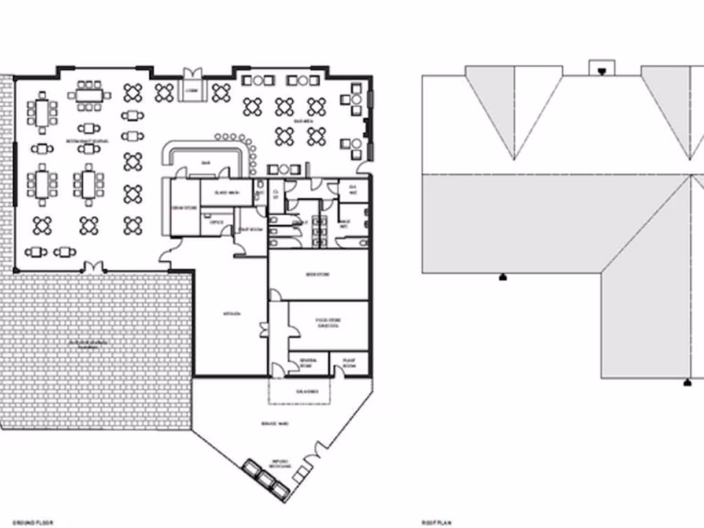
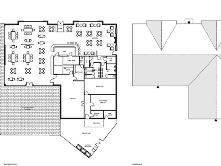
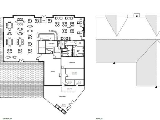
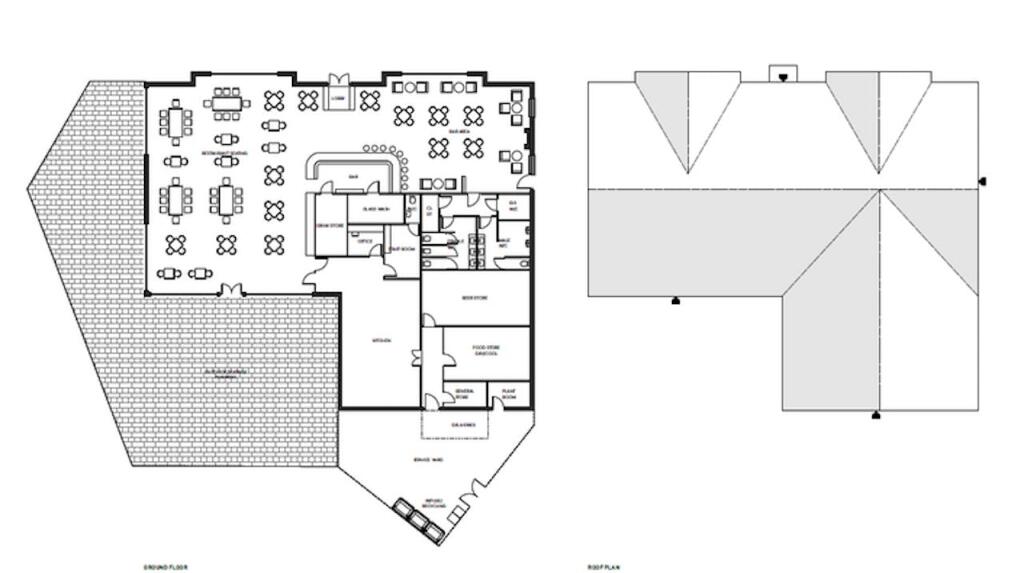
- Site area of 0.83 acres, accommodating a 5,651 sq ft public house and a 4,305 sq ft convenience store.
- Part of the Kilnwood Vale urban extension, designed for a vibrant community of 2,750 homes, with existing suburban infrastructure.
- Excellent connectivity, located near major roads and amenities including retail units and schools.
- High potential for development in a rapidly growing neighborhood.
**Concerns:**
- Formerly a landfill site, but has undergone remediation with warranties available; buyers should confirm development suitability.
- Freehold offers for the public house, and leasehold offers for the convenience store.
This remarkable opportunity in Kilnwood Vale, Horsham, presents a dual-use land plot perfectly situated for substantial development. Ideal for investors looking to capitalize on the growing community dynamics, which already include 2,750 homes, a primary school, and various retail units. This well-resourced land comes with planning permissions already in place for both a public house and a convenience store, ensuring a swift transition from concept to reality.
Despite its former life as a landfill, comprehensive remediation has been conducted, making the site ready for development. Buyers can take advantage of the appealing suburban landscape and low crime rate, while the proximity to Crawley and Horsham opens up additional conveniences.
This is a unique chance to create significant commercial spaces in an area designed for modern living, showcasing a perfect blend of rural charm and urban accessibility. Don’t miss out on this limited opportunity to invest in a burgeoning neighborhood that promises long-term value.
Land for sale in Crawley Down, Crawley, RH10 — £500,000 • 1 bed • 1 bath
Land for sale in Brighton Road, Lower Beeding, RH13 — £350,000 • 1 bed • 1 bath
Plot for sale in Station Road, Horley, Surrey, RH6 — £1,850,000 • 1 bed • 1 bath • 21183 ft²
Land for sale in Maplehurst, Nr. Horsham, RH13 — £950,000 • 1 bed • 1 bath • 1277 ft²
Land for sale in The Bluebird Estate, Brighton Road, Bolney RH17 — £2,000,000 • 1 bed • 1 bath
Land for sale in Turners Mill Road, Haywards Heath, West Sussex, RH16 — £2,650,000 • 1 bed • 1 bath • 4915 ft²


















































