Rare central development plot with approved plans for 16 homes near station and schools.
- Planning permission granted for 14 houses and 2 maisonettes (DM/23/3105)
- Site area approx. 1.33 acres (very large plot)
- Includes 4 on‑site affordable units; commuted sum £101,000 agreed
- Section 106 contribution agreed: £288,783
- Short walk to Haywards Heath station, shops and schools
- Brownfield site largely scrubland; surveys available for ground works
- Flood Zone 1 (very low flood risk); excellent mobile and broadband
- Ownership recorded as shared ownership; check title/tenure in data room
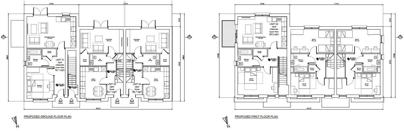
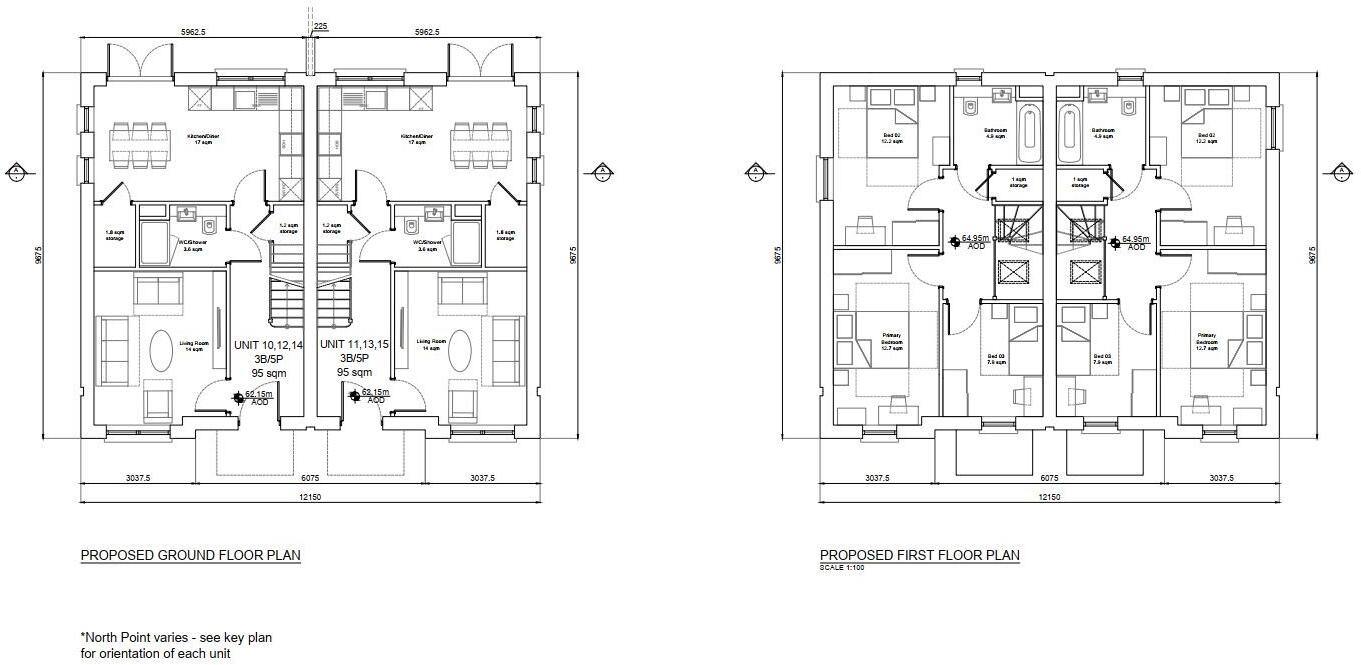
A rare consented development site in central Haywards Heath, approved for 14 houses and 2 maisonettes under DM/23/3105. The 1.33 acre brownfield plot sits immediately north of Haywards Heath College and is a short walk from the station, shops and schools — a strong location for private sales or a small local builder looking for quick delivery.
Planning consent includes a mix of detached and semi‑detached houses plus four on‑site affordable units (2 flats and 2 x 2‑bed terraced houses). A full planning pack and technical reports (drainage, ecology, ground, trees, demolition) are available in the data room to support build-out. The site is in Flood Zone 1 and benefits from excellent mobile and broadband connectivity.
There are clear developer obligations to factor in: an agreed Section 106 payment of £288,783 and a commuted sum of £101,000 in lieu of a fifth off‑site affordable unit. Mid Sussex currently does not charge CIL and the site is not elected for VAT, which may simplify viability calculations.
This is a straightforward acquisition for an experienced developer or investor who wants a consented, central Haywards Heath scheme with fast access to London and Gatwick. Prospective purchasers should review title/tenure details and the surveys in the data room to confirm costs associated with site preparation and construction.
Land for sale in Linden House Site, Southdowns Park, Haywards Heath, West Sussex, RH16 — £1,500,000 • 1 bed • 1 bath • 16000 ft²
Property for sale in Land At Rear Of Dormans Station, Station Road, Dormansland, Lingfield, Surrey, RH7 — £750,000 • 1 bed • 1 bath
Land for sale in Burwash Road, Heathfield, East Sussex, TN21 — £500,000 • 1 bed • 1 bath • 4000 ft²
Land for sale in Chiddingly Road, Horam, Heathfield, TN21 — £550,000 • 1 bed • 1 bath • 4579 ft²
Plot for sale in Hurst Road, Hassocks, BN6 — £895,000 • 5 bed • 5 bath • 5140 ft²
Residential development for sale in Land At Hammonds Ridge, Burgess Hill, West Sussex RH15 9QW, RH15 — £650,000 • 1 bed • 1 bath • 21780 ft²






































