High‑yield freehold asset with clear rental improvement potential.
Total income c. £55,200 pa with immediate cashflow
One‑bed flat let below market; uplift ~£2,400 pa realistic
Two commercial units: optician and hair/beauty studio
Commercial leases expire 2027; medium‑term reletting risk
Freehold building with off‑street parking and decent plot
EPC rating D; solid brick walls likely without insulation
Building needs some modernisation and roof repairs
Local area: higher crime and socioeconomic deprivation
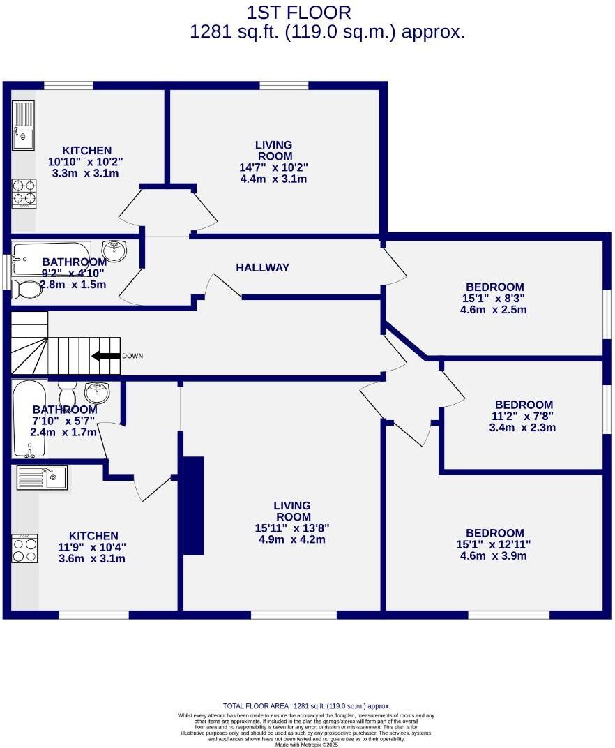
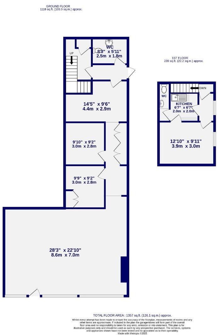
A substantial freehold mixed‑use building on busy York Road, producing a current income of c. £55,200 per annum. The ground floor houses two long‑standing commercial tenants — an optician and a hair/beauty studio — while the first floor comprises two self‑contained residential flats. Ownership offers immediate cashflow with scope for modest rental uplift and asset management.
There is clear uplift potential: the one‑bed flat is let below local market rent and could realistically increase by about £2,400 per year. Both commercial leases run to 2027, so there is medium‑term reletting exposure. The property has been maintained with regular touch‑ups, but parts of the building will benefit from targeted modernisation and roof repairs to secure longer‑term value.
Practical positives include freehold tenure, off‑street parking, decent plot size and double glazing. Construction is solid brick Victorian fabric, but insulation is assumed absent in the walls and the EPC is D. Local area factors — higher than average crime and recognised area deprivation — are likely to influence tenant mix, rental levels and management requirements.
This is an investor‑focused opportunity for those seeking a high‑yielding, low‑management income stream with straightforward enhancement potential through rent reviews and light refurbishment. Full tenant and lease details are available for due diligence.
High street retail property for sale in York Road, Acomb, York, YO24 — £650,000 • 3 bed • 2 bath • 1954 ft²
Commercial property for sale in Burton Stone Lane, York, YO30 — £265,900 • 3 bed • 1 bath • 1184 ft²
2 bedroom end of terrace house for sale in Beckfield Lane, York, YO26 — £350,000 • 2 bed • 1 bath • 1480 ft²
4 bedroom property for sale in Market Street, Pocklington, York, YO42 — £400,000 • 4 bed • 2 bath • 2488 ft²
Detached house for sale in Haxby Road, York, YO31 — £2,250,000 • 1 bed • 1 bath • 15206 ft²
Office for sale in Skipton Road, Harrogate, HG1 — £395,000 • 1 bed • 1 bath • 2719 ft²






















































