**Standout Features:**
- Mixed-use freehold property with two commercial units and two residential apartments
- Strong income potential: Total annual income approx. £53,000 with room for rental uplift
- Located in a prime position along York Road in Acomb, a bustling area
- Newly renovated with modern touches throughout
- Off-street parking with an attractive garden space
**Concerns:**
- Lease on commercial properties nearing expiration, potentially complicating financing
- Above-average area crime rates could deter some tenants or buyers
This exceptional freehold mixed-use investment in Acomb offers a unique opportunity for investors seeking immediate cash flow and future rental growth. Generating an impressive total income of approximately £53,000 per year, this property includes two well-established commercial units—a long-standing optician and a thriving hair and beauty studio—alongside two self-contained apartments, currently rented below market value, showcasing significant uplift potential.
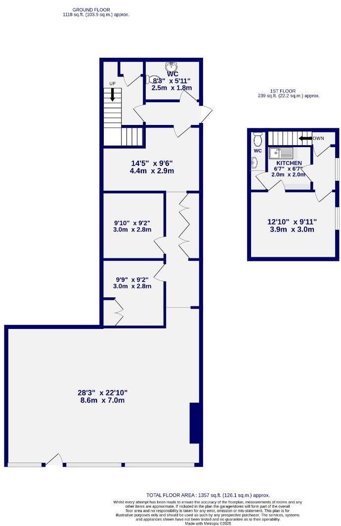
The property, spanning 1,954 sq. ft., has been newly renovated, ensuring contemporary living spaces while providing ample off-street parking for businesses. The presence of a charming garden adds a touch of tranquility amidst the vibrant urban setting. Located in a lively neighborhood with amenities galore, including shops, schools, and eateries, it promises convenience for residents and commercial tenants alike. However, buyers should note the short lease terms on commercial units and the above-average local crime rates, which may require consideration in financial planning. Don’t miss out on this high-yield investment opportunity in a sought-after location—schedule your viewing today!
3 bedroom detached house for sale in York Road, Acomb, York, YO24 — £650,000 • 3 bed • 2 bath • 912 ft²
Commercial property for sale in Burton Stone Lane, York, YO30 — £285,000 • 3 bed • 1 bath • 1184 ft²
Commercial property for sale in Monkgate, City Central, York, YO31 — £1,250,000 • 6 bed • 6 bath • 5058 ft²
4 bedroom property for sale in Market Street, Pocklington, York, YO42 — £400,000 • 4 bed • 2 bath • 2488 ft²
2 bedroom end of terrace house for sale in Haxby Road, York, YO31 — £375,000 • 2 bed • 1 bath • 1552 ft²
6 bedroom detached house for sale in Monkgate, York, YO31 — £1,250,000 • 6 bed • 6 bath • 5058 ft²


















































