LN5 8ND - 3 bed bay fronted city home in St Catherines Grove, LN5 8ND

View on Property Piper

3 bedroom terraced house for sale in St. Catherines Grove, Lincoln, LN5

Summary - 164 ST CATHERINES GROVE LINCOLN LN5 8ND

3 bed 1 bath Terraced

Chain-free starter property near the Cathedral with garden, utility room and scope to modernise.
Chain free freehold terrace close to Lincoln city centre
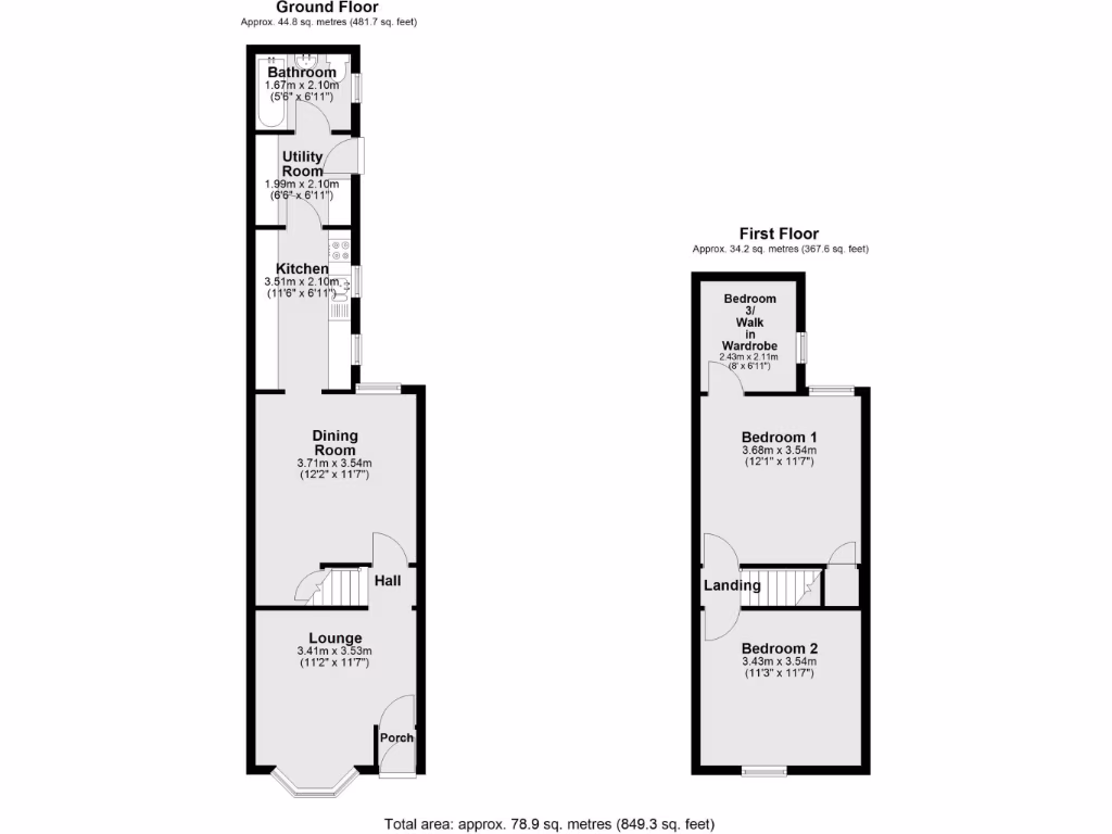
A practical starter house in St. Catherines, offered chain free and within easy reach of Lincoln’s city centre. The home keeps period charm with a bay-front lounge and straightforward, adaptable rooms across two floors. Two double bedrooms plus a third room accessed from bedroom one provide flexible sleeping or dressing options.

Downstairs layout includes a separate dining room, a galley-style kitchen and a useful utility room with direct garden access. The enclosed rear garden is low maintenance with a patio and gravel area – manageable for first-time owners who want an outdoor space without heavy upkeep.

The property is freehold, has fast broadband and excellent mobile signal, and sits in a central neighbourhood with local shops and schools nearby. Important to note: the EPC is rated E, the area records higher crime and local deprivation indices, and some internal updating is likely required to reach modern standards.

This house is best suited to first-time buyers or investors comfortable with modest renovation and cosmetic improvement. The combination of chain-free sale, central location and garden makes it a pragmatic, affordable entry into the Lincoln market, with scope to add value through modernisation.

Property Details

Brochure Descriptions

Image Descriptions

Rooms

Textual Property Features

Target Audience

AI Tags

Detected Visual Features

Nearby Schools

Nearest Bars And Restaurants

,,,,}

Nearest General Shops

,,}

Nearest Grocery shops

,,}

Nearest Supermarkets

,,}

Nearest Religious buildings

,,}

Nearest Medical buildings

,,,}

Nearest Leisure Facilities

,,,,}

Nearest Tourist attractions

,,}

Nearest Train stations

,,,,}

Nearest Bus stations and stops

,,,,}

Nearest Hotels

,,}

Tags

Local Market Stats

AirBnB Data

Similar Properties

Meta

High Res Images

Compatible Images

Low res Images

Thumbnails

Raw Images

High Res Floorplan Images

Compatible Floorplan Images

Low res Floorplan Images

FloorplanImages Thumbnail

Raw Floorplan Images