Three beds, period features and strong rental potential near Lincoln Cathedral.
Chain-free freehold terrace
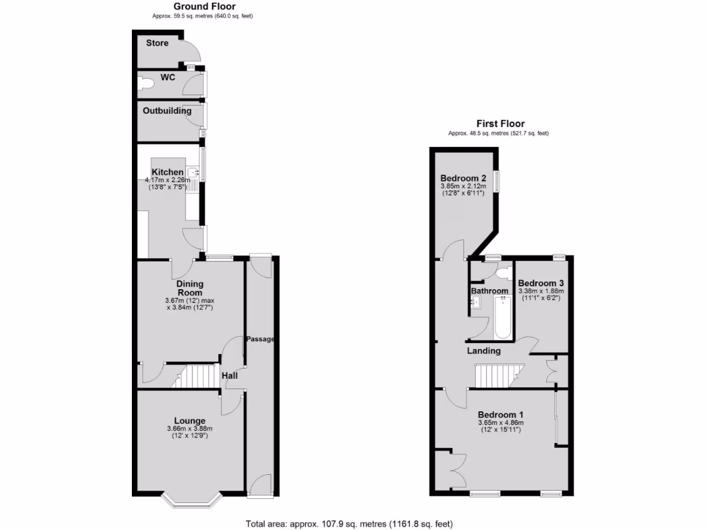
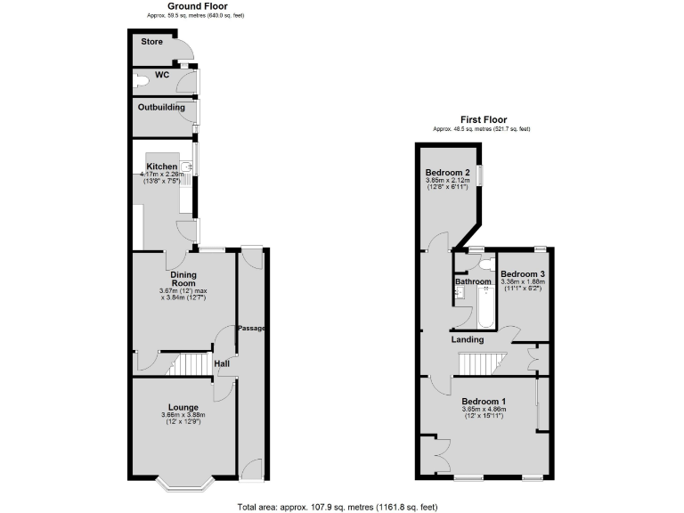
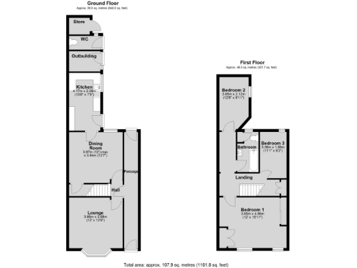
A bay-fronted, three-bedroom terraced house in central Lincoln offered chain-free and freehold. The layout includes separate lounge and dining rooms, a mid-length kitchen and a first-floor bathroom — spacious for a period terrace and well suited to a first-time buyer or landlord prepared to modernise.
The house retains period character such as a bay window, exposed boards and brick fireplaces and benefits from a private side passage and an enclosed paved rear yard with three useful brick outbuildings. EPC rating D and very low council tax band A reduce running costs.
The property is dated and will need cosmetic updating throughout; the kitchen and bathroom are functional but older, and decorative modernisation is required to unlock full value. The location is central to Lincoln’s amenities, close to the Cathedral, university and public transport, which supports either owner-occupation or buy-to-let potential.
Buyers should note the wider area shows higher deprivation and local crime is above average; cost-effective safety and security improvements may be advisable. Viewing is recommended to assess room sizes and renovation scope in person.
3 bedroom terraced house for sale in Hope Street, Lincoln, LN5 — £120,000 • 3 bed • 1 bath • 729 ft²
3 bedroom terraced house for sale in Baggholme Road, Lincoln, LN2 — £120,000 • 3 bed • 1 bath • 819 ft²
3 bedroom terraced house for sale in Olive Street, Lincoln, LN1 — £210,000 • 3 bed • 1 bath • 696 ft²
3 bedroom terraced house for sale in Chelmsford Street, Lincoln, LN5 — £120,000 • 3 bed • 1 bath • 708 ft²
2 bedroom terraced house for sale in Gray Street, Lincoln, LN1 — £150,000 • 2 bed • 1 bath • 864 ft²
3 bedroom terraced house for sale in Walmer Street, Lincoln, LN2 — £105,000 • 3 bed • 2 bath • 819 ft²














































