Ideal central starter home with garden and parking near city amenities.
Freehold Victorian end-terrace, no onward chain
A traditional late-Victorian end-terrace offering flexible 2/3 bedroom accommodation close to Lincoln city centre. The house is freehold, sold with no onward chain and benefits from permit parking — a practical choice for a first purchase or buy-to-let portfolio.
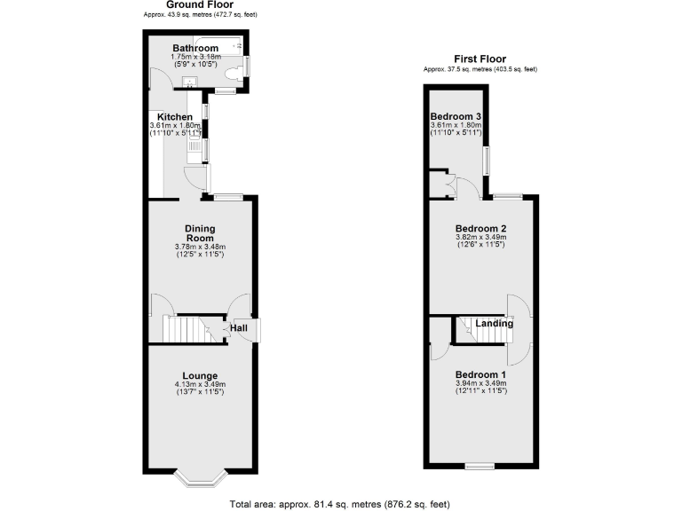
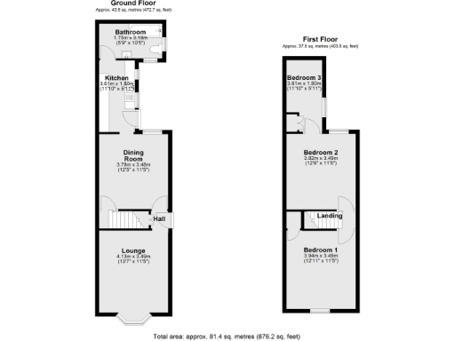
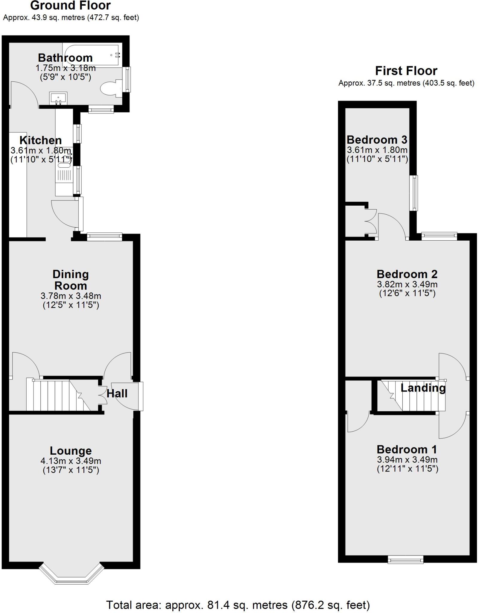
Interior rooms are of typical period proportions, with a bay-fronted lounge, separate dining room and useful outbuilding. The property retains character features such as high ceilings and a decorative fireplace, while the layout includes a third room off bedroom two that works well as a dressing room, occasional bedroom or home office.
The property requires cosmetic updating: the kitchen and some finishes are dated and the rear garden is overgrown and will need clearing or landscaping. Energy rating D and a single bathroom are other practical considerations, but council tax is low (Band A), the plot is enclosed and the overall footprint (circa 876 sq ft) is typical for terraces of this era.
For buyers seeking central convenience and period character with scope to add value, this home presents clear potential. The location near local amenities, schools and the university makes it suitable for first-time buyers, small families or investors prepared to refresh the property.
2 bedroom terraced house for sale in 61 Alexandra Terrace, LN1 — £160,000 • 2 bed • 1 bath • 650 ft²
3 bedroom terraced house for sale in Devon Street, Lincoln, LN2 — £135,000 • 3 bed • 1 bath • 915 ft²
2 bedroom terraced house for sale in Alexandra Terrace, Lincoln, LN1 — £185,000 • 2 bed • 1 bath • 760 ft²
3 bedroom terraced house for sale in Baggholme Road, Lincoln, LN2 — £120,000 • 3 bed • 1 bath • 819 ft²
3 bedroom terraced house for sale in Olive Street, Lincoln, LN1 — £210,000 • 3 bed • 1 bath • 696 ft²
3 bedroom end of terrace house for sale in Kirkby Street, Lincoln, LN5 — £160,000 • 3 bed • 1 bath • 767 ft²


















































































