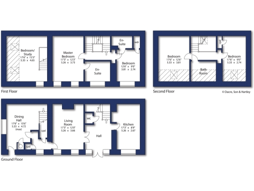
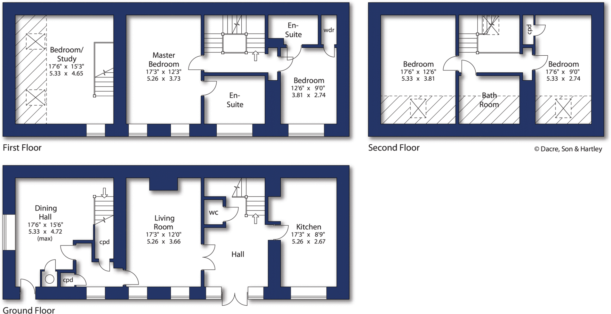
**Standout Features:**
- 4 spacious bedrooms (with option for a fifth) and 3 elegant bathrooms, including 2 en-suites
- High-quality finishes with exposed beams and wooden flooring
- Charming garden with patio area and a double garage
- Located in a peaceful, rural development with stunning countryside views
- Leasehold property with 982 years remaining on the lease
- Low crime area and a community-friendly atmosphere
- Chain-free sale
**Summary:**
Discover exquisite rural living in this substantial 4/5-bedroom end property located on the edge of Lothersdale, perfect for families or professionals seeking tranquility without sacrificing modern comforts. A stunning barn conversion, the home boasts high-quality fixtures, exposed beams, and original stone features throughout. The generous layout includes two en-suites, a family bathroom, and a business office, making it adaptable for various lifestyles.
Step outside to enjoy a delightful garden and patio area—ideal for relaxation or entertaining guests—alongside a double garage offering ample parking and additional storage. Positioned in a rapidly prospering countryside setting, this residence is a rare find for those desiring both space and serenity.
However, please note the property is leasehold, with shared borehole and septic tank systems affecting maintenance. The management charge is below average, making it financially appealing. Act quickly to take advantage of this unique opportunity and envision a future filled with comfort and the beauty of nature in your new home!
4 bedroom detached house for sale in Devonshire House Farm, Lothersdale, North Yorkshire, BD20 — £565,000 • 4 bed • 2 bath • 1082 ft²
5 bedroom detached house for sale in Lothersdale, Near Skipton, North Yorkshire, BD20 — £1,250,000 • 5 bed • 4 bath • 5057 ft²
3 bedroom terraced house for sale in Plot 3, Raygill Farm Barns, Lothersdale, BD20 — £545,000 • 3 bed • 2 bath • 1459 ft²
3 bedroom barn conversion for sale in Haws Barn, Cowling Hill, BD22 — £975,000 • 3 bed • 2 bath • 3384 ft²
Equestrian facility for sale in Skipton Old Road, Colne, Lancashire, BB8 — £680,000 • 3 bed • 3 bath • 1561 ft²
6 bedroom detached house for sale in Lothersdale, North Yorkshire, BD20 — £995,000 • 6 bed • 3 bath • 3972 ft²






























































































