AL3 5JS - 3 bed cannon street victorian home in Cannon Street, AL3 5JS

View on Property Piper

3 bedroom terraced house for sale in Cannon Street, St. Albans, Hertfordshire, AL3

Summary - 38 CANNON STREET ST ALBANS AL3 5JS

3 bed 1 bath Terraced

Compact characterful townhouse with modern kitchen and low‑maintenance garden.
Central conservation area, short walk to city centre and stations
This attractive Victorian terraced house sits in St Albans’ central conservation area, a short walk from the city centre, both stations and highly regarded schools. The property offers two reception rooms and an extended, stylish kitchen/breakfast room that opens to a low‑maintenance rear garden—ideal for alfresco dining and entertaining.

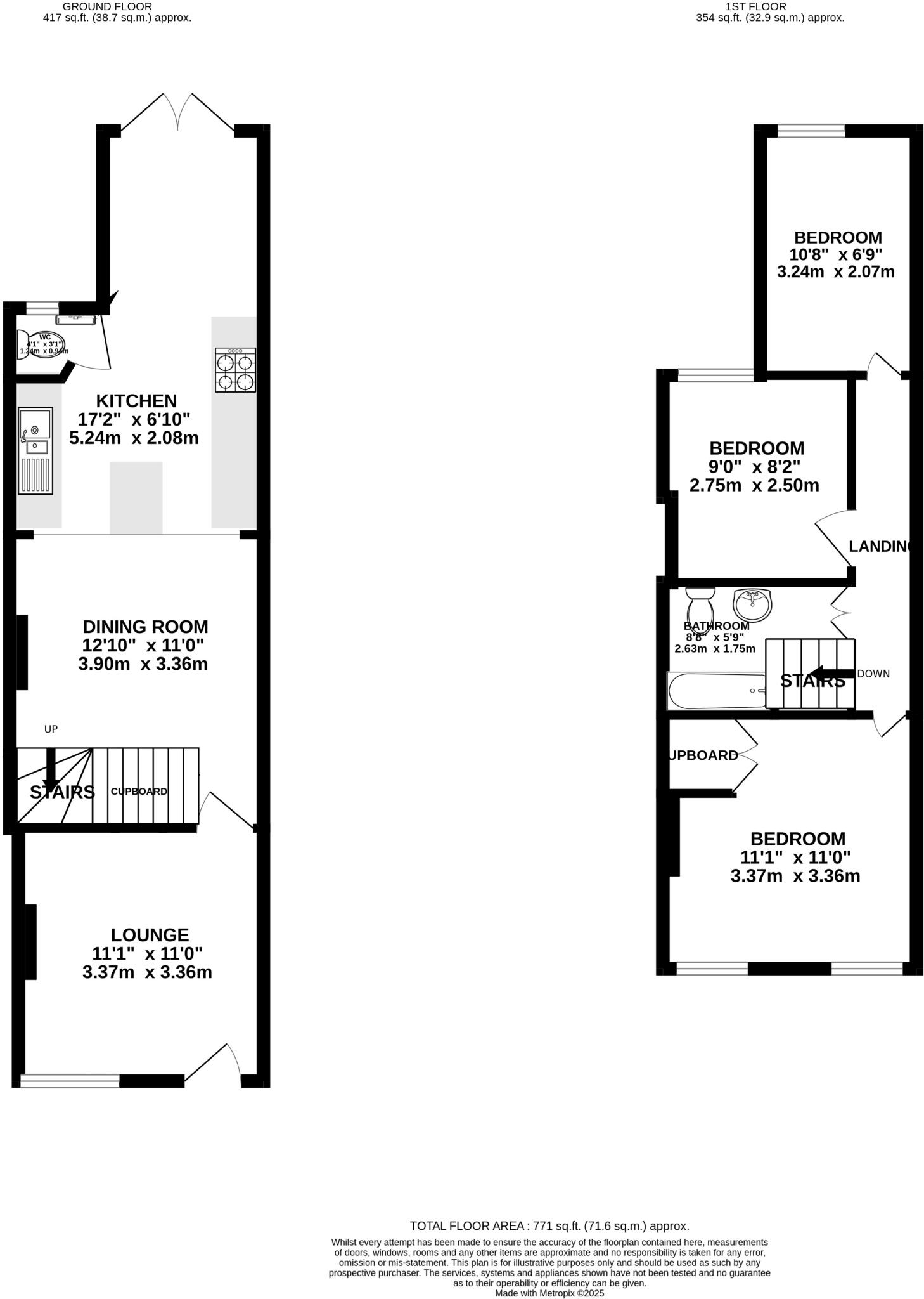
Accommodation is arranged over two floors with three comfortable bedrooms and a family bathroom. The house is compact (around 771 sq ft) and well suited to buyers seeking a characterful, central townhouse rather than a large family footprint. There is scope to increase space by converting the loft subject to the usual planning and party‑wall consents.

Practical details are straightforward: freehold tenure, mains gas central heating with a boiler and radiators, fast broadband and excellent mobile signal. The elevated, townhouse‑style front area is small; the rear garden is low maintenance and paved. From a conservation perspective the property retains period charm (sash‑style windows, brick headers, chimney stacks) which will appeal to buyers who value character.

Notable limitations are clear: internal space is modest, plot and front garden are small, and walls are solid brick (assumed no cavity insulation) which may influence future insulation or energy‑efficiency work. There is a single family bathroom and a ground‑floor cloakroom only. Buyers should allow for possible refurbishment or upgrading for modern living needs and confirm loft conversion feasibility with the local authority.

Property Details

Brochure Descriptions

Image Descriptions

Floorplan Description

Rooms

Textual Property Features

Target Audience

AI Tags

Detected Visual Features

EPC Details

Nearby Schools

Nearest Bars And Restaurants

,,,,}

Nearest General Shops

,,}

Nearest Grocery shops

,,}

Nearest Supermarkets

,,}

Nearest Religious buildings

,,}

Nearest Medical buildings

,,,}

Nearest Airports

,,}

Nearest Leisure Facilities

,,,,}

Nearest Tourist attractions

,,}

Nearest Train stations

,,,,}

Nearest Bus stations and stops

,,,,}

Nearest Hotels

,,}

Tags

Local Market Stats

AirBnB Data

Similar Properties

Meta

High Res Images

Compatible Images

Low res Images

Thumbnails

Raw Images

High Res Floorplan Images

Compatible Floorplan Images

Low res Floorplan Images

FloorplanImages Thumbnail

Raw Floorplan Images