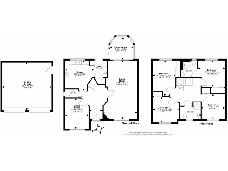
**Standout Features:**
- Modern four-bedroom detached home in Pencaitland, East Lothian
- Spacious living areas with a conservatory and floored attic
- Double garage and private driveway
- Private gardens front and rear, featuring lawn and patio
- Master bedroom with ensuite shower, plus further wet room
- Fully fitted kitchen with dining area, utility room
**Concise Summary:**
Discover your ideal family home in this well-proportioned four-bedroom detached house located in the desirable village of Pencaitland, just a stone's throw from Edinburgh. With an expansive layout, this property boasts a spacious living room that flows into a bright conservatory, perfect for relaxation and family gatherings. The fully equipped kitchen and utility room offer practicality and convenience, while the attached double garage and large private driveway provide ample parking space.
Convenience meets comfort with four generous bedrooms, all featuring built-in storage, including a master suite with a newly renovated ensuite shower room. The additional family wet room ensures that busy mornings are a breeze. Outside, enjoy private gardens designed for both play and relaxation, complemented by a floored attic that could easily be transformed into additional living space or a studio.
Although the property needs some cosmetic updates, its substantial size and prime location present a fantastic opportunity to personalize and create your dream family home. With fast broadband and local amenities just a short walk away, this home offers both comfort and potential. Don’t miss your chance to make it your own!
4 bedroom detached house for sale in 1 Dovecot Way, Pencaitland, East Lothian, EH34 5HA, EH34 — £420,000 • 4 bed • 1 bath • 1765 ft²
4 bedroom detached house for sale in The Green, Pencaitland, Tranent, EH34 — £450,000 • 4 bed • 2 bath • 2142 ft²
4 bedroom detached house for sale in Vinefields, Pencaitland, Tranent, EH34 — £375,000 • 4 bed • 3 bath • 1129 ft²
5 bedroom detached house for sale in 26 Pringles Place, Pencaitland, East Lothian, EH34 5BT, EH34 — £475,000 • 5 bed • 3 bath • 2088 ft²
4 bedroom detached house for sale in 7 Smith Wynd, Tranent, EH33 2FG, EH33 — £345,000 • 4 bed • 2 bath • 1342 ft²
4 bedroom detached house for sale in 22 Toll House Grove, TRANENT, EH33 2QR, EH33 — £285,000 • 4 bed • 2 bath • 1287 ft²














































































































