Well-located family house with parking and garden, ready for improvement.
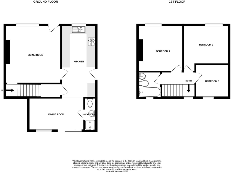
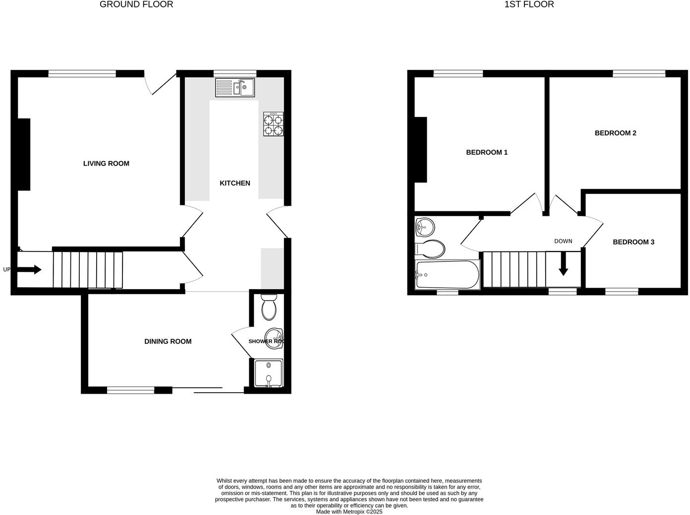
- Three bedrooms across two storeys, suitable for small families
- Two reception rooms and open kitchen/diner, flexible layout
- New boiler 2023 and recent uPVC double glazing installed
- Off-street parking for two cars plus private rear garden
- Electric underfloor heating in bathroom; mains gas central heating
- Property is freehold; council tax Band B (relatively cheap)
- Dated decor and fittings — requires cosmetic modernisation
- Cavity walls likely uninsulated; energy efficiency improvement needed
This three-bedroom end-terrace offers practical family living in central Skipton, a short walk from shops, schools and transport links. The ground floor provides two reception rooms and an open kitchen/dining area, while three bedrooms and a family bathroom sit upstairs — a straightforward layout that suits everyday family life.
Notable recent updates include a new boiler (2023) and recently fitted uPVC double glazing, reducing immediate heating concerns. The property also benefits from electric underfloor heating in the bathroom and a private tarmac driveway with off-street parking for two cars plus a decent rear garden with patio and shed.
The house is a mid-20th century build with some dated interior finishes and décor; cosmetic updating and kitchen/bathroom modernisation will add value. Walls are assumed to have no insulation (cavity as built), and the neighbourhood records above-average crime — factors buyers should weigh alongside the house’s central location and freehold tenure.
Overall this is a well-located, modestly sized family home (circa 731 sq ft) with clear scope for improvement. It will suit a family or buyer seeking a manageable project with good transport links and parking, or an investor targeting rental demand in Skipton.
3 bedroom house for sale in Gainsborough Court, Skipton, North Yorkshire, BD23 — £415,000 • 3 bed • 2 bath • 969 ft²
2 bedroom terraced house for sale in 45 Hillside Crescent, Skipton, BD23 2LE, BD23 — £189,500 • 2 bed • 1 bath • 556 ft²
3 bedroom semi-detached house for sale in 250 Moorview Way, Skipton, BD23 2TN, BD23 — £284,000 • 3 bed • 1 bath • 772 ft²
3 bedroom end of terrace house for sale in 2 Alexandra Ville, Skipton, BD23 2QZ, BD23 — £230,000 • 3 bed • 1 bath • 561 ft²
3 bedroom semi-detached house for sale in Moorview Way, Skipton, BD23 2TN, BD23 — £284,000 • 3 bed • 1 bath • 786 ft²
3 bedroom semi-detached house for sale in Sun Moor Drive, Skipton, North Yorkshire, BD23 — £275,000 • 3 bed • 1 bath • 1023 ft²


















































