Chain-free three-bedroom family home with driveway, south garden and carport storage..
No onward chain — ready for quick move
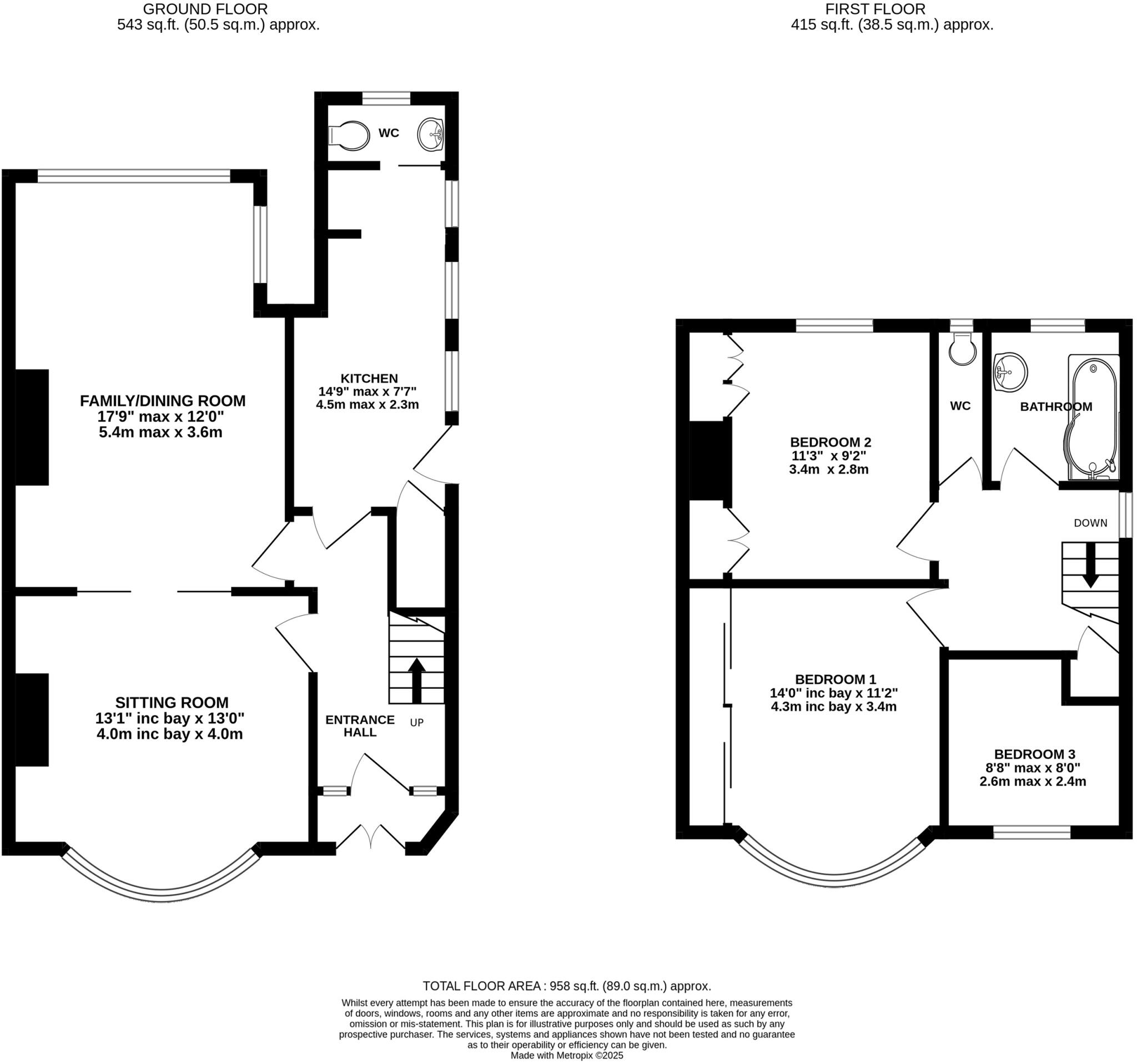
Three double bedrooms, two reception rooms
South-facing enclosed rear garden, low-maintenance landscaping
Driveway plus carport with secure storage area
Gas central heating and double glazing throughout
EPC rating D — potential for energy upgrades
Cavity walls likely uninsulated (assumed) — insulation needed
Local area reports higher crime levels — check local data
This chain-free semi-detached house on Sun Moor Drive is a practical family home in a popular Skipton neighbourhood. The flexible layout includes two reception rooms, a modern kitchen, and three double bedrooms — enough space for family routines or working from home. The southerly rear garden and low-maintenance front provide outdoor privacy without heavy upkeep.
Practical benefits include driveway parking, an attached carport with secure storage, gas central heating and double glazing installed after 2002. The property is an average-sized 1930s-built home that has been kept in good decorative order and will suit buyers seeking a ready-to-live-in house with potential to personalise.
Notable considerations: the EPC rating is D and walls are cavity-built with no assumed insulation, so energy improvements could be required. Crime levels are reported as high in the local area; prospective buyers should check local crime data and factor in any security measures. Tenure details should be confirmed during purchase.
Overall, this home will appeal to families and commuters who want a straightforward move with low-maintenance outdoor space, good local schools and easy access to Skipton’s amenities and transport links. The property offers sensible value at the asking price for those willing to make modest energy upgrades.
3 bedroom semi-detached house for sale in Otley Road, Skipton, North Yorkshire, BD23 — £349,950 • 3 bed • 2 bath • 1453 ft²
3 bedroom semi-detached house for sale in 21 The Oval, Skipton, BD23 2LD, BD23 — £275,000 • 3 bed • 1 bath • 628 ft²
3 bedroom terraced house for sale in Moorview Way, Skipton, North Yorkshire, BD23 — £235,000 • 3 bed • 1 bath • 807 ft²
3 bedroom semi-detached house for sale in 34 Wensleydale Avenue, Skipton, BD23 2TS, BD23 — £310,000 • 3 bed • 1 bath • 903 ft²
3 bedroom semi-detached house for sale in 48 Hurrs Road, Skipton, BD23 2JX, BD23 — £330,000 • 3 bed • 2 bath • 949 ft²
3 bedroom house for sale in Gainsborough Court, Skipton, North Yorkshire, BD23 — £415,000 • 3 bed • 2 bath • 969 ft²






























































































