Quiet cul-de-sac with park views and off-street parking.
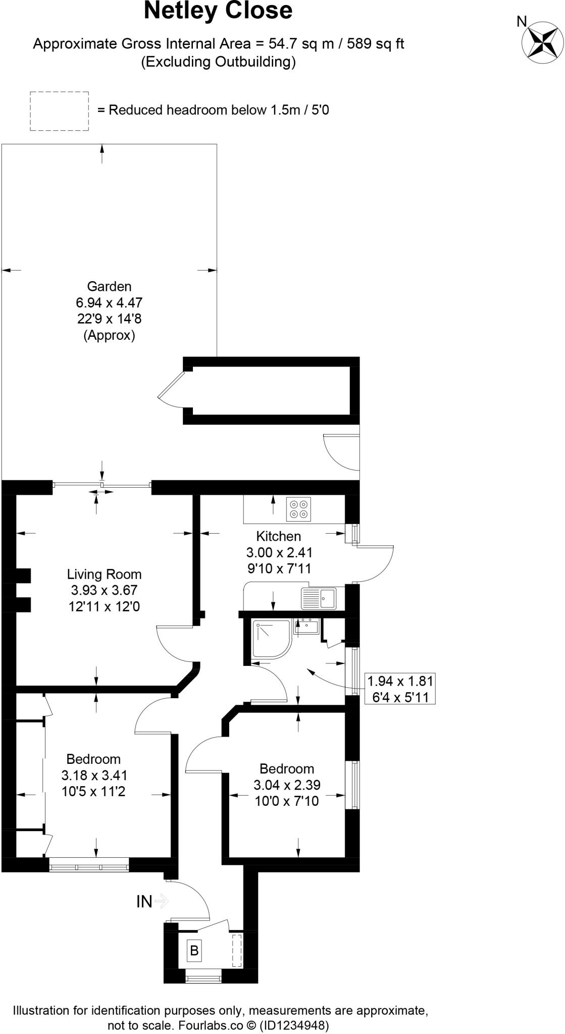
Ground-floor two-bedroom maisonette with private rear garden
A well-presented ground-floor maisonette set in a quiet cul-de-sac, offering easy access to Cheam Village and nearby parkland. The layout includes two double bedrooms, a bright lounge/diner with sliding doors to a private rear garden, a modern fitted kitchen and a refitted shower room. Off-street parking for two cars and a long lease with very low ground rent are practical benefits for first-time buyers or investors.
The property is compact (approximately 589 sq ft) and presented to a neutral, move-in-ready standard with modern fixtures, integrated appliances and double glazing installed after 2002. The rear garden is low-maintenance and viewable from the living room, adding useful outdoor space for relaxing or small-scale gardening. Local schools rated Good–Outstanding and fast broadband make this suitable for families and professionals.
Notable drawbacks are factual: the EPC rating is D, the property sits in a solid-brick 1930s building with no assumed cavity insulation, and accommodation is modest in overall footprint. There is a single bathroom and the internal space is best suited to buyers who prioritise location and convenience over large rooms. The lease is long (around 899 years remaining) and ground rent is minimal at £12 per year, reducing common leasehold concerns.
Overall this maisonette suits a first-time buyer seeking a low-maintenance starter home in a desirable suburban setting, a downsizer wanting single-level living with garden access, or an investor looking for straightforward rental appeal.
2 bedroom maisonette for sale in Peaches Close, Cheam Village, SM2 — £400,000 • 2 bed • 1 bath • 729 ft²
2 bedroom maisonette for sale in Stonecot Hill, Sutton, SM3 — £375,000 • 2 bed • 1 bath • 757 ft²
2 bedroom maisonette for sale in Denbigh Close, Cheam, Sutton, SM1 — £375,000 • 2 bed • 1 bath • 680 ft²
2 bedroom ground floor maisonette for sale in Alberta Avenue, Sutton, SM1 — £320,000 • 2 bed • 1 bath • 614 ft²
2 bedroom maisonette for sale in Keswick Close, Sutton, Surrey, SM1 — £325,000 • 2 bed • 1 bath • 679 ft²
2 bedroom maisonette for sale in The Spinney, Cheam, SM3 — £700,000 • 2 bed • 2 bath • 1592 ft²


























































