Auction-priced refurbishment project near Finchley Central station and parks.
- Ground-floor one-bedroom flat with vacant possession
- Sold by online auction on 4 December 2025
- Off-street parking space and communal rear garden
- Requires full modernisation; EPC rating E
- Lease approx. 58 years remaining — lenders likely to refuse
- Ground rent £100 pa; potential additional completion fees
- Built 1900–1929; solid brick walls, secondary glazing
- Nearby Finchley Central and West Finchley tube stations
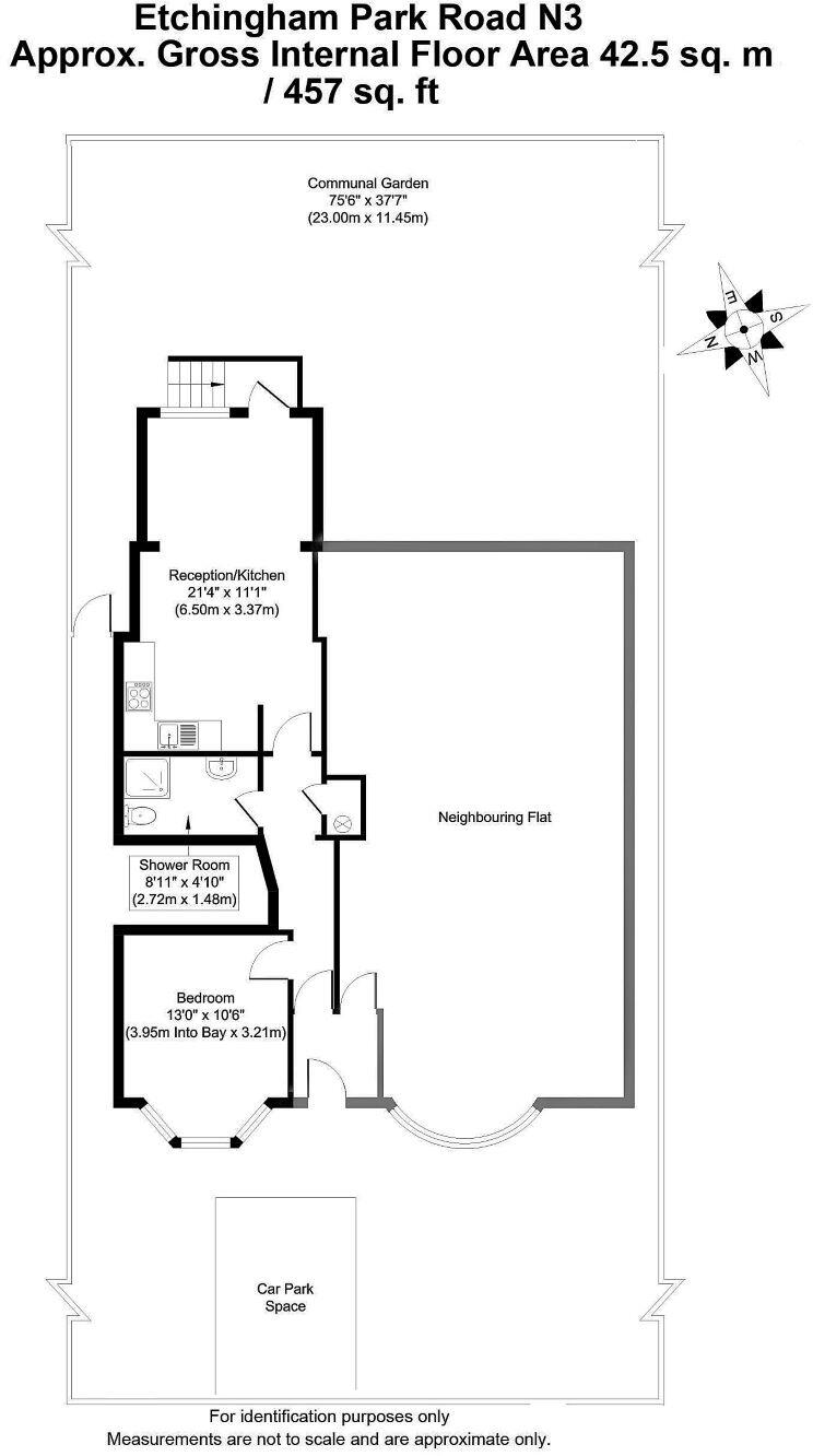
A ground-floor one-bedroom flat tucked into an Edwardian building close to Finchley Central and West Finchley tube stations. The apartment is sold at auction with vacant possession and offers off-street parking plus access to a communal garden — practical benefits for commuters and investors seeking rental or refurbishment opportunities.
The flat requires full modernisation: the accommodation has secondary glazing, solid brick walls (likely uninsulated), an E EPC rating and a mains-gas boiler with radiators. These factors mean refurbishment will be needed to bring energy performance and living standards up to modern expectations, but the layout is straightforward and suitable for a sympathetic upgrade.
There are important legal and financial considerations. The lease has approximately 58 years remaining and a ground rent of £100 per annum; many mortgage lenders will refuse to lend on this term. The property is being sold at auction on 4th December 2025 and a buyer’s administration fee applies, with possible additional completion fees set out in the legal pack. Buyers should review the lease, legal pack and lending options before bidding.
For cash buyers or experienced investors comfortable with auction purchase and lease-extension work, the flat presents a low-entry-price refurbishment prospect in an affluent, well-connected part of Finchley, near good schools and green space.
1 bedroom flat for sale in Etchingham Park Road, Finchley, N3 — £220,000 • 1 bed • 1 bath • 457 ft²
1 bedroom flat for sale in Lucas Gardens, London, N2 — £200,000 • 1 bed • 1 bath • 320 ft²
5 bedroom semi-detached house for sale in 107a Station Road, London, N3 2SP, N3 — £1,000,000 • 5 bed • 5 bath
2 bedroom flat for sale in Stafford Close, LONDON, London, N14 — £375,000 • 2 bed • 2 bath • 729 ft²
1 bedroom ground floor flat for sale in Poplar Grove, London, N11 — £210,000 • 1 bed • 1 bath • 332 ft²
2 bedroom flat for sale in Deanery Close, London, N2 — £400,000 • 2 bed • 1 bath • 524 ft²


































