Auction chance for cash buyers seeking a renovation project with garden and parking.
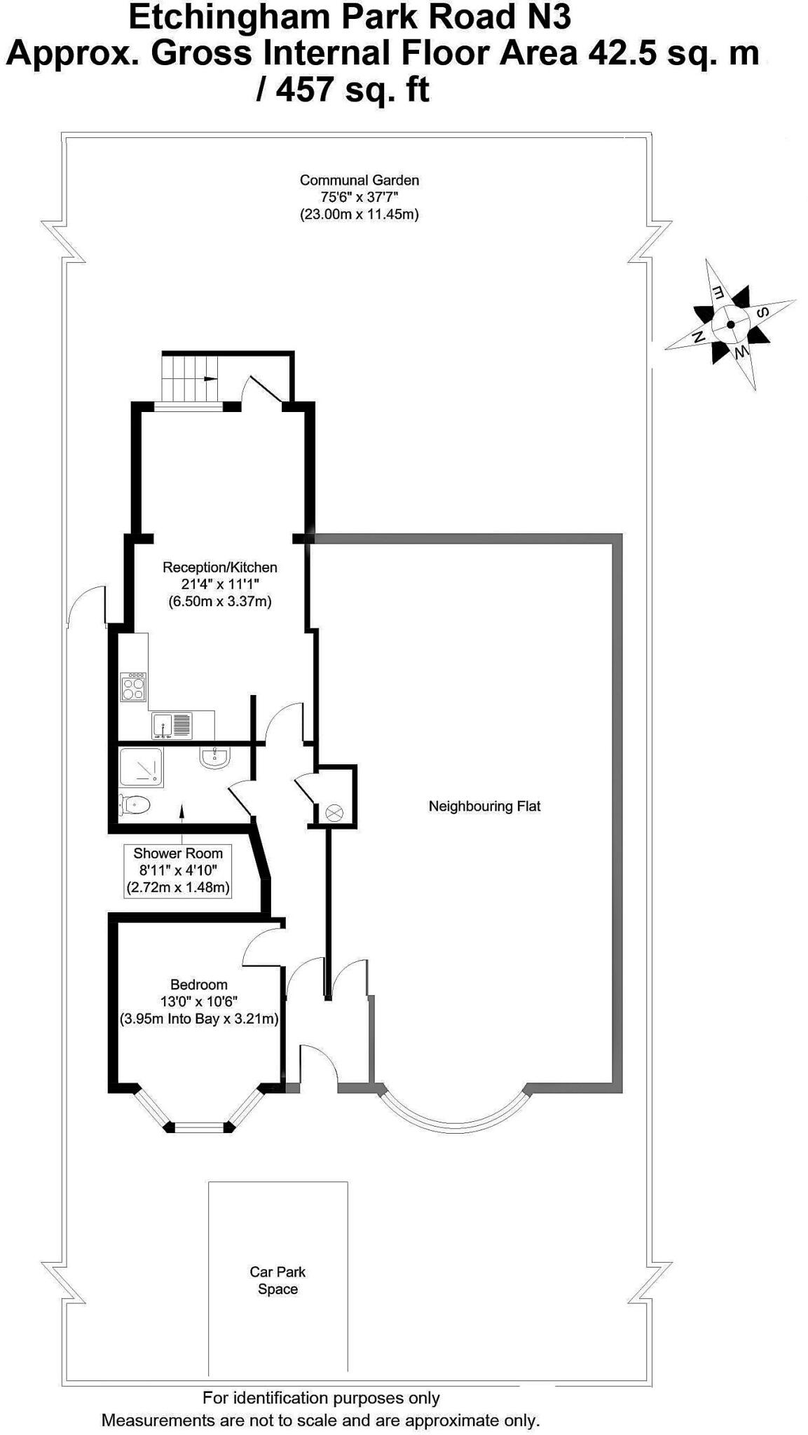
- Directly opposite Victoria Park with large communal rear garden access
- Ground-floor one-bedroom with 21' open-plan kitchen/reception area
- Own off-street parking space to front
- Building works done: partial damp-proof course and new rear double glazing
- Requires modernisation; shower tiling incomplete and general updating needed
- Lease 58 years remaining — likely to block mortgage lending without extension
- Auction sale (4 Dec 2025); chain free — suited to cash or specialist buyers
- Ground rent £100pa rising to £200; buildings insurance ~£330pa
Set directly opposite Victoria Park, this ground-floor one-bedroom flat offers immediate access to a large communal rear garden and a private off-street parking space — rare assets for a flat in Finchley. The building and communal parts have already seen recent works (partial damp-proofing and new double-glazed rear window/door), and the open-plan reception/kitchen provides a generous 21' living space ready for modernisation.
This property will be sold at public auction on 4th December 2025 and is offered chain free, making it suitable for a cash buyer or a specialist investor prepared to buy at auction. The flat requires renovation (shower tiling incomplete; general updating needed) so it suits buyers looking to add value through refurbishment rather than a move-in ready purchase.
Important practical considerations: the lease has 58 years remaining, which is likely to prevent mortgage lending without a lease extension — buyer should budget for legal and lease-extension costs and obtain lender/surveyor advice. Ground rent is currently £100pa (rising to £200), buildings insurance is about £330pa, and the EPC is band D.
For buyers targeting location and long-term upside, the property’s park-side position, sizeable communal garden and parking make it a compact but attractive project. Viewings will be confirmed; bidders should carry out their own checks and allow for refurbishment and potential lease negotiations.
2 bedroom flat for sale in Seymour Road, Finchley, N3 — £400,000 • 2 bed • 2 bath • 657 ft²
1 bedroom apartment for sale in Etchingham Park Road, London, N3 — £330,000 • 1 bed • 1 bath • 642 ft²
3 bedroom flat for sale in Long Lane, Finchley, N3 — £450,000 • 3 bed • 1 bath • 861 ft²
2 bedroom flat for sale in Etchingham Park Road, Finchley, N3 — £400,000 • 2 bed • 2 bath • 882 ft²
1 bedroom flat for sale in Nether Street, London, N3 — £285,000 • 1 bed • 1 bath • 615 ft²
3 bedroom maisonette for sale in Holdenhurst Avenue, North Finchley, N12 — £300,000 • 3 bed • 1 bath • 773 ft²


































































