Generous family home with flexible rooms and a large private garden.
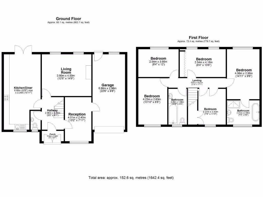
Five bedrooms including master with spacious en-suite and built-in wardrobes|Converted garage provides extra living space or home office|Large south-facing rear garden with patio, decking and shed|Driveway parking for multiple vehicles plus integral single garage|Approximately 1,642 sq ft of accommodation across multi-story layout|Freehold tenure; Council Tax band D|UPVC double glazing, CCTV and utility area with plumbing in garage|EPC currently TBC; some buyers may wish to personalise finishes
This spacious five-bedroom detached home on Helvellyn Drive sits on a large plot at the edge of the countryside, offering substantial family accommodation across multiple reception rooms and bedrooms. The property benefits from a generous kitchen-diner, a living room with a feature fireplace, and a converted garage that provides flexible additional living space or home office use.
Upstairs the master bedroom has a large en-suite and built-in wardrobes; three further bedrooms also include fitted storage and a study/office is available. Practical features include a utility area, integral garage, driveway parking for multiple vehicles, UPVC double glazing throughout, and an outside water and power supply—well suited to family life and entertaining in the south-facing rear garden.
The house has been extended and updated in parts, offering a mix of modern fittings (kitchen appliances, en-suite four-piece suite) and traditional 1970s suburban character. It is freehold with council tax in band D and an internal size of approximately 1,642 sq ft—ample space for a growing family.
Important facts: the Energy Performance Certificate (EPC) is currently TBC. Viewers should note the property is typical of its era and, while many rooms are finished to a good standard, further cosmetic updating or personalisation may be desired by some buyers.
5 bedroom detached house for sale in Deepdale Drive, Burnley, BB10 — £500,000 • 5 bed • 2 bath • 2652 ft²
4 bedroom detached house for sale in Castlerigg Drive, Burnley, Lancashire, BB12 8AT, BB12 — £375,000 • 4 bed • 2 bath • 1604 ft²
4 bedroom detached house for sale in Plane Tree Close, Burnley, Lancashire, BB11 — £239,950 • 4 bed • 2 bath • 1056 ft²
4 bedroom detached house for sale in Buttercross Close, Burnley, Lancashire, BB11 — £350,000 • 4 bed • 2 bath • 1520 ft²
4 bedroom detached house for sale in Borrowdale Close, Burnley, BB10 — £339,950 • 4 bed • 1 bath • 1628 ft²
4 bedroom detached house for sale in Red Lees Avenue, Burnley, Lancashire, BB10 — £340,000 • 4 bed • 3 bath • 1340 ft²














































































































































































