Proven student HMO with rising income — ideal for experienced operators willing to manage upgrades..
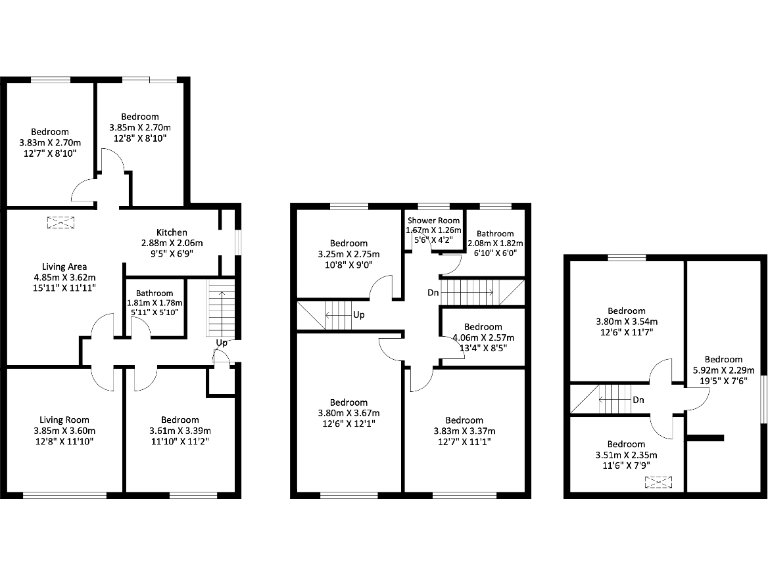
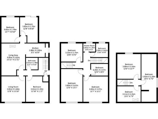
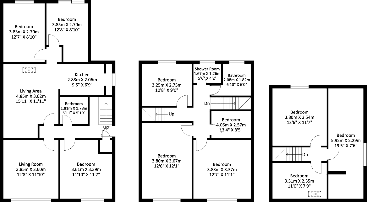
- Freehold 10-bedroom HMO in Fallowfield, close to universities
- Proven rising gross income for three consecutive years
- Two furnished living rooms; modern fittings and integrated appliances
- Only one bathroom for ten bedrooms — potential constraint
- Small overall internal size; narrow galley kitchen limits layout changes
- Decent plot size; semi-detached building with HMO layout
- Very deprived local area; impacts capital growth and tenant mix
- Excellent mobile signal and fast broadband, very low local crime
A purpose-run 10-bedroom semi-detached HMO in Fallowfield, offered freehold and suited to experienced buy-to-let or student-operator portfolios. The house is currently fully furnished, with two living rooms, a modern galley kitchen and consistently rising gross rental income over the past three years — demonstrating proven demand and operational yield.
Practical strengths include excellent public transport links to local universities, fast broadband and excellent mobile signal — all important for student tenancies. Internally the property presents modern fittings: wood floors in living areas, recessed lighting, integrated kitchen appliances and double bedrooms furnished with beds, desks, wardrobes and drawers. The plot is described as decent for this area and the crime level is very low.
Material drawbacks are clear and should be considered by prospective buyers: there is only one bathroom serving ten bedrooms, which limits comfort and may affect future occupancy or require conversion works. Overall property size is described as small and some circulation spaces — notably the narrow galley kitchen — will constrain alterations. The property sits in a very deprived local area, which can affect long-term capital growth and tenant mix. Council tax band and certain running costs are not specified.
This is a hands-on investment: income history shows strong demand but ongoing management, HMO compliance, and potential refurbishment or reconfiguration (additional bathrooms or improved communal facilities) will be needed to maximise returns. Suitable for operators experienced with student lets and HMO licensing in Manchester.
10 bedroom semi-detached house for sale in Slade Lane, Fallowfield, Manchester, M19 2AE, M19 — £750,000 • 10 bed • 1 bath • 2413 ft²
7 bedroom terraced house for sale in Norman Road, Manchester, Greater Manchester, M14 — £700,000 • 7 bed • 2 bath • 3588 ft²
7 bedroom terraced house for sale in Talbot Road, Manchester, M14 — £585,000 • 7 bed • 3 bath • 1583 ft²
4 bedroom end of terrace house for sale in Carill Drive, Fallowfield, Greater Manchester, M14 — £380,000 • 4 bed • 1 bath • 1174 ft²
7 bedroom terraced house for sale in Rippingham Road, Withington, M20 — £525,000 • 7 bed • 2 bath • 1768 ft²
5 bedroom semi-detached house for sale in Selside Walk, Manchester, M14 — £415,000 • 5 bed • 2 bath • 1047 ft²






















































































