Chain-free 3-bed bungalow on a rare corner plot with planning permission to extend..
Corner plot with large rear garden and patio
Planning permission granted to extend, loft convert and add driveway
Detached garage with off-street parking via Jay Road
Chain free — immediate sale possible
Large open-plan 30ft living/dining room with garden access
Mid-20th century build; requires modernization throughout
Cavity walls assumed uninsulated — opportunity for energy upgrades
Single bathroom only; extension plans add second bathroom
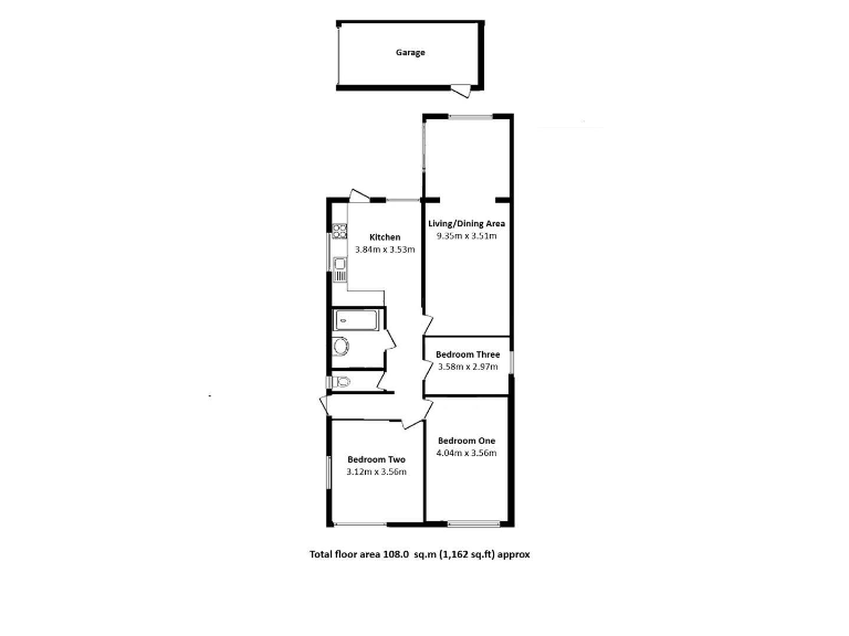
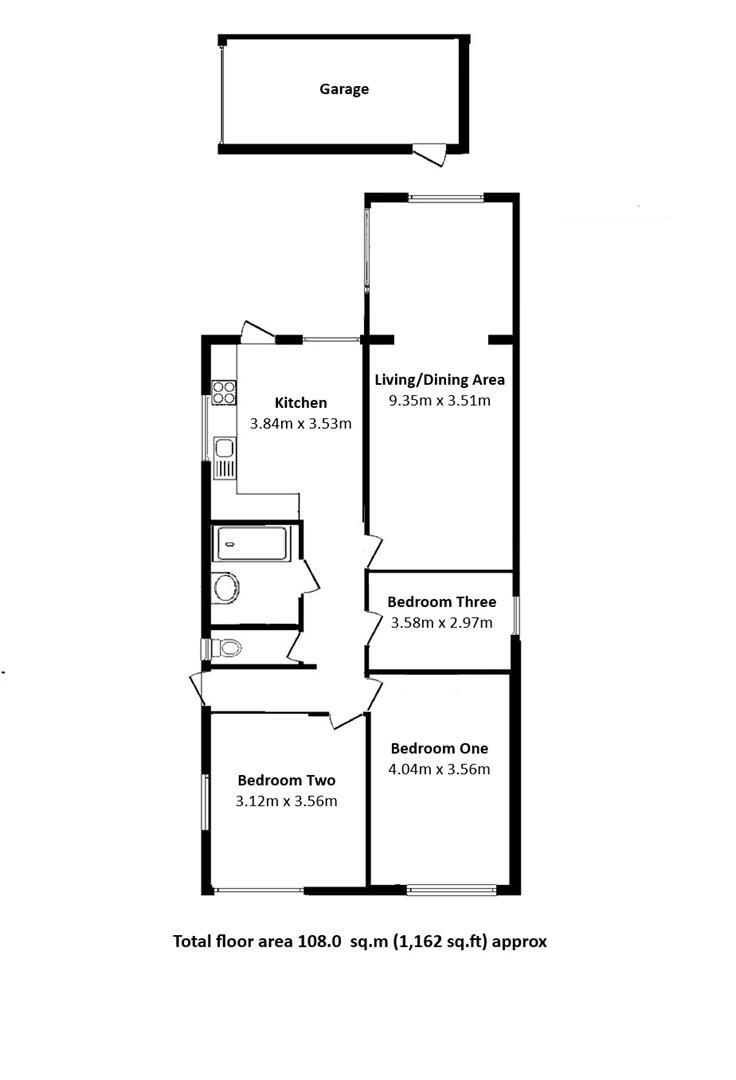
A rare corner-plot bungalow on Seaview Road, this three-bedroom detached home offers immediate comfortable living with clear scope to add value. Approved planning (Lewes DC LW/24/0687) allows an extension to four bedrooms, a second bathroom, loft conversion and a two-car driveway — ideal for growing families or buyers seeking a judged renovation with permitted plans in place.
The house has a large, private rear garden with patio, detached garage and potential to create off-street parking to the front. Internally there’s a generous 30ft open-plan living and dining room that opens onto the garden, a large kitchen, three well-proportioned bedrooms and a family bathroom. Double glazing and gas central heating are already fitted.
Key positives are the corner plot, large garden, granted planning permission and chain-free sale — creating a straightforward project for someone wanting to extend or reconfigure. The property is in a convenient location within walking distance of local shops, schools and frequent bus routes to Brighton and Eastbourne.
Buyers should note the bungalow dates from the mid-20th century and will benefit from modernization throughout: cosmetic updating, possible insulation improvements (walls are cavity with no additional insulation assumed) and internal reconfiguration if you wish to implement the planning consent. There is only one bathroom currently. Viewings are advised to appreciate the plot size and potential first-hand.
3 bedroom detached bungalow for sale in Seaview Road, Peacehaven, BN10 — £450,000 • 3 bed • 1 bath • 1162 ft²
3 bedroom detached bungalow for sale in Anzac Close, Peacehaven, BN10 — £350,000 • 3 bed • 2 bath • 783 ft²
3 bedroom bungalow for sale in Bee Road Peacehaven, BN10 — £359,950 • 3 bed • 1 bath • 989 ft²
3 bedroom detached bungalow for sale in Anzac Close, Peacehaven, BN10 7SY, BN10 — £375,000 • 3 bed • 1 bath • 947 ft²
2 bedroom detached bungalow for sale in Malines Avenue, Peacehaven, BN10 7RR, BN10 — £325,000 • 2 bed • 1 bath • 904 ft²
3 bedroom semi-detached bungalow for sale in Cripps Avenue, Peacehaven, BN10 — £340,000 • 3 bed • 1 bath • 821 ft²


































































