Single-storey living with gardens to three sides and no onward chain.
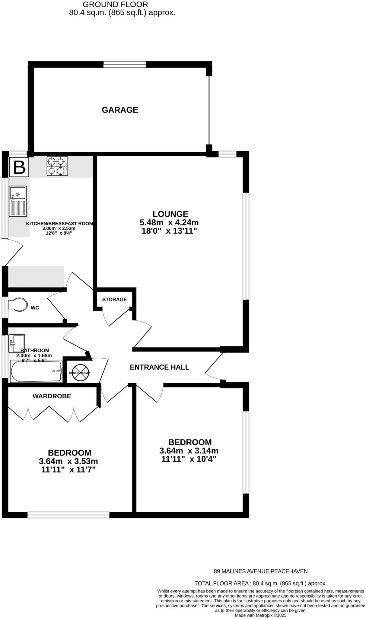
Detached 2-bedroom bungalow on a desirable corner plot
Set on a desirable corner plot in Peacehaven, this detached 2-bedroom bungalow offers single-level living with generous outside space and off-road parking. The west-facing lounge/dining room captures afternoon sun, and the kitchen/breakfast room gives scope for everyday family meals. With gardens to three sides and a garage, the plot is a standout asset for gardeners, hobbyists or those seeking outside privacy.
The property benefits from double glazing and gas central heating and is offered with no onward chain, making it suitable for buyers wanting a quicker move. The layout is practical and accessible, appealing to downsizers, small families or buyers seeking a low-rise home close to Chatsworth Park and regular bus links to Brighton.
There are important maintenance and modernisation considerations. Internal images show dated finishes, worn carpet, ceiling patterning and a visible mould/stain in the living room — suggesting areas that require attention and possibly further investigation for damp. The property also appears to have original cavity walls without added insulation, so buyers should factor potential upgrade costs for energy efficiency and cosmetic refurbishment.
Overall this is a solid post-war bungalow on a large corner plot with clear scope to add value through targeted renovation. Its location, single-storey layout and private gardens will suit anyone seeking a manageable home with improvement potential, but buyers should budget for modernisation and remedial work where indicated.
2 bedroom detached bungalow for sale in Roderick Avenue North, Peacehaven, BN10 — £450,000 • 2 bed • 1 bath • 1102 ft²
2 bedroom detached bungalow for sale in Hoddern Avenue, Peacehaven, BN10 7QU, BN10 — £325,000 • 2 bed • 1 bath • 721 ft²
3 bedroom detached bungalow for sale in Telscombe Road, Peacehaven, BN10 — £350,000 • 3 bed • 2 bath • 921 ft²
3 bedroom detached bungalow for sale in Phyllis Avenue, Peacehaven, East Sussex, BN10 — £425,000 • 3 bed • 1 bath • 890 ft²
3 bedroom detached bungalow for sale in Anzac Close, Peacehaven, BN10 7SY, BN10 — £375,000 • 3 bed • 1 bath • 947 ft²
3 bedroom detached bungalow for sale in Roderick Avenue, Peacehaven, BN10 — £375,000 • 3 bed • 1 bath • 1053 ft²


































































































